Выберите валюту для сайта:
BYN
Подать БЕСПЛАТНО

Купить офис на ул. Тимирязева, д. 72 в Минске, 2605250USD, код 8820

1042.1 м2 14 этаж из 14 Центральный район / Победителей Пушкинская
7 544 022 р.
Офис
Город Минск
Район Центральный район
Микрорайон Победителей
Адрес ул. Тимирязева, д. 72
Метро Пушкинская
Время до метро пешком 25 мин.
Время до метро на транспорте 14 мин.
Год постройки 2014 г.
Площадь 1042.1 м2
Этаж 14

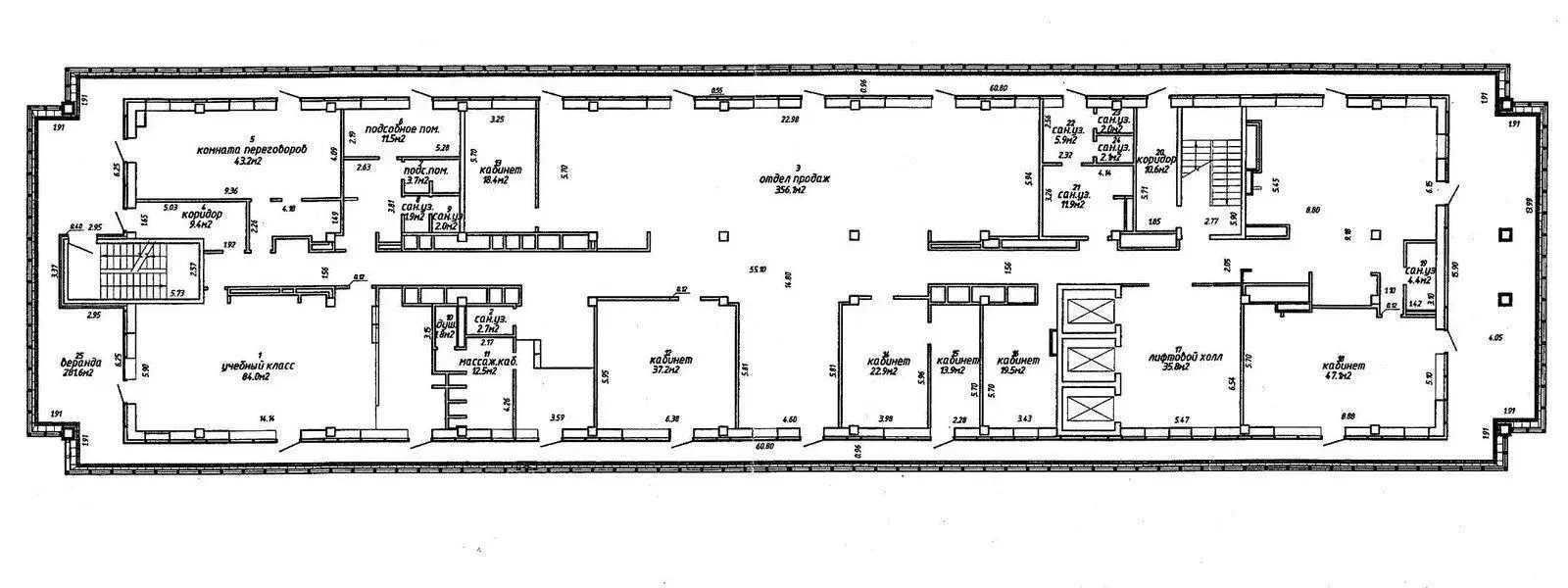
Описание

Административное помещение

г. Минск, ул.Тимирязева, 72

Общая площадь: 1042.1 м2

Помещение расположено на 14-м бизнес-центра «Дельта». Это последний офис с террасой, пролегающей вдоль помещения, что является хорошим дополнением к статусу.

• Стильный интерьер, окна в пол с панорамным видом на город.

• Система кондиционирования, приточно-вытяжная вентиляция.

• Оборудованная кухня-столовая, санузлы, душевые.

• Доступ 24/7.

• Местоположение с развитой инфраструктурой вблизи большой транспортной развязки и пр-та Победителей. Рядом расположены ТЦ «Замок», новый ТЦ «Palazzo», ФОК, остановки общественного транспорта.

Ваш агент- Смолка Андрей

Код объекта: 8820 Договор с собственником: 30/3 от 2025-06-03 Опубликовано: 10.06.2025 Обновлено: 09.11.2025
Динамика цен за кв. метрДинамика цен
Похожие объекты
Адрес
Комнат
Площадь
Этаж
Цена за м2
Цена
17 м2
12 из 13
6 081 р. за м2

Вы просматривали

301 225 р. 2 751 р. за м2
Октябрьский р-н
99 902 р. 2 737 р. за м2
Первомайский р-н
7 544 022 р. 7 239 р. за м2
Центральный р-н
69 410 р. 2 461 р. за м2
Заводской р-н
2 386 057 р. 9 901 р. за м2
Московский р-н
Офис, 1042.1 м2
Минск, ул. Тимирязева, д. 72
7 544 022 р.
7 239 р. за м2
Андрей Смолка
Пожалуйста, скажите, что нашли этот объект на Domovita.by
+
Фильтр сохранен