Выберите валюту для сайта:
BYN
Подать БЕСПЛАТНО

Купить офис на ул. Зыбицкая, д. 2 в Минске, 112475USD, код 8222

586.7 м2 3 этаж из 4 Центральный район / Ленина Немига
322 173 р.
Офис
Город Минск
Район Центральный район
Микрорайон Ленина
Адрес ул. Зыбицкая, д. 2
Метро Немига
Время до метро пешком 5 мин.
Время до метро на транспорте 3 мин.
Год постройки 2016 г.
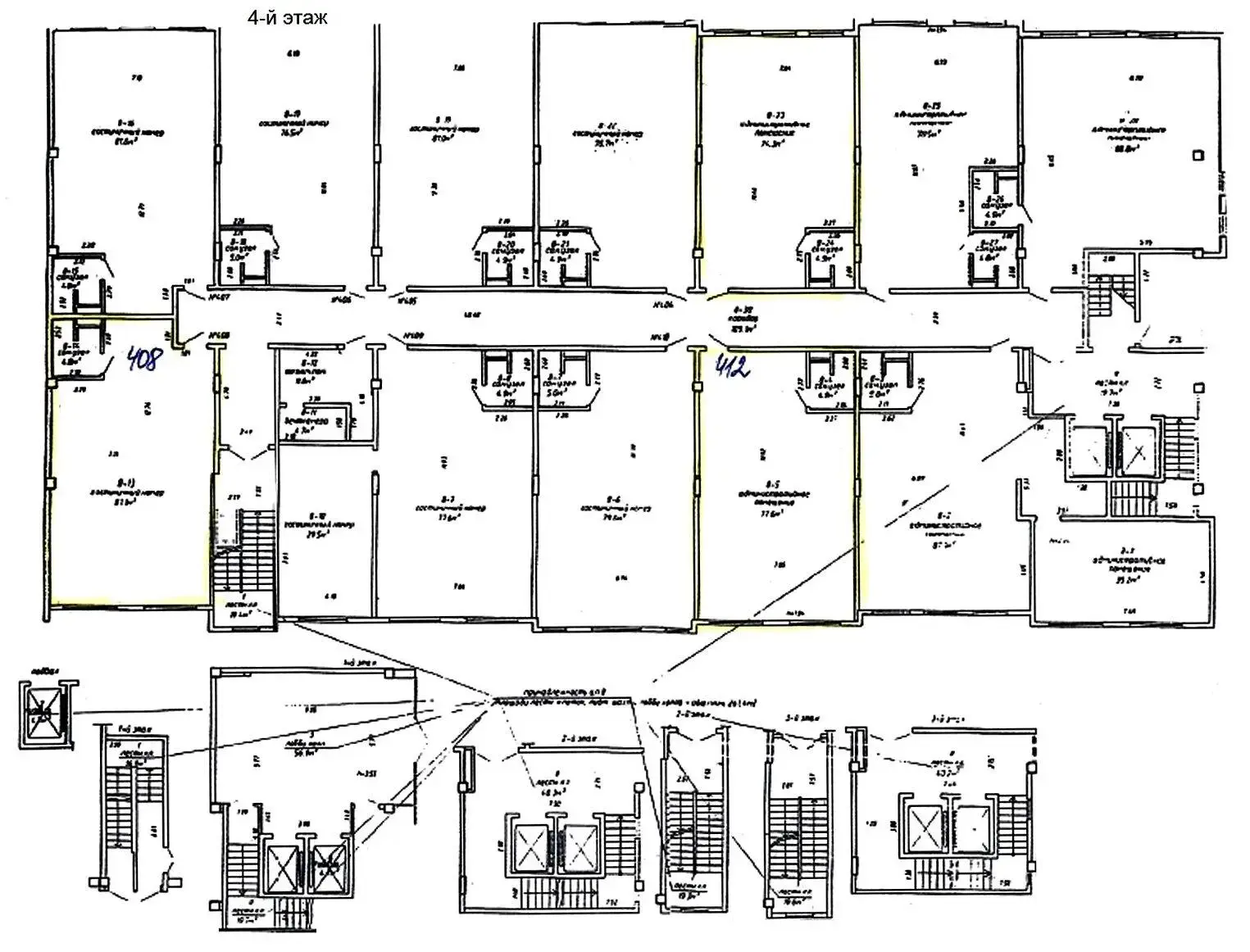
Площадь 586.7 м2
Этаж 3

Описание

Административные помещения

г. Минск, ул. Зыбицкая, 2

Площади: 89.3 м2, 82.5 м2, 79.6 м2, 119.1 м2, 90 м2, 85.3 м2, 40.9 м2(3-й этаж)

Покупатель не оплачивает услуги риэлтерской организации!

Помещения расположены на 3-м этаже современного комплекса:

• лаконичное исполнение интерьера, наличие санузлов в каждом офисе;

• система кондиционирования, лифты;

• парковка возле здания;

• доступ 24/7;

• исторический центр города, популярный у гостей и жителей столицы, в пешеходной доступности (5 мин.) - ст. метро «Немига».

Ваш агент - Андрей Смолка

Подробнее см. на САЙТЕ  www.silvan7800.by

Код объекта: 8222 Договор с собственником: 91/3 от 2024-12-16 Опубликовано: 12.02.2025 Обновлено: 13.02.2026
Динамика цен за кв. метрДинамика цен
Похожие объекты
Адрес
Комнат
Площадь
Этаж
Цена за м2
Цена
239.4 м2
2 из 4
7 591 р. за м2
102.7 м2
2 из 4
6 975 р. за м2
177.7 м2
2 из 4
7 157 р. за м2
4-комнатная
228.7 м2
2 из 4
6 846 р. за м2

Вы просматривали

322 173 р. 549 р. за м2
Центральный р-н
Офис, 586.7 м2
Минск, ул. Зыбицкая, д. 2
322 173 р.
549 р. за м2
Андрей Смолка
Пожалуйста, скажите, что нашли этот объект на Domovita.by
+
Фильтр сохранен