Купить комнату в Минске, ул. Щорса 2-я, д. 8, цена 25000 USD, код 7612

Московский район Грушевка 67.2 м2 2 этаж
5 222 р./м2
Дом
Город Минск
Микрорайон Грушевская
Метро Грушевка
Время до метро пешком 4 мин.
Время до метро на транспорте 2 мин.
Адрес ул. Щорса 2-я, д. 8
Этажность 2
Материал стен Кирпичный
Год постройки 1951
Квартира
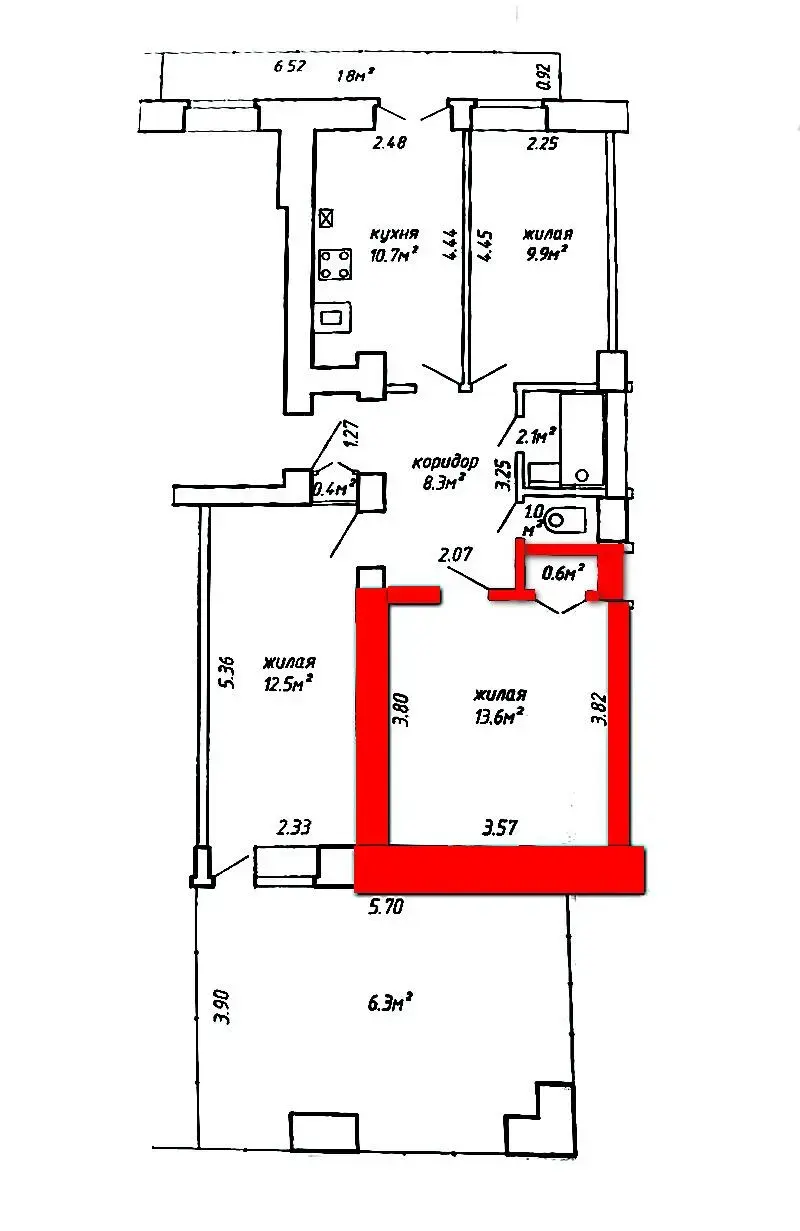
Общая площадь 67.2 м2
Продаваемая площадь 13.6 м2
Кухня 10.7 м2
Комнат 3
Этаж 2
Санузел раздельный
Условия продажи продажа

Описание

Выделенная комната в 5 минутах от метро «Грушевка»! Потолки 3 метра.

 

Продается уютная, выделенная комната площадью 13,6 кв.м. (доля 33/100) в трехкомнатной квартире по адресу: Минск, 2-я ул. Щорса, д. 8.

 

Преимущества объекта:

•  Высокие потолки (3 метра): В комнате много воздуха и света, есть возможность реализовать интересные интерьерные решения.

•  Комфортный микроклимат: Кирпичные стены дома обеспечивают отличную тепло- и шумоизоляцию.

•  Отличное соседство: В квартире проживают спокойные, порядочные люди, что гарантирует вам комфортное проживание.

 

Инфраструктура и локация:

•  Транспорт: Всего 5 минут неспешным шагом до станции метро «Грушевка». Отличное сообщение с любой точкой города.

•  Природа: Прямо возле дома расположена уютная парковая зона — идеальное место для прогулок и отдыха.

•  Сервис: В шаговой доступности магазины, аптеки, банки, спортивные залы и кафе.

 

Условия продажи:

Чистая продажа. Документы готовы к сделке. Никаких цепочек и ожиданий.

 

Звоните и приходите на просмотр! Это отличный вариант как для собственного проживания, так и для сдачи в аренду.

Код объекта: 7612 Договор с собственником: 296/1 от 2026-04-03 Опубликовано: 04.04.2026 Обновлено: 14.04.2026
8 / 11 / 23
Динамика цен за кв. метрДинамика цен

Вы просматривали

71 035 р. 5 222 р. за м2
Московский р-н
Комната, 13.6 м2
Минск, ул. Щорса 2-я, д. 8
71 035 р.
5 222 р. за м2
Александр
Пожалуйста, скажите, что нашли этот объект на Domovita.by
+
Фильтр сохранен