Выберите валюту для сайта:
BYN
Подать БЕСПЛАТНО

Продажа комнаты в Минске, ул. Свердлова, д. 26, цена 110000 USD, код 7552

Октябрьский район Площадь Ленина 86.1 м2 3 этаж
5 606 р./м2
Дом
Город Минск
Район Октябрьский район
Микрорайон Ленина
Метро Площадь Ленина
Время до метро пешком 7 мин.
Время до метро на транспорте 4 мин.
Адрес ул. Свердлова, д. 26
Этажность 4
Материал стен Кирпичный
Год постройки 1951
Год капитального ремонта 2021
Квартира
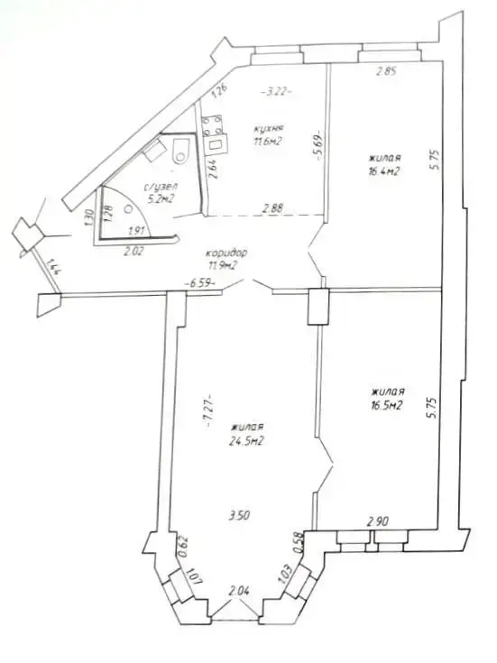
Общая площадь 86.1 м2
Продаваемая площадь 57.4 м2
Кухня 11.6 м2
Комнат 3
Этаж 3
Санузел совмещенный
Ремонт Хороший
Условия продажи продажа

Описание

Продажа ¾ доли в трехкомнатной квартире в центре города

по адресу ул. Свердлова,26

Площадь 86,1/57,4/11,6

Возможен обмен

Продается ¾ доли в трехкомнатной квартире сталинке  в самом центре Минска!

Доля не выделена.

Роскошь советского классицизма в самом центре города для ценителей архитектуры, ул. Свердлова 26.

Дом  кирпичный 1951 года постройки, в 2021 году в доме произведен капитальный ремонт с заменой коммуникаций. В квартире полностью заменена электропроводка, сделана и узаконена небольшая перепланировка, что позволило значительно увеличить площадь кухни и расширить обеденную зону. На случай отсутствия горячей воды установлен бойлер. Импортная сантехника, джакузи, окна с двухкамерными стеклопакетами, зал с эркером. Кирпичные стены, высота потолков 3,01 и, что придает квартире дополнительный объем, широкие подоконники, большие окна.

Чистый, аккуратный подъезд после ремонта с пластиковыми стеклопакетами.

Отличное транспортное сообщение: рядом станция метро «Площадь Ленина» первой линии, которая является пересадочной на  станцию метро «Вокзальная» третьей линии, железнодорожный и автобусный вокзалы, маршрутные такси, автобусы и троллейбусы, трамваи в любую часть города и страны. Крупный ТРЦ «Галилео», современный формат которого позволяет объединить комфортный шопинг и насыщенный досуг. Магазины, банки, аптеки, кафе, рестораны, футкорт, современный кинотеатр SKYLINE удобны для жителей района.

Для семей с детьми рядом расположены ясли-сад №1 и гимназия №75.

Удобная стоянка с двумя шлагбаумами позволяет припарковать ваш автомобиль в любое время.

Мебель по согласованию!

Звоните прямо сейчас и приходите на просмотр! Такие предложения появляются не часто!

Гарантия безопасности сделки и полное юридическое сопровождение!

Еще не продали или хотите обменять Вашу недвижимость, мы Вам поможем! Подайте онлайн заявку на нашем сайте или обратитесь к нам по нашему телефону, чтобы получить более подробную информацию.

Частное унитарное предприятие «Дианэст», УНП 190124316, лицензия №02240/54  от  06.06.2005.  Договор № 45/4 от 26.02.2026

Код объекта: 7552 Договор с собственником: 45/4 от 2026-02-26 Опубликовано: 28.02.2026 Обновлено: 28.02.2026
0 / 6 / 18
Динамика цен за кв. метрДинамика цен
Похожие объекты
Адрес
Комнат
Площадь
Этаж
Цена за м2
Цена
3-комнатная
58.56 м2
5 из 5
7 906 р. за м2

Вы просматривали

321 849 р. 5 606 р. за м2
Октябрьский р-н
Комната, 57.4 м2
Минск, ул. Свердлова, д. 26
321 849 р.
5 606 р. за м2
Игорь
Пожалуйста, скажите, что нашли этот объект на Domovita.by
+
Фильтр сохранен