Купить комнату в Минске, ул. Уборевича, д. 170, цена 163000 BYN, код 7547

Заводской район 64.3 м2 3 этаж
6 707 р./м2
≈ 59 260 $
2 438 $/м2
Дом
Город Минск
Микрорайон Чижовка
Адрес ул. Уборевича, д. 170
Этажность 7
Материал стен Кирпичный
Год постройки 1997
Квартира
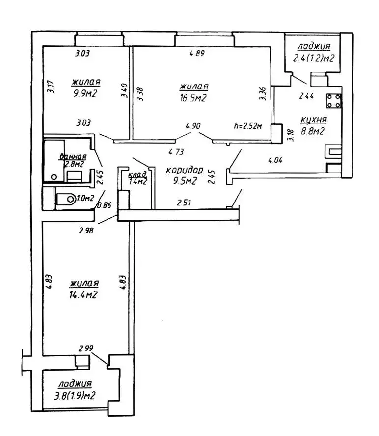
Общая площадь 64.3 м2
Продаваемая площадь 24.3 м2
Кухня 8.8 м2
Комнат 3
Этаж 3
Санузел раздельный
Балкон Лоджия
Ремонт Хороший
Условия продажи продажа

Описание

Продаются две выделенные комнаты 14,4 м2 и 9,9 м2 в трехкомнатной квартире. Кухня 8,8 м2. Раздельный санузел. Квартира расположена на третьем этаже семиэтажного кирпичного дома. Дом 1997 года постройки. Лифт новый. Комнаты после косметического ремонта. В одной комнате на полу линолеум, во второй ламинат под паркетную доску, поклеены обои, натяжной потолок. В комнате стеклопакет ПВХ. Вместительная лоджия также застеклена стеклопакетом. Имеется кладовая комната –отличное дополнительное место для хранения вещей. Тамбур на 2 квартиры.  Чистый, ухоженный подъезд. Зеленый двор с просторной детской площадкой.  

Отличная инфраструктура микрорайона. Рядом есть всё необходимое для комфортной и удобной жизни: детские сады (№65, №83, №132), школы №135, №124, №112, супермаркет «Green», детская и взрослая поликлиники, аптеки, банки, Чижовский рынок, «Мила»).

Вблизи дома находятся места для отдыха всей семьи: «Парк им. Н.Г. Грековой», «Парк 900-летия г. Минска», зоопарк, дельфинарий, ипподром, Чижовка-Арена. В шаговой доступности набережная с городской велодорожкой, оборудованный пляж для отдыха всей семьи «Жара».

Удобный выезд на МКАД. Разумный торг.

Лицензия: №02240/362 от 31.07.2018, Министерство юстиции РБ

Код объекта: 7547 Договор с собственником: 188/1 от 2026-02-23 Опубликовано: 25.02.2026 Обновлено: 26.04.2026
0 / 0 / 57
Динамика цен за кв. метрДинамика цен
Похожие объекты
Адрес
Комнат
Площадь
Этаж
Цена за м2
Цена
3-комнатная
61.5 м2
1 из 5
5 738 р. за м2
2-комнатная
49.9 м2
1 из 5
4 156 р. за м2
2-комнатная
47.1 м2
5 из 9
5 328 р. за м2
2-комнатная
59.2 м2
9 из 9
3 468 р. за м2

Вы просматривали

76 742 р. 4 434 р. за м2
Заводской р-н
163 000 р. 6 707 р. за м2
Заводской р-н
Комната, 24.3 м2
Минск, ул. Уборевича, д. 170
163 000 р.
6 707 р. за м2
Фаттория Плюс
Пожалуйста, скажите, что нашли этот объект на Domovita.by
+
Фильтр сохранен