Выберите валюту для сайта:
BYN
Подать БЕСПЛАТНО

Объект сферы услуг в Минске, Логойский тр-т, д. 18, код 3428

1723.9 м2 1 этаж из 3 Первомайский район / Восток
7 126 р./мес.
Сервис
Город Минск
Район Первомайский район
Микрорайон Восток
Адрес Логойский тр-т, д. 18
Площадь 1723.9 м2
Этаж 1

Описание

Аренда объекта под: пищевое производство, ресторан, кафе, магазин, офис, сфера услуг

Площадь: 1 723,9 м2

Пол: мрамор, плитка

Стены: окрашены, декоративная штукатурка

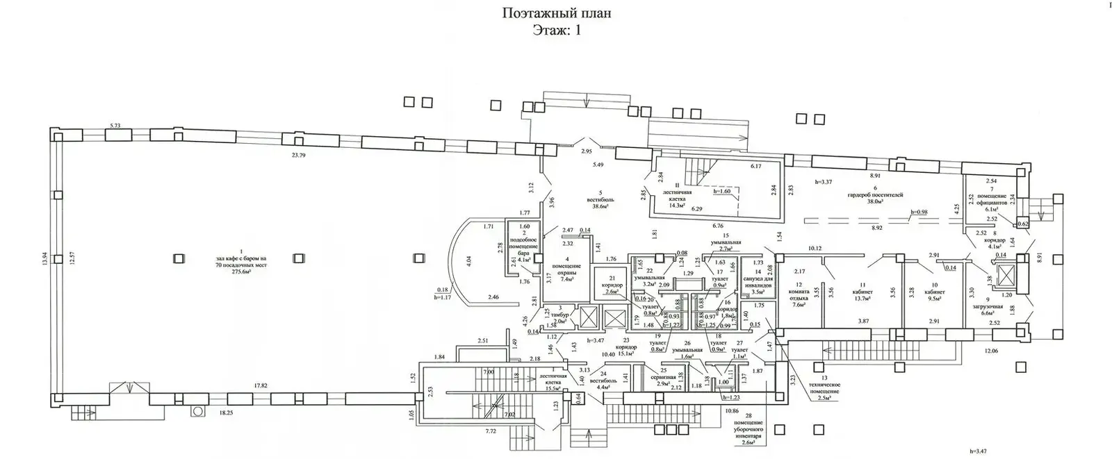
1 Этаж:

зал кафе с баром 275 м2 с выходом на улицу и панорамным остеклением

высота потолка 3,47м ; общая площадь этажа 500 м2

2 Этаж:

Зал кафе с баром 286 м2 с выходом на балкон, панорамным остеклением, санузлы, дополнительный зал на 90,3 м2

Высота потолка 4,23м

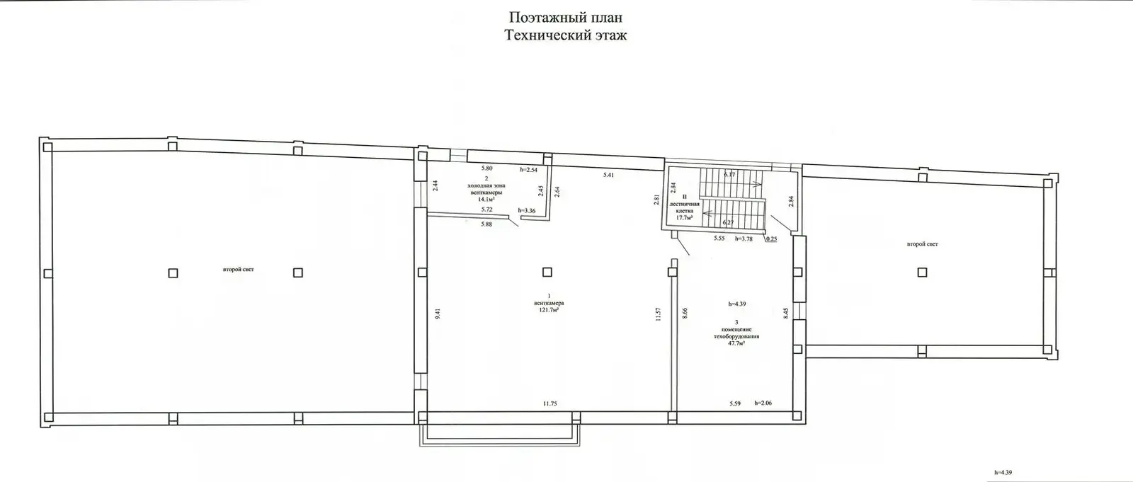
3 Этаж:

Технический этаж 175м2

Вент камера – современная система вентиляции и кондиционирования.

Цокольный этаж: порядка 500м2

Кухня 102,8 м2

Множество подсобных помещений

Морозильная камера, помещения для кладовых и цехов

Высота потолка 2,99 м

комнаты для персонала, душевые.

Имеется рампа и лифт для разгрузки и подачи продуктов на кухню, а также второй лифт для подачи готовых блюд в банкетные залы.

 Объект расположен в районе плотной жилой застройки, с видом на Севастопольский парк.

Активный транспортный и клиентский поток, близость жилых кварталов, в шаговой доступности БЦ «Парк Плаза».

4 Отдельных входа

Центральное: водоснабжение, отопление, канализация.

Отличные подъездные пути

Доступ 24/7

Парковка

Код объекта: 3428 Договор с собственником: 64/3а от 2025-09-25 Опубликовано: 04.10.2025 Обновлено: 04.12.2025
0 / 0 / 2
Динамика цен за кв. метрДинамика цен
Похожие объекты
Адрес
Комнат
Площадь
Этаж
Цена за м2
Цена
1723.9 м2
1 из 3
34 р. за м2

Вы просматривали

8 872 р./мес. 61 р. за м2
Советский р-н
7 126 р./мес. 29 р. за м2
Первомайский р-н
9 363 р./мес. 50 р. за м2
Первомайский р-н
2 450 р./мес. 35 р. за м2
Советский р-н
Сервис, 1723.9 м2
Минск, Логойский тр-т, д. 18
7 126 р./мес.
29 р. за м2
Вероника
Пожалуйста, скажите, что нашли этот объект на Domovita.by
+
Фильтр сохранен