Выберите валюту для сайта:
BYN
Подать БЕСПЛАТНО
Объект в архиве
К результатам поиска

Помещение под сферу услуг в Минске, пр-т Дзержинского, д. 32, код 2995

92.5 м2 1 этаж из 19 Московский район / Люксембург Грушевка
Объект в архиве
Уважаемые пользователи, данное объявление больше не актуально. Поэтому мы убрали все контакты продавца.
Продолжить поиск
Сервис
Город Минск
Район Московский район
Микрорайон Люксембург
Адрес пр-т Дзержинского, д. 32
Метро Грушевка
Время до метро пешком 4 мин.
Время до метро на транспорте 2 мин.
Год постройки 2024 г.
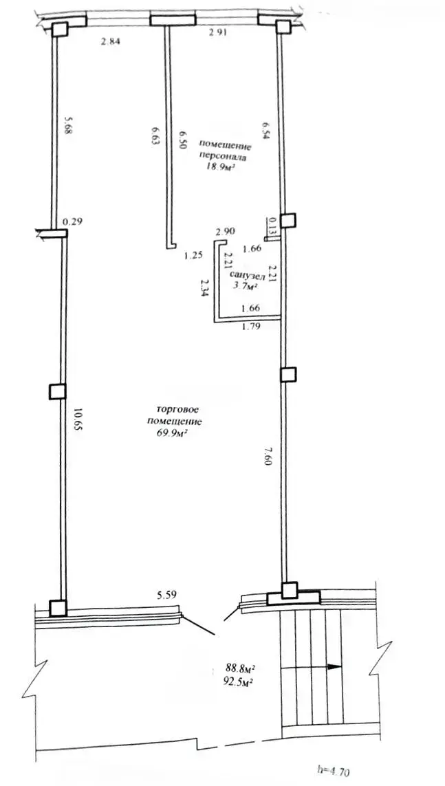
Площадь 92.5 м2
Этаж 1

Описание

Сдается в аренду двухуровневое помещение в новом жилом комплексе «Квартал на Грушевке».

 

Удобная локация с отличной транспортной доступностью и развитой инфраструктурой. В шаговой доступности станция метро “Грушевка”, остановки общественного транспорта.

 

Помещение расположено на первом этаже с отдельным входом. Рядом находится пункт выдачи заказов (ПВЗ), магазин цветов и подарков.

 

Подходит под кафе, ресторан, салон красоты, сферу услуг и т.д.

 

·  Первая линия проспекта Дзержинского;

·  В шаговой доступности метро «Грушевка»;

·  Двухуровневое помещение;

·  1 этаж/отдельный вход;

·  В помещении установлены панорамные окна;

·  Высота потолков 4,70 ;

·  Доступ в здание 24/7.

 

Ремонт и арендные каникулы обсуждаются индивидуально. 

Арендатор не платит комиссию агентству!

Код объекта: 2995 Договор с собственником: 277/2а от 2024-08-26 Опубликовано: 30.04.2025 Обновлено: 13.10.2025
0 / 1 / 19
Динамика цен за кв. метрДинамика цен
Похожие объекты
Адрес
Комнат
Площадь
Этаж
Цена за м2
Цена
1111.9 м2
2 из 8
20 р. за м2
201.4 м2
1 из 12
36 р. за м2
134.3 м2
1 из 19
59 р. за м2
79.6 м2
8 из 8
45 р. за м2
+
Фильтр сохранен