Выберите валюту для сайта:
BYN
Подать БЕСПЛАТНО

Помещение под сферу услуг в Минске, пр-т Независимости, д. 95, код 2936

471.5 м2 2 этаж из 2 Первомайский район / Волгоградская Парк Челюскинцев
15 000 р./мес.
Сервис
Город Минск
Район Первомайский район
Микрорайон Волгоградская
Адрес пр-т Независимости, д. 95
Метро Парк Челюскинцев
Время до метро пешком 6 мин.
Время до метро на транспорте 3 мин.
Год постройки 1989 г.
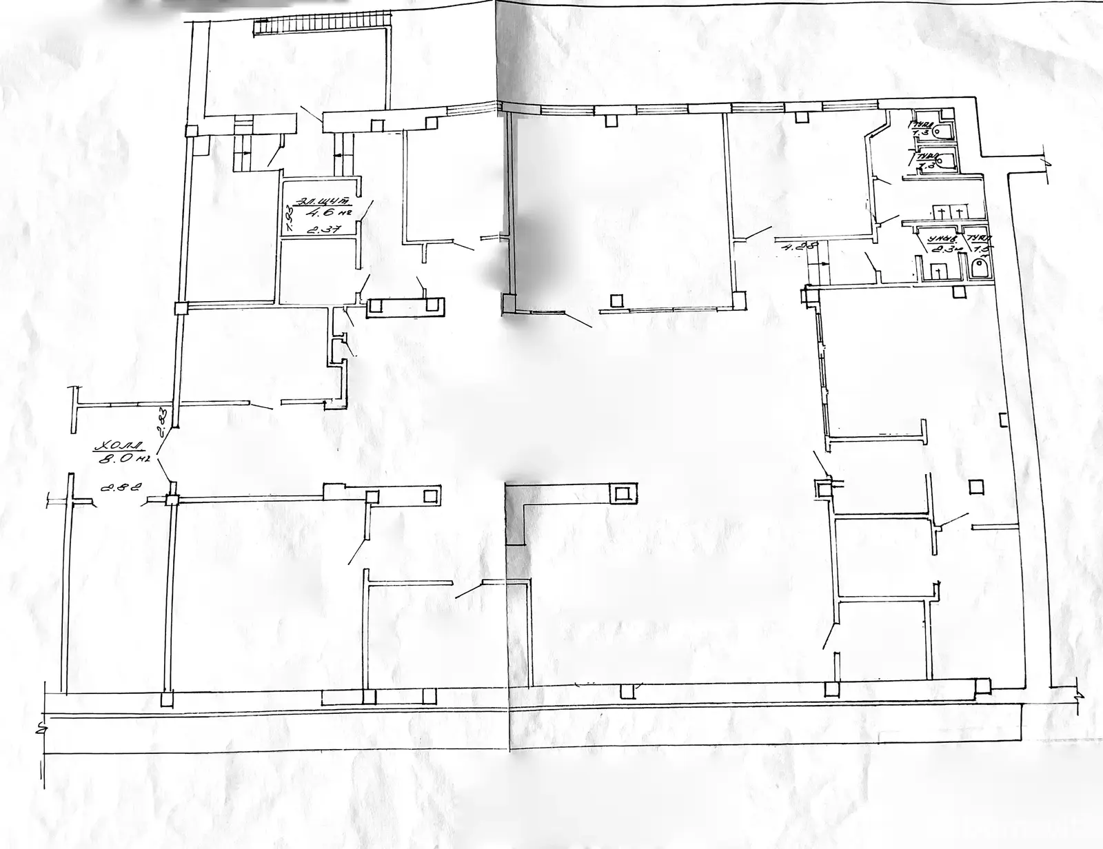
Площадь 471.5 м2
Этаж 2

Описание

Офис кабинетного формата общей площадью 471,5 м2 расположен в центральной части знаменитого здания Минского часового завода «Луч».

Просторные светлые помещения подойдут как для размещения офиса компании, так и для организации различных сфер деятельности: развлекательного центра, банковского отделения, образовательного центра, студии фитнеса, ресторана, офиса и других сфер бизнеса.

Выгодное месторасположение на одном из центральный проспектов города, высокий трафик, удобная парковка возле здания.

Арендаторам предоставляются парковочные места.

Независимый отдельный вход и доступ 24/7.

 

В помещении проведены коммуникации:

- электроснабжение (выделенная мощность 30 кВт), вода, отопление

- собственный с/у

- пожарная сигнализация

- приточно-вытяжная вентиляция

- кондиционер

- телефонная сеть, интернет.

Возможно изменение планировки под ваши цели.

 

Арендатор не оплачивает услуги агентства!!

Код объекта: 2936 Договор с собственником: 376/2а от 2024-11-01 Опубликовано: 30.04.2025 Обновлено: 06.02.2026
1 / 0 / 17
Динамика цен за кв. метрДинамика цен
Похожие объекты
Адрес
Комнат
Площадь
Этаж
Цена за м2
Цена
447.3 м2
2 из 8
32 р. за м2
471.5 м2
2 из 2
32 р. за м2
471.5 м2
2 из 2
32 р. за м2

Вы просматривали

15 000 р./мес. 32 р. за м2
Первомайский р-н
Сервис, 471.5 м2
Минск, пр-т Независимости, д. 95
15 000 р./мес.
32 р. за м2
Наталья
Пожалуйста, скажите, что нашли этот объект на Domovita.by
+
Фильтр сохранен