Выберите валюту для сайта:
BYN
Подать БЕСПЛАТНО

Объект сферы услуг в Минске, пр-т Победителей, д. 27, код 3237

422 м2 2 этаж из 4 Центральный район / Победителей Фрунзенская
10 007 р./мес.
Сервис
Город Минск
Район Центральный район
Микрорайон Победителей
Адрес пр-т Победителей, д. 27
Метро Фрунзенская
Время до метро пешком 10 мин.
Время до метро на транспорте 6 мин.
Год постройки 2012 г.
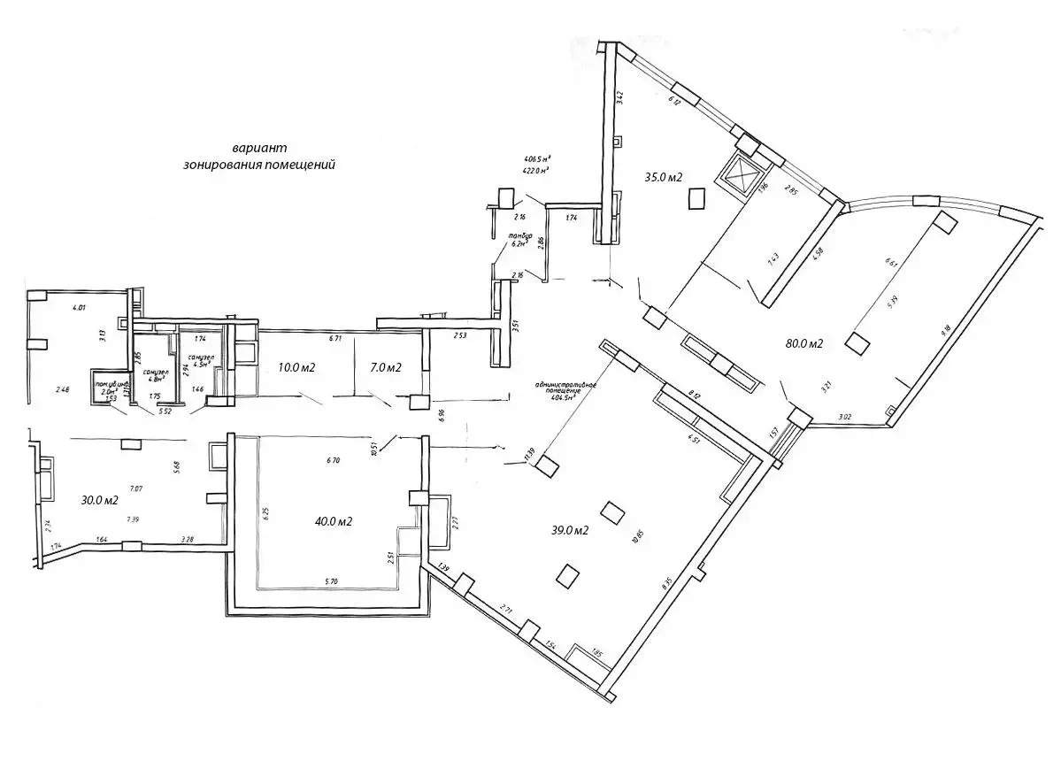
Площадь 422 м2
Этаж 2

Описание

Сдается коммерческое помещение в центре города по адресу: пр-т Победителей, 27. Это предложение идеально подходит как для инвесторов, так и для предпринимателей, стремящихся развивать свой бизнес в удачном месте.

Основные характеристики:

Адрес: проспект Победителей 27

Площадь: 422 м2

Статус: Помещение с действующим арендатором

Формат: Разделено на офисные блоки

Предлагаем вашему вниманию уникальное коммерческое помещение, расположенное в самом сердце города. Это предложение идеально подходит как для инвесторов, так и для собственников, желающих расширить свой бизнес. Помещение с арендатором гарантирует стабильный доход и минимизирует риски.

Преимущества помещения:

Удобное расположение:

   - Высокая проходимость и видимость.

   - Наличие рядом развитой инфраструктуры: кафе, магазины, банки, транспортные остановки.

   - Удобный доступ к основным транспортным артериям города.

 Планировка:

   - Помещение выполнено по кабинетной системе, что позволяет эффективно организовать рабочие процессы.

   - Изолированные кабинеты обеспечивают комфортные условия для работы и конфиденциальности.

   - Зона отдыха и кухня создают уютную атмосферу для сотрудников и посетителей.

Арендатор:

   - Помещение уже сдается в аренду надежному арендатору, что обеспечивает стабильный доход.

   - Долгосрочный договор аренды с возможностью продления.

   - Арендатор зарекомендовал себя как надежный партнер, что делает данное предложение особенно привлекательным для инвесторов.

Техническое состояние:

   - Помещение находится в отличном состоянии, готово к эксплуатации.

   - Современные системы отопления, вентиляции и кондиционирования обеспечивают комфорт в любое время года.

   - Высокие потолки и большие окна создают светлую и просторную атмосферу.

Инвестиционная привлекательность:

Инвестиции в коммерческую недвижимость на проспекте Победителей — это надежный способ сохранить и приумножить капитал. С учетом роста цен на недвижимость и увеличения спроса на аренду офисных помещений в центре города, ваше вложение будет приносить стабильный доход и со временем увеличивать свою стоимость.

На период с 7 по 19 августа связываться по мессенджерам whatsp, telegram, viber.

Лицензия: 02240/446 от 11.07.2022, Министерство юстиции РБ

Код объекта: 3237 Договор с собственником: 8/1А от 2025-07-17 Опубликовано: 18.07.2025 Обновлено: 11.11.2025
0 / 0 / 2
Динамика цен за кв. метрДинамика цен
Похожие объекты
Адрес
Комнат
Площадь
Этаж
Цена за м2
Цена
70 м2
2 из 16
44 р. за м2
422 м2
2 из 16
24 р. за м2
537.5 м2
34 р. за м2
70 м2
1 из 27
44 р. за м2

Вы просматривали

2 472 р./мес. 55 р. за м2
Центральный р-н
10 007 р./мес. 24 р. за м2
Центральный р-н
12 048 р./мес. 86 р. за м2
Центральный р-н
87 261 р./мес. 41 р. за м2
Центральный р-н
1 571 р./мес. 29 р. за м2
Железнодорожный р-н
5 929 р./мес. 49 р. за м2
Центральный р-н
Сервис, 422 м2
Минск, пр-т Победителей, д. 27
10 007 р./мес.
24 р. за м2
Фаттория
Пожалуйста, скажите, что нашли этот объект на Domovita.by
+
Фильтр сохранен