Выберите валюту для сайта:
BYN
Подать БЕСПЛАТНО

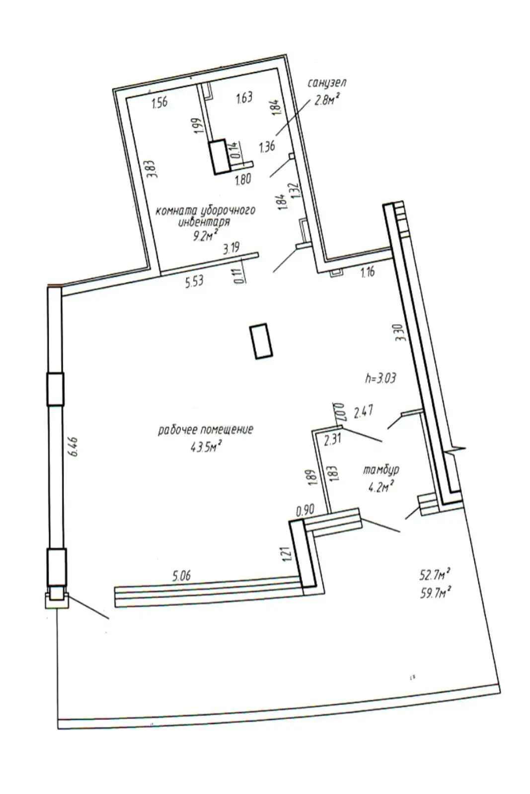
Помещение под сферу услуг в Минске, ул. Аэродромная, д. 32, код 3663

59.7 м2 1 этаж из 21 Октябрьский район / Маяковского Ковальская слобода
6 155 р./мес.
Сервис
Город Минск
Район Октябрьский район
Микрорайон Маяковского
Адрес ул. Аэродромная, д. 32
Метро Ковальская слобода
Время до метро пешком 11 мин.
Время до метро на транспорте 6 мин.
Год постройки 2017 г.
Площадь 59.7 м2
Этаж 1

Описание

Сдаётся в аренду торговое помещение с отличным ремонтом на 1-м этаже жилого дома по адресу: ул. Аэродромная, 32.

- 2 отдельных входа с доступом 24/7;

- очень высокий пеший и авто трафик: помещение расположено у крупного перекрёстка, рядом остановка общественного транспорта, в пешей доступности ст.м. «Аэродромная»;

- проведены все коммуникации: отопление, вентиляция, водоснабжение, система кондиционирования, видеонаблюдение, пожарная и охранная сигнализации.


Помещение отлично подойдёт под магазин, шоурум, кафе, а также сферу услуг.

Арендатор не оплачивает услуги агентства.

Код объекта: 3663 Договор с собственником: 114/3А от 2025-12-22 Опубликовано: 24.12.2025 Обновлено: 24.12.2025
2 / 0 / 0
Динамика цен за кв. метрДинамика цен
Похожие объекты
Адрес
Комнат
Площадь
Этаж
Цена за м2
Цена
172 м2
2 из 2
38 р. за м2

Вы просматривали

6 155 р./мес. 103 р. за м2
Октябрьский р-н
6 276 р./мес. 76 р. за м2
Первомайский р-н
1 303 р./мес. 59 р. за м2
Московский р-н
Сервис, 59.7 м2
Минск, ул. Аэродромная, д. 32
6 155 р./мес.
103 р. за м2
Александр
Пожалуйста, скажите, что нашли этот объект на Domovita.by
+
Фильтр сохранен