Выберите валюту для сайта:
BYN
Подать БЕСПЛАТНО

Объект сферы услуг в Минске, ул. Белградская, д. 8, код 3759

70.5 м2 1 этаж из 25 Октябрьский район / Маяковского Аэродромная
5 242 р./мес.
Сервис
Город Минск
Район Октябрьский район
Микрорайон Маяковского
Адрес ул. Белградская, д. 8
Метро Аэродромная
Время до метро пешком 6 мин.
Время до метро на транспорте 4 мин.
Год постройки 2022 г.
Площадь 70.5 м2
Этаж 1

Описание

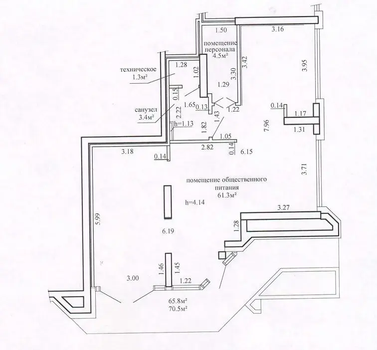
АРЕНДА помещения общественного питания!

Помещение расположено на 1-ом этаже жилого дома Нур-Султан.

Дом находится в новой современной густонаселённой, быстро развивающейся жилой застройке Минск Мира.

Помещение подходит под любую сферу деятельности!

► Адрес: г. Минск, ул. Белградская, 8
► Общая площадь — 70,5 кв.м
► Этаж — 1 из 25
► Отдельных 3 входа
► Доступ 24/7
► Высокие потолки – 4,1м
► Электрическая мощность — 15 кВт

► Пожарная сигнализация
► Собственный санузел

► Водоснабжение — горячая и холодная вода
► Отопление
► Отдельная вентиляция с проектом
► Скоростной интернет

► Удобные подъездные пути

► Парковка

Арендатор не платит комиссию агентству!

Подробнее по телефону.

ООО «ЭТАЖИ юнайтед»

УНП: 193673318

Договор 4/1А от 03.02.2026

Лицензия на оказание риэлтерских услуг №02240/460 МЮ РБ от 03.04.2023

Код объекта: 3759 Договор с собственником: 4/1а от 2026-02-03 Опубликовано: 05.02.2026 Обновлено: 05.02.2026
0 / 1 / 1
Динамика цен за кв. метрДинамика цен
Похожие объекты
Адрес
Комнат
Площадь
Этаж
Цена за м2
Цена
31.4 м2
84 р. за м2

Вы просматривали

5 242 р./мес. 74 р. за м2
Октябрьский р-н
Сервис, 70.5 м2
Минск, ул. Белградская, д. 8
5 242 р./мес.
74 р. за м2
Специалист по недвижимости
Пожалуйста, скажите, что нашли этот объект на Domovita.by
+
Фильтр сохранен