Выберите валюту для сайта:
BYN
Подать БЕСПЛАТНО
Объект в архиве
К результатам поиска

Объект сферы услуг в Минске, ул. Каховская, д. 17, код 3130

126.3 м2 1 этаж из 10 Центральный район / Старовиленский
Объект в архиве
Уважаемые пользователи, данное объявление больше не актуально. Поэтому мы убрали все контакты продавца.
Продолжить поиск
Сервис
Город Минск
Район Центральный район
Микрорайон Старовиленский
Адрес ул. Каховская, д. 17
Площадь 126.3 м2
Этаж 1

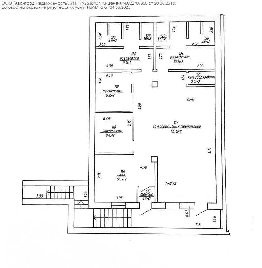
Описание

Сдается в аренду многофункциональное помещение общей площадью 126,3 м2, расположенное по адресу: г. Минск, ул. Каховская, 17.

Арендатор не оплачивает услуги агентства!

Объект включает в себя:

- зону ресепшн. Есть стойка администратора, зона ожидания, шкаф для верхней одежды;

- два помещения (тренерских) с выводом воды;

- две оборудованные раздевалки с отдельными санузлами и душевыми;

- комнату для хранения уборочного инвентаря;

- зал площадью 56,4 м2.

 

Общие характеристики:

- помещение расположено возле жилого дома;

- цоколь с отдельным входом;

- назначение - помещение физкультурно-оздоровительного и спортивного назначения;

- частично присутствует мебель;

- пол и стены – плитка;

- действующая приточно-вытяжная вентиляция;

- установлен кондиционер;

- присутствует видеонаблюдение.

 

Удобное местоположение.10 минут езды на автомобиле до центра города. В шаговой доступности находятся остановки общественного транспорта с маршрутами в разные части города.

Помещение подойдет для размещения объектов спортивного назначения (фитнес-центра, студии йоги, танцев и т.д.), сферы услуг и др.

 

Собственник работает без НДС. Более подробную информацию о помещении уточняйте по номеру телефона или в мессенджерах.

Звоните прямо сейчас!

Код объекта: 3130 Договор с собственником: 71/1а от 2025-06-04 Опубликовано: 06.06.2025 Обновлено: 23.10.2025
0 / 0 / 7
Динамика цен за кв. метрДинамика цен
Похожие объекты
Адрес
Комнат
Площадь
Этаж
Цена за м2
Цена
125.2 м2
1 из 13
29 р. за м2
121 м2
1 из 1
49 р. за м2
+
Фильтр сохранен