Выберите валюту для сайта:
BYN
Подать БЕСПЛАТНО

Помещение под сферу услуг в Минске, ул. Ленина, д. 9, код 3774

55.9 м2 1 этаж из 6 Ленинский район / Ленина Купаловская
4 905 р./мес.
Сервис
Город Минск
Район Ленинский район
Микрорайон Ленина
Адрес ул. Ленина, д. 9
Метро Купаловская
Время до метро пешком 2 мин.
Время до метро на транспорте 1 мин.
Год постройки 1952 г.
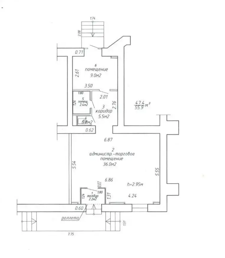
Площадь 55.9 м2
Этаж 1

Описание

АРЕНДА коммерческого помещения!

Помещение находится в самом центре Минска.

Высокий пешеходный и транспортный трафик!

Помещение сдается с ремонтом и разводкой коммуникаций.

► Адрес: г. Минск, ул. Ленина, 9
► Общая площадь — 55,9 кв.м
► Этаж — 1 из 6
► Отдельных 2 входа
► Основной вход со стороны улицы Ленина
► Доступ 24/7
► Высокие потолки – 2,95м
► Электрическая мощность — 15 кВт

► Пожарная сигнализация
► Собственный санузел

► Водоснабжение — горячая и холодная вода
► Отопление
► Вентиляция отдельная

► Кондиционер
► Скоростной интернет

► Удобные подъездные пути

► Рядом парковка

Арендатор не платит комиссию агентству!

Подробнее по телефону.

ООО «ЭТАЖИ юнайтед»

УНП: 193673318

Договор 10/1а от 16.02.2026

Лицензия на оказание риэлтерских услуг №02240/460 МЮ РБ от 03.04.2023

Код объекта: 3774 Договор с собственником: 10/1а от 2026-02-16 Опубликовано: 18.02.2026 Обновлено: 18.02.2026
0 / 1 / 7
Динамика цен за кв. метрДинамика цен
Похожие объекты
Адрес
Комнат
Площадь
Этаж
Цена за м2
Цена
124 м2
2 из 6
56 р. за м2
27.9 м2
1 из 3
85 р. за м2

Вы просматривали

4 905 р./мес. 88 р. за м2
Ленинский р-н
Сервис, 55.9 м2
Минск, ул. Ленина, д. 9
4 905 р./мес.
88 р. за м2
Специалист по недвижимости
Пожалуйста, скажите, что нашли этот объект на Domovita.by
+
Фильтр сохранен