Помещение под сферу услуг в Минске, ул. Немига, д. 38, код 3916

237.9 м2 -1 этаж из 4 Московский район / Короля Площадь Франтишка Богушевича
8 091 р./мес.
Сервис
Город Минск
Район Московский район
Микрорайон Короля
Адрес ул. Немига, д. 38
Метро Площадь Франтишка Богушевича
Время до метро пешком 7 мин.
Время до метро на транспорте 4 мин.
Год постройки 2002 г.
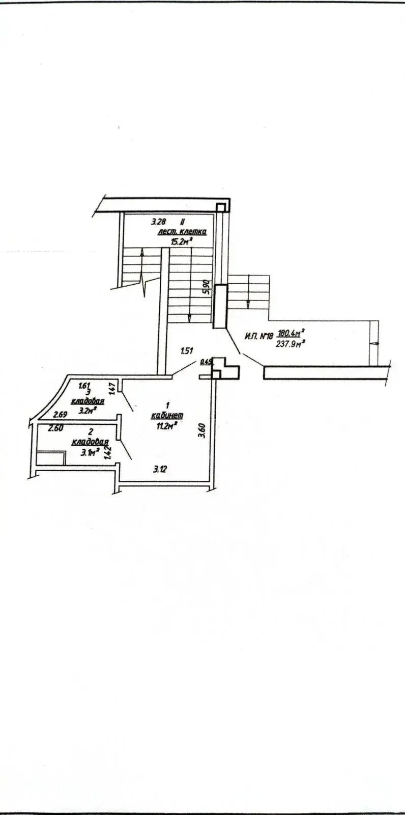
Площадь 237.9 м2
Этаж -1

Описание

Уникальная логистика и высокая проходимость обеспечены благодаря трем отдельным входам:

 

·  Отдельный вход с улицы (24/7).

·  Доступ через центральный лобби бизнес-центра.

·  Отдельный въезд под шлагбаум во внутренний двор с рампой для погрузки-разгрузки.

Это идеальное решение для бесперебойной работы служб доставки и приема продукции.

 

Характеристики:

Выделенная электрическая мощность 50 кВт.

 мощная приточно-вытяжная вентиляция и профессиональная вытяжка над технологической зоной.

  · Посадочный зал 107 м2

с зоной под гардероб;

  · Оборудованная барная стойка;

  · Полноценный цех кухни;

  · Подсобные помещения для хранения и разделки продукции;

  · Отдельный кабинет бухгалтерии/администратора;

  · Раздельные санузлы (для гостей и для персонала);

  · Увеличенное количество точек водоснабжения в подсобных и моечных зонах (удобство для интенсивной эксплуатации).

 

Преимущества локации:

Объект находится в зоне с высокой концентрацией офисов класса А и Б, а также в непосредственной близости от строящегося жилого комплекса премиум-сегмента. Это обеспечивает стабильный поток состоятельной аудитории как в дневные часы (business lunch, встречи), так и вечером.

 

· Высокий пешеходный трафик: расположение у пешеходного перехода и остановки общественного транспорта.

· Максимальная видимость: огромные витринные стекла дают отличную возможность для размещения рекламы. Предусмотрены две вывески, которые обеспечивают идеальный обзор фасада как с проезжей части центральной магистрали, так и с боковых обзорных точек,

наземная парковка

Код объекта: 3916 Договор с собственником: 107/1а от 2026-04-03 Опубликовано: 04.04.2026 Обновлено: 16.04.2026
2 / 0 / 8
Динамика цен за кв. метрДинамика цен
Похожие объекты
Адрес
Комнат
Площадь
Этаж
Цена за м2
Цена
75.43 м2
2 из 3
43 р. за м2
75.2 м2
2 из 3
43 р. за м2
120.5 м2
6 из 6
28 р. за м2
120.5 м2
6 из 6
28 р. за м2
141 м2
3 из 3
33 р. за м2

Вы просматривали

8 091 р./мес. 34 р. за м2
Московский р-н
Сервис, 237.9 м2
Минск, ул. Немига, д. 38
8 091 р./мес.
34 р. за м2
Вероника
Пожалуйста, скажите, что нашли этот объект на Domovita.by
+
Фильтр сохранен