Выберите валюту для сайта:
BYN
Подать БЕСПЛАТНО

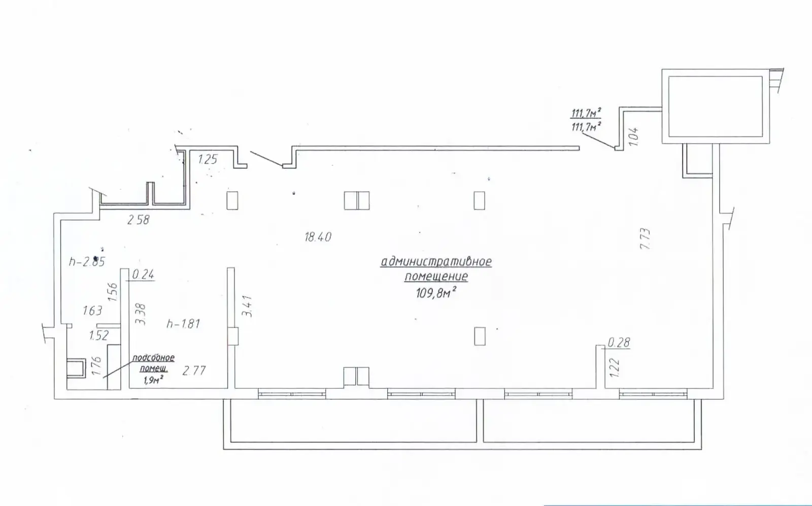
Объект сферы услуг в Минске, ул. Петра Мстиславца, д. 24, код 3322

111.7 м2 1 этаж из 11 Первомайский район / Парниковая Восток
4 910 р./мес.
Сервис
Город Минск
Район Первомайский район
Микрорайон Парниковая
Адрес ул. Петра Мстиславца, д. 24
Метро Восток
Время до метро пешком 4 мин.
Время до метро на транспорте 2 мин.
Год постройки 2013 г.
Площадь 111.7 м2
Этаж 1

Описание

Сдается в аренду многофункциональное помещение площадью 111,7 м2 в цокольном этаже жилого дома по адресу ул. Мстиславца, 24. Дом находится в престижном ЖК «Маяк Минска».

Отличная локация практически для любого вида бизнеса:

- рядом находится ст.м. Восток;

- в данной локации большой пешеходный и автомобильный трафик, так как рядом находятся два крупных торгово-развлекательных центра с большим количеством парковочных мест (Дана Молл и Первый Торговый Дом).

 

Арендатор не оплачивает услуги агентства!

Код объекта: 3322 Договор с собственником: 48/3а от 2025-08-29 Опубликовано: 02.09.2025 Обновлено: 04.12.2025
0 / 0 / 3
Динамика цен за кв. метрДинамика цен
Похожие объекты
Адрес
Комнат
Площадь
Этаж
Цена за м2
Цена
111.7 м2
1 из 10
44 р. за м2
111.7 м2
1 из 11
44 р. за м2

Вы просматривали

4 910 р./мес. 44 р. за м2
Первомайский р-н
Сервис, 111.7 м2
Минск, ул. Петра Мстиславца, д. 24
4 910 р./мес.
44 р. за м2
Юрий
Пожалуйста, скажите, что нашли этот объект на Domovita.by
+
Фильтр сохранен