Выберите валюту для сайта:
BYN
Подать БЕСПЛАТНО

Объект сферы услуг в Минске, ул. Петра Мстиславца, д. 24, код 3722

111.7 м2 -1 этаж из 9 Первомайский район / Парниковая Восток
4 518 р./мес.
Сервис
Город Минск
Район Первомайский район
Микрорайон Парниковая
Адрес ул. Петра Мстиславца, д. 24
Метро Восток
Время до метро пешком 4 мин.
Время до метро на транспорте 2 мин.
Год постройки 2013 г.
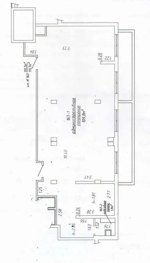
Площадь 111.7 м2
Этаж -1

Описание

Коммерческое помещение в аренду на ул. Петра Мстиславца, 24.

 

Ищете функциональное пространство для бизнеса?  Предлагаем помещение на цокольном этаже с удобной планировкой и всей необходимой инфраструктурой.

 

Ключевые преимущества:

- Готовый к работе интерьер: выполнен качественный ремонт, установлена кухня. Вы сможете обустроить пространство под свои нужды.

  - Простор и комфорт: высота потолков — 2,85 м, площадь помещения — 111,7  м2, первый этаж (цокольный этаж).

- Полная инженерная оснащённость: электричество 220В (15 кВт); центральное отопление; приточно-вытяжная вентиляция; раздельный санузел с горячей и холодной водой, есть вывод под душевую кабину и три вывода под раковины; кондиционер;

- Безопасность и контроль: установлены пожарная сигнализация, система видеонаблюдения.

- Свободный доступ к помещению: 24/7.

  - Удобство для клиентов и сотрудников: 2 отдельных входа, парковка рядом со зданием.

Локация с высоким потенциалом: развитая городская инфраструктура; рядом  — станция метро «Восток», ТЦ «Dana Mall» и «Первый национальный торговый дом».

 

Для кого подойдёт: сфера услуг  (салон красоты, барбершоп); торговля (шоурум одежды); офисная деятельность; образование и творчество ( языковые курсы или мини-студия).

 

Не упустите шанс разместить свой бизнес в удобном и функциональном пространстве!

 

Арендатор не оплачивает услуги агентства.

Звоните прямо сейчас — отвечу на все вопросы и организуем показ в удобное для Вас время!

Больше объявлений тут: www.instagram.com/garant.arenda

 

Напишите нам в удобный для Вас мессенджер:

 

Viber | Telegram | WhatsApp

 

Ответим на Ваши вопросы, предоставим всю необходимую дополнительную информацию.

ООО «Артель Недвижимость»

УНП 193820882


Лицензия Министерства Юстиции №48250000081913 06.03.2025 г.

Договор 48/2а от 21.01.2026.

Код объекта: 3722 Договор с собственником: 48/2а от 2026-01-21 Опубликовано: 27.01.2026 Обновлено: 27.01.2026
0 / 0 / 0
Динамика цен за кв. метрДинамика цен
Похожие объекты
Адрес
Комнат
Площадь
Этаж
Цена за м2
Цена
111.7 м2
1 из 10
40 р. за м2

Вы просматривали

4 518 р./мес. 40 р. за м2
Первомайский р-н
2 184 р./мес. 28 р. за м2
Ленинский р-н
Сервис, 111.7 м2
Минск, ул. Петра Мстиславца, д. 24
4 518 р./мес.
40 р. за м2
Гарант Недвижимость
Пожалуйста, скажите, что нашли этот объект на Domovita.by
+
Фильтр сохранен