Выберите валюту для сайта:
BYN
Подать БЕСПЛАТНО

Объект сферы услуг в Минске, ул. Рудобельская, д. 3, код 3012

142.5 м2 1 этаж из 1 Заводской район / Крупской Автозаводская
5 793 р./мес.
Сервис
Город Минск
Район Заводской район
Микрорайон Крупской
Адрес ул. Рудобельская, д. 3
Метро Автозаводская
Время до метро пешком 18 мин.
Время до метро на транспорте 10 мин.
Год постройки 2022 г.
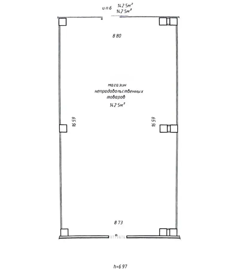
Площадь 142.5 м2
Этаж 1

Описание

Сдается в аренду торговое помещение площадью 142,5 м2 в новом ТЦ «GreenTime».

 

ТЦ расположен в 7 минутах ходьбы от Партизанского проспекта и станции метро «Автозаводская».

 

В помещении сделан ремонт, есть приточно-вытяжная вентиляция. Большие витрины. Установлен счетчик на электроэнергию. Проведен скоростной интернет.

 

Коммерческое помещение отлично подойдёт под бутик, шоурум, сферу услуг, и другие сферы бизнеса.

 

 

  • Имеется две парковки: возле ТЦ и на втором уровне.
  • Густонаселенный район, активный автомобильный трафик, рядом остановка общественного транспорта.
  • Удобный выезд на МКАД.

 

Арендатор не оплачивает услуги агентства!

Код объекта: 3012 Договор с собственником: 329/2а от 2024-09-26 Опубликовано: 30.04.2025 Обновлено: 04.12.2025
0 / 0 / 2
Динамика цен за кв. метрДинамика цен
Похожие объекты
Адрес
Комнат
Площадь
Этаж
Цена за м2
Цена
95.4 м2
1 из 1
37 р. за м2
108.3 м2
1 из 1
37 р. за м2
65.1 м2
1 из 1
34 р. за м2

Вы просматривали

5 793 р./мес. 41 р. за м2
Заводской р-н
Сервис, 142.5 м2
Минск, ул. Рудобельская, д. 3
5 793 р./мес.
41 р. за м2
Кристина Богатова
Пожалуйста, скажите, что нашли этот объект на Domovita.by
+
Фильтр сохранен