Выберите валюту для сайта:
BYN
Подать БЕСПЛАТНО

Купить помещение под сферу услуг в Минске, Долгиновский тр-т, д. 45

257.4 м2 1 этаж из 2 Центральный район / Старовиленский
326 868 р.
Сервис
Город Минск
Район Центральный район
Микрорайон Старовиленский
Адрес Долгиновский тр-т, д. 45
Площадь 257.4 м2
Этаж 1

Описание

Продажа  автомастерской (257,4 м2) с оборудованием. ВОЗМОЖНА ПРОДАЖА ЧАСТЯМИ.

Отдельный въезд, выезд и стоянка на 20 авто. Доступ круглосуточно. Располагается вблизи новых районов ЖК "Северный берег" и "Левада", близко к МКАД и городу. Фактический адрес: тракт Долгиновский, 45

Работает с 2003 года. Есть номер телефона, база клиентов, программа оформления Заказ-нарядов.

Продаёт физическое лицо без НДС. С арендаторами. Юридический адрес.

Электроснабжение: своя линия (не ГСК), 220/380 В, трёхфазное, официально. Имеется резервная, чтобы не было остановки рабочего процесса. 

Отопление: котёл на отработке. Разведено стальными трубами по всем помещениям и подключены батареи. Дополнительно имеется электрический котёл 5кВт.

Воздух для пневмоинструмента разведён от ременного компрессора, который установлен в отдельном помещении.

Воды нет. С/у на улице. Канализация разведена, местная с переливом.Есть возможность подключиться к центральным коммуникациям.

Видеонаблюдение.

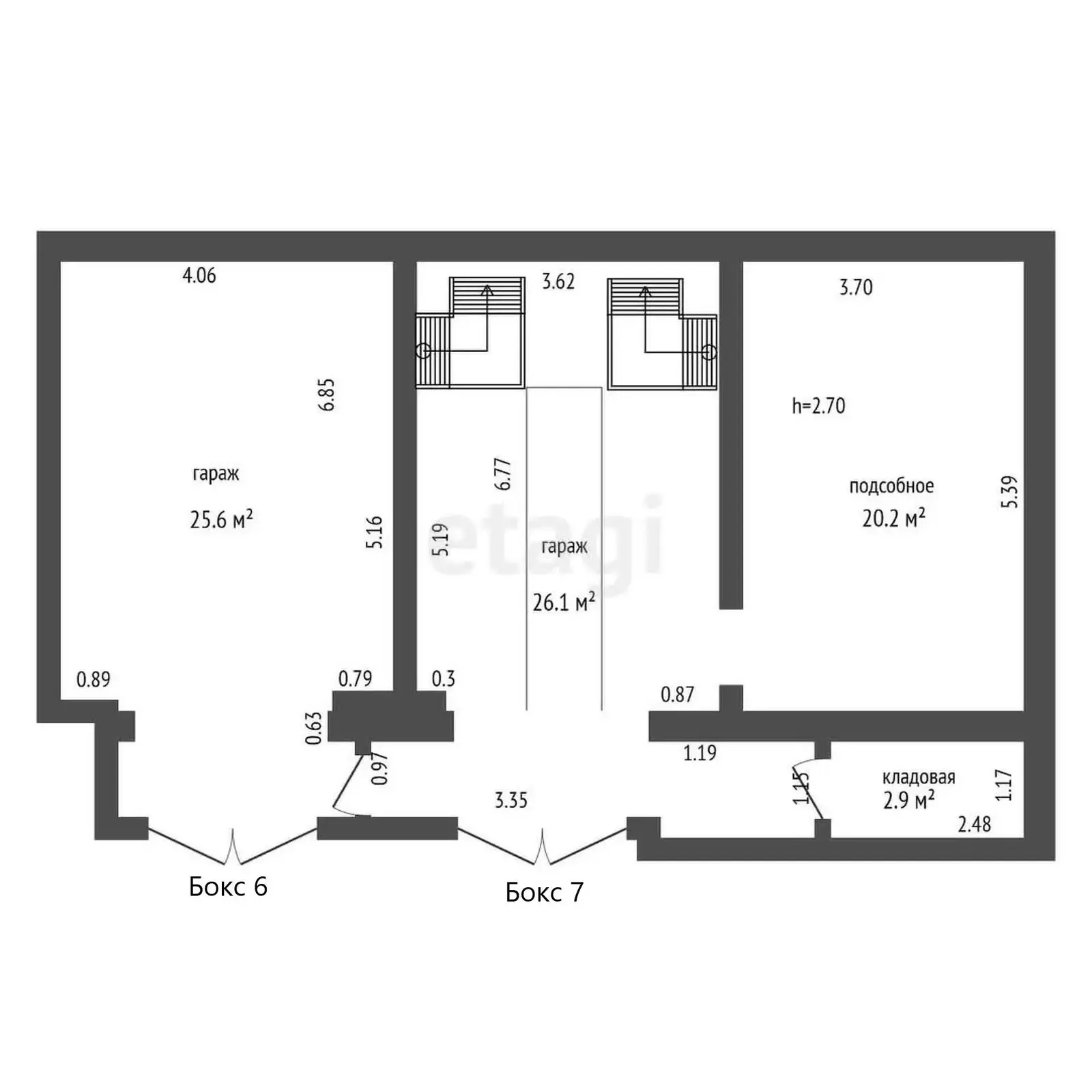
Бокс № 7 (см. фото) - развал схождения (26,1 м2), высота ворот 2,5 м; склад (20,2 м2);

Бокс № 6 - замена стекол и заправка кондиционера (25,6 м2), возможно организовать покрасочную, высота ворот 2,5 м; помещение для компрессора (2,9 м2).

1-ый этаж:

Бокс № 1 - шиномонтаж (25,9 м2), высота ворот 2,2 м;

Подбор краски (25,6 м2), высота ворот 2,0 м;

Двухуровневый бокс № 2 и 3 (53,3 м2) высота ворот 3,0 и 2,5 м. Подъёмники NORDBERG 4000 кг – 2 шт. с усиленным бетонным полом под ними. Кран-балка – 2 шт. на 1000 кг. Второй уровень (помещение для запчастей, помещение для персонала, кухня).

 

2-ой этаж:

1.     Офис с кондиционером (15,9 м2);

2.     Клиентская зона (10 м2).

ТОРГ.

Вокруг кузовной ремонт, покраска, электрики.

Больше фото по запросу, а лучше приехать и увидеть всё своими глазами.

Оказание помощи в получении кредита и лизинга для покупки этого объекта.

ООО «ЭТАЖИ юнайтед»
УНП: 193673318
Договор 2366/1 от 03.11.2025
Лицензия на оказание риэлтерских услуг №02240/460 МЮ РБ от 03.04.2023

Код объекта: 4211 Договор с собственником: 2366/1 от 2025-11-03 Опубликовано: 06.11.2025 Обновлено: 13.02.2026
0 / 0 / 12
Динамика цен за кв. метрДинамика цен
Похожие объекты
Адрес
Комнат
Площадь
Этаж
Цена за м2
Цена
202.5 м2
1 из 13
31 119 р. за м2
202.5 м2
1 из 13
31 119 р. за м2

Вы просматривали

Сервис, 257.4 м2
Минск, Долгиновский тр-т, д. 45
326 868 р.
1 270 р. за м2
Максим
Пожалуйста, скажите, что нашли этот объект на Domovita.by
+
Фильтр сохранен