Выберите валюту для сайта:
BYN
Подать БЕСПЛАТНО

Купить помещение под сферу услуг в Минске, Игуменский тр-т, д. 16

119.5 м2 1 этаж из 19 Ленинский район / Лошица
286 153 р.
Сервис
Город Минск
Район Ленинский район
Микрорайон Лошица
Адрес Игуменский тр-т, д. 16
Год постройки 2010 г.
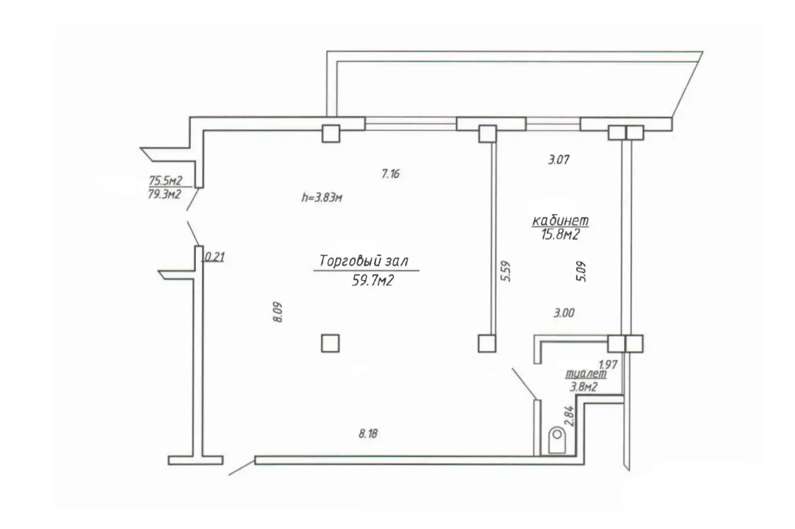
Площадь 119.5 м2
Этаж 1

Описание

Продаётся торговое помещение со складом на цокольном этаже жилого дома.

В помещении выполнен хороший ремонт. Проведены коммуникации: водоснабжение, отопление, пожарная сигнализация.
Преимущества:
- высокий трафик за счёт плотной жилой застройки и обширной линейки стрит ритэйла;

- развитая инфраструктура: рядом с помещением остановка общественного транспорта с более чем 10-ю маршрутами;

- просторный паркинг у помещения;

- доступ 24/7;

- высокие потолки.

Помещение (79.3 кв.м.) продаётся вместе с небольшим складом (40.2 кв.м.) и отлично подойдёт не только под свой бизнес (торговая точка, сфера услуг), но и арендный бизнес.

В помещении есть действующий арендатор.


Покупатель не оплачивает услуги агентства!

Код объекта: 3705 Договор с собственником: 2464/2 от 2024-10-31 Опубликовано: 30.04.2025 Обновлено: 04.12.2025
0 / 1 / 7
Динамика цен за кв. метрДинамика цен
Похожие объекты
Адрес
Комнат
Площадь
Этаж
Цена за м2
Цена
93.1 м2
1 491 р. за м2
93.1 м2
1 491 р. за м2

Вы просматривали

Сервис, 119.5 м2
Минск, Игуменский тр-т, д. 16
286 153 р.
2 395 р. за м2
Александр Крюков
Пожалуйста, скажите, что нашли этот объект на Domovita.by
+
Фильтр сохранен