Выберите валюту для сайта:
BYN
Подать БЕСПЛАТНО

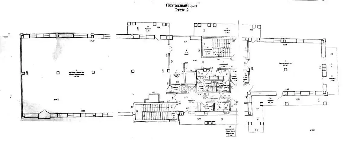
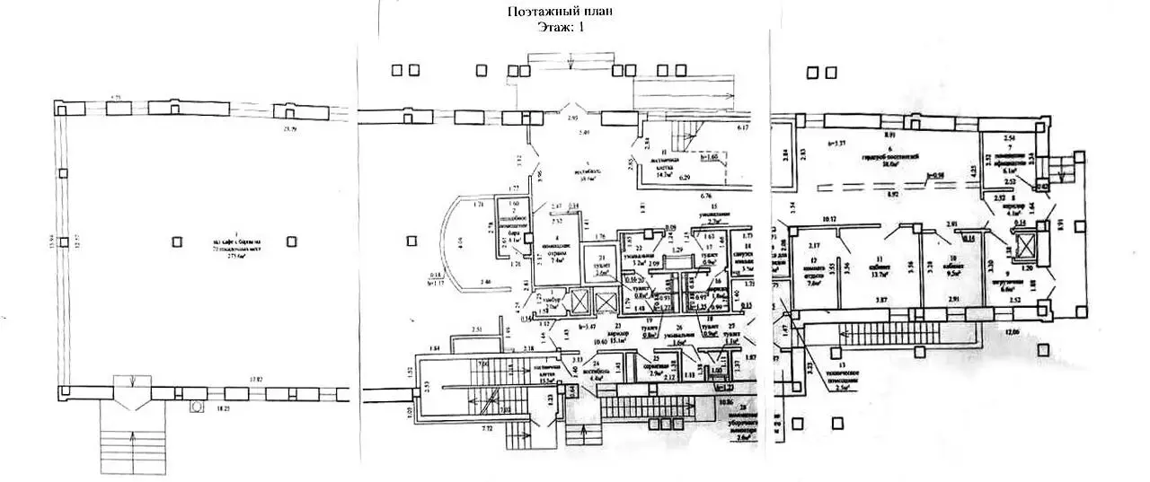
Купить помещение под сферу услуг в Минске, Логойский тр-т, д. 18

1723.9 м2 2 этаж из 3 Первомайский район / Восток
9 446 080 р.
7 970 130 р.
Сервис
Город Минск
Район Первомайский район
Микрорайон Восток
Адрес Логойский тр-т, д. 18
Год постройки 2024 г.
Площадь 1723.9 м2
Этаж 2
Удобства
Парковка

Описание

Продается здание 2024 гп. под ресторан/гостиницу или другой вид деятельности.  В непосредственной близости к центру столицы с выходом в парк! 

Высокое качество работ и материалов.

Большая организованная парковка. Идеальное место для Вашего бизнеса! Аналогов нет!

Лицензия: №02240/362 от 31.07.2018, Министерство юстиции РБ

Код объекта: 3254 Договор с собственником: 2524/1 от 2024-10-04 Опубликовано: 09.10.2024 Обновлено: 09.03.2026
0 / 0 / 7
Динамика цен за кв. метрДинамика цен
Похожие объекты
Адрес
Комнат
Площадь
Этаж
Цена за м2
Цена
1723.9 м2
4 280 р. за м2
1723.9 м2
4 280 р. за м2
1723.9 м2
1 из 3
4 428 р. за м2

Вы просматривали

7 970 130 р. 4 623 р. за м2
Первомайский р-н
Сервис, 1723.9 м2
Минск, Логойский тр-т, д. 18
7 970 130 р.
4 623 р. за м2
Агент
Пожалуйста, скажите, что нашли этот объект на Domovita.by
+
Фильтр сохранен