Выберите валюту для сайта:
BYN
Подать БЕСПЛАТНО

Купить помещение под сферу услуг в Минске, пер. Козлова, д. 25/1

195.1 м2 1 этаж из Партизанский район / Гикало Тракторный завод
1 592 635 р.
Сервис
Город Минск
Район Партизанский район
Микрорайон Гикало
Адрес пер. Козлова, д. 25/1
Метро Тракторный завод
Время до метро пешком 23 мин.
Время до метро на транспорте 12 мин.
Год постройки 2017 г.
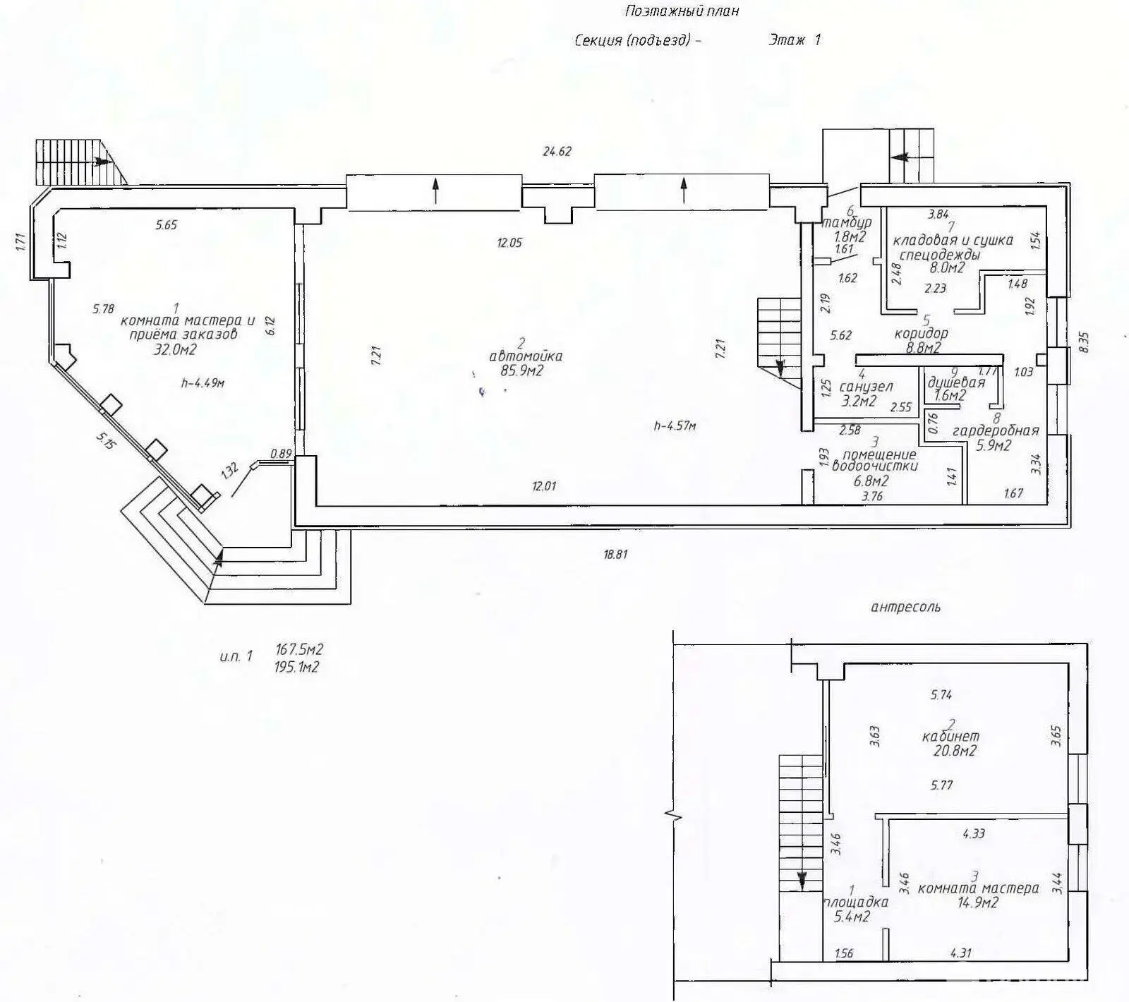
Площадь 195.1 м2
Этаж 1

Описание

Помещение под автомойку, склад, сферу услуг  в новом БЦ «Forum Plaza»

г. Минск, пер. Козлова, 25/1

Общая площадь: 195,1 м2 

Покупатель не оплачивает услуги риэлтерской организации!

• 1 этаж, антресоль;

• система кондиционирования, вентиляция с естественным и искусственным побуждением;

• оптоволоконные коммуникации (разведены сети);

• система автономной пожарной защиты;

• отдельные входы;

• коммуникации: отопление, вода, канализация, электричество;

• доступ 24/7.

Инфраструктуру деловой среды бизнес-центра также формируют: собственная служба эксплуатации зданием, кафе, конференц-зал, охраняемая парковка, АЗС.

Преимущество местоположения: центральная часть города, пересечение 3-х магистралей: ул.Козлова-Академическая-пер.Козлова. Рядом находится водно-парковая зона, Ботанический сад, в 2-х км. несколько станций метро («Площадь Победы», «Пл. Я.Купалы», «Академия наук», «Тракторный завод»).«Тракторный завод»

Код объекта: 3663 Договор с собственником: 19/3 от 2025-04-21 Опубликовано: 25.04.2025 Обновлено: 27.11.2025
0 / 1 / 10
Динамика цен за кв. метрДинамика цен
Похожие объекты
Адрес
Комнат
Площадь
Этаж
Цена за м2
Цена
290.9 м2
1 448 р. за м2
290.9 м2
1 из 10
1 593 р. за м2
415.1 м2
1 из 9
5 212 р. за м2

Вы просматривали

1 592 635 р. 8 163 р. за м2
Партизанский р-н
Сервис, 195.1 м2
Минск, пер. Козлова, д. 25/1
1 592 635 р.
8 163 р. за м2
Смолка Андрей
Пожалуйста, скажите, что нашли этот объект на Domovita.by
+
Фильтр сохранен