Выберите валюту для сайта:
BYN
Подать БЕСПЛАТНО

Купить помещение под сферу услуг в Минске, пер. Велосипедный 2-й, д. 32

162.7 м2 2 этаж из 2 Ленинский район / Серебрянка
547 287 р.
Сервис
Город Минск
Район Ленинский район
Микрорайон Серебрянка
Адрес пер. Велосипедный 2-й, д. 32
Год постройки 2006 г.
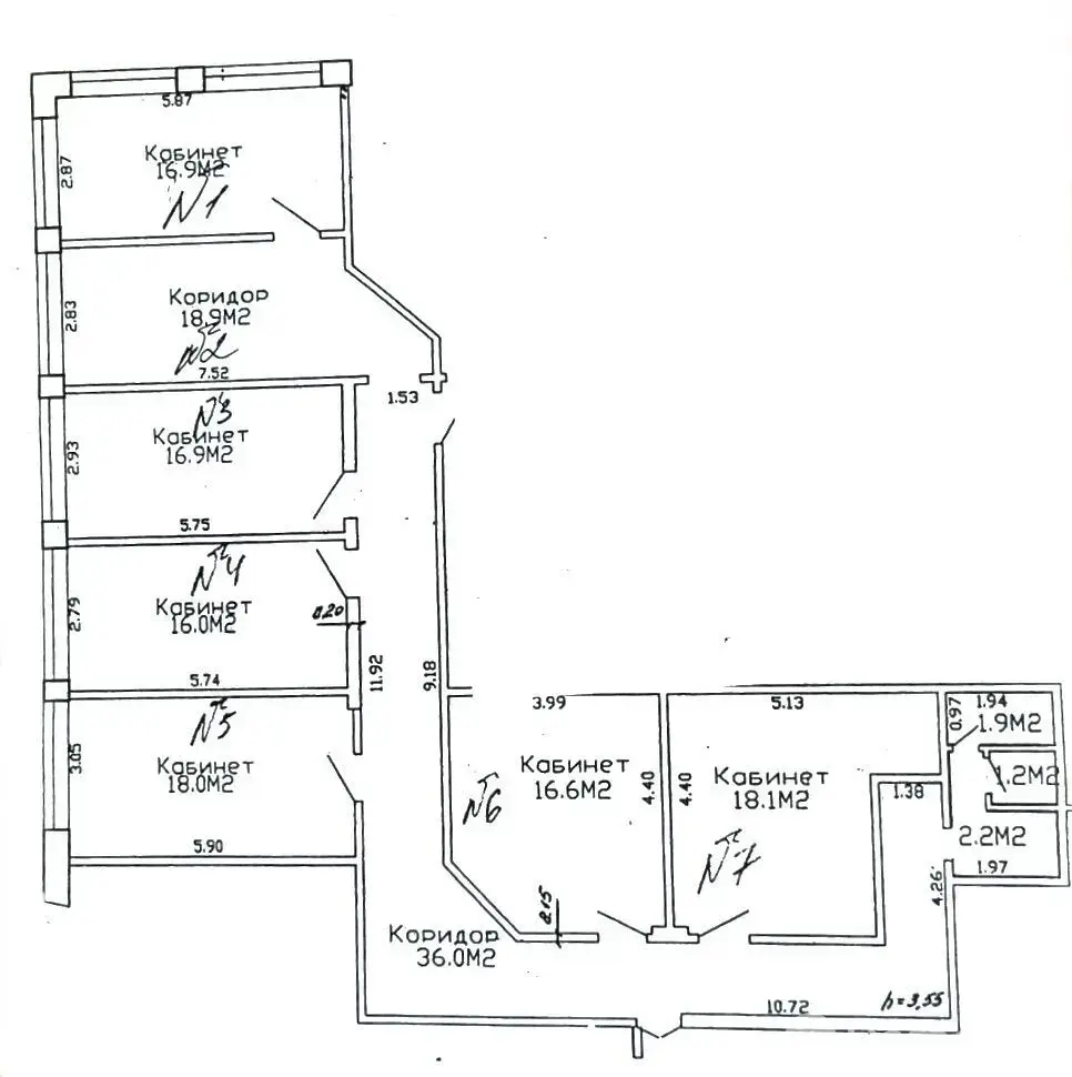
Площадь 162.7 м2
Этаж 2

Описание

Продажа офисного помещения 162,7 кв.м. на 2 этаже (с действующими арендаторами) в административном центре расположенном на пер. Велосипедном 2-ом,32 в 15-ти минутах от центра города. Административный центр 2006 г.п. Помещения с хорошим ремонтом и естественным освещением. На этаже есть свой санузел. Помещения полностью мебелированы. Есть все коммуникации: электричество, вода, канализация, отопление, скоростной интернет, кондиционер, видеонаблюдение по периметру, большая парковка.
Дополнительная информация по телефону. Показы в удобное время.

Код объекта: 3553 Договор с собственником: 22/2 от 2024-09-30 Опубликовано: 03.03.2025 Обновлено: 05.12.2025
0 / 0 / 7
Динамика цен за кв. метрДинамика цен
Похожие объекты
Адрес
Комнат
Площадь
Этаж
Цена за м2
Цена
30 м2
42 470 р. за м2
Сервис, 162.7 м2
Минск, пер. Велосипедный 2-й, д. 32
547 287 р.
3 364 р. за м2
Гринман риалти групп
Пожалуйста, скажите, что нашли этот объект на Domovita.by
+
Фильтр сохранен