Выберите валюту для сайта:
BYN
Подать БЕСПЛАТНО

Купить помещение под сферу услуг в Минске, пр-т Независимости, д. 58

365.5 м2 1 этаж из 4 Советский район / Гикало Площадь Якуба Коласа
3 058 230 р.
Сервис
Город Минск
Район Советский район
Микрорайон Гикало
Адрес пр-т Независимости, д. 58
Метро Площадь Якуба Коласа
Время до метро пешком 4 мин.
Время до метро на транспорте 2 мин.
Площадь 365.5 м2
Этаж 1
Удобства
Круглосуточный доступ
Отдельный вход

Описание

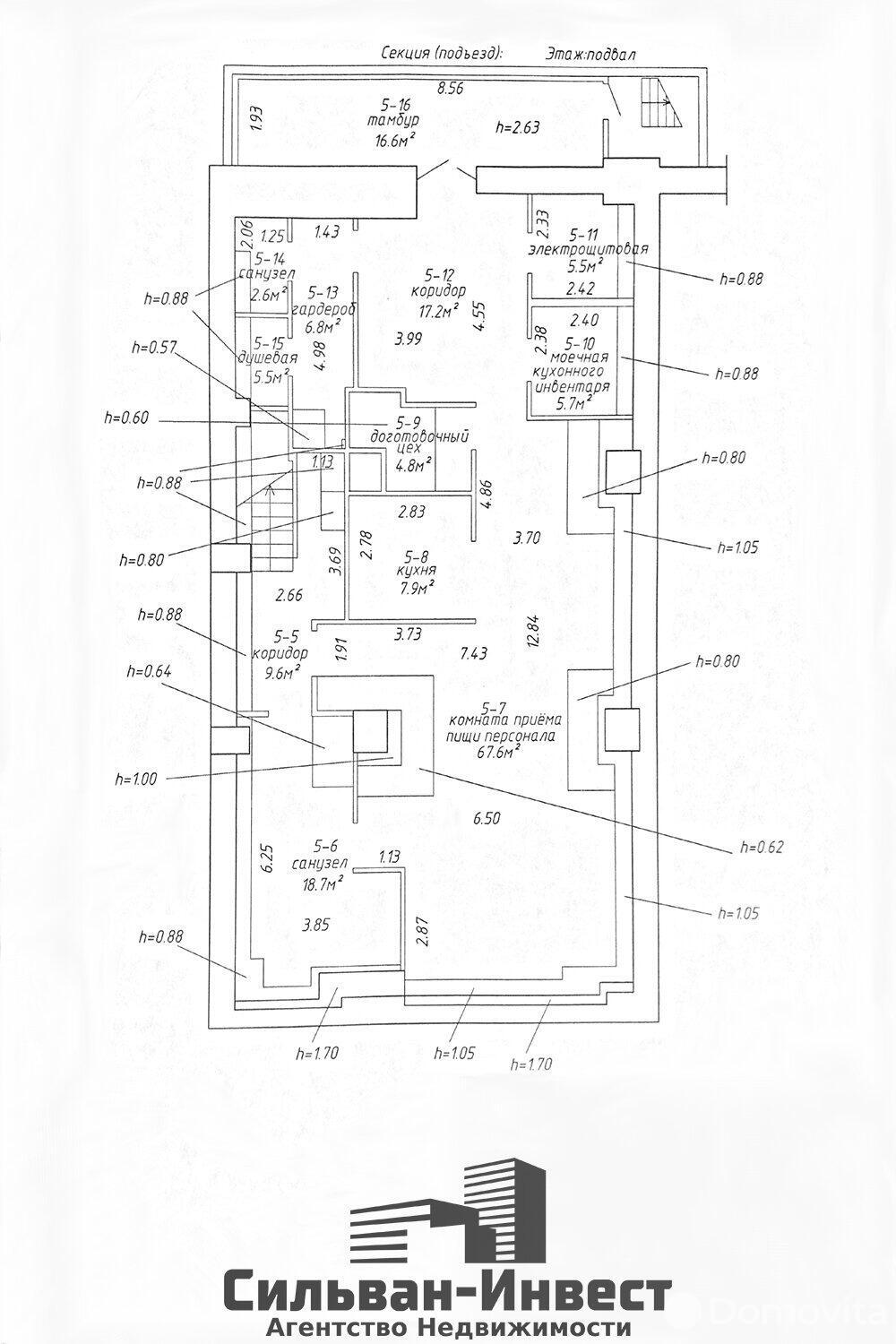
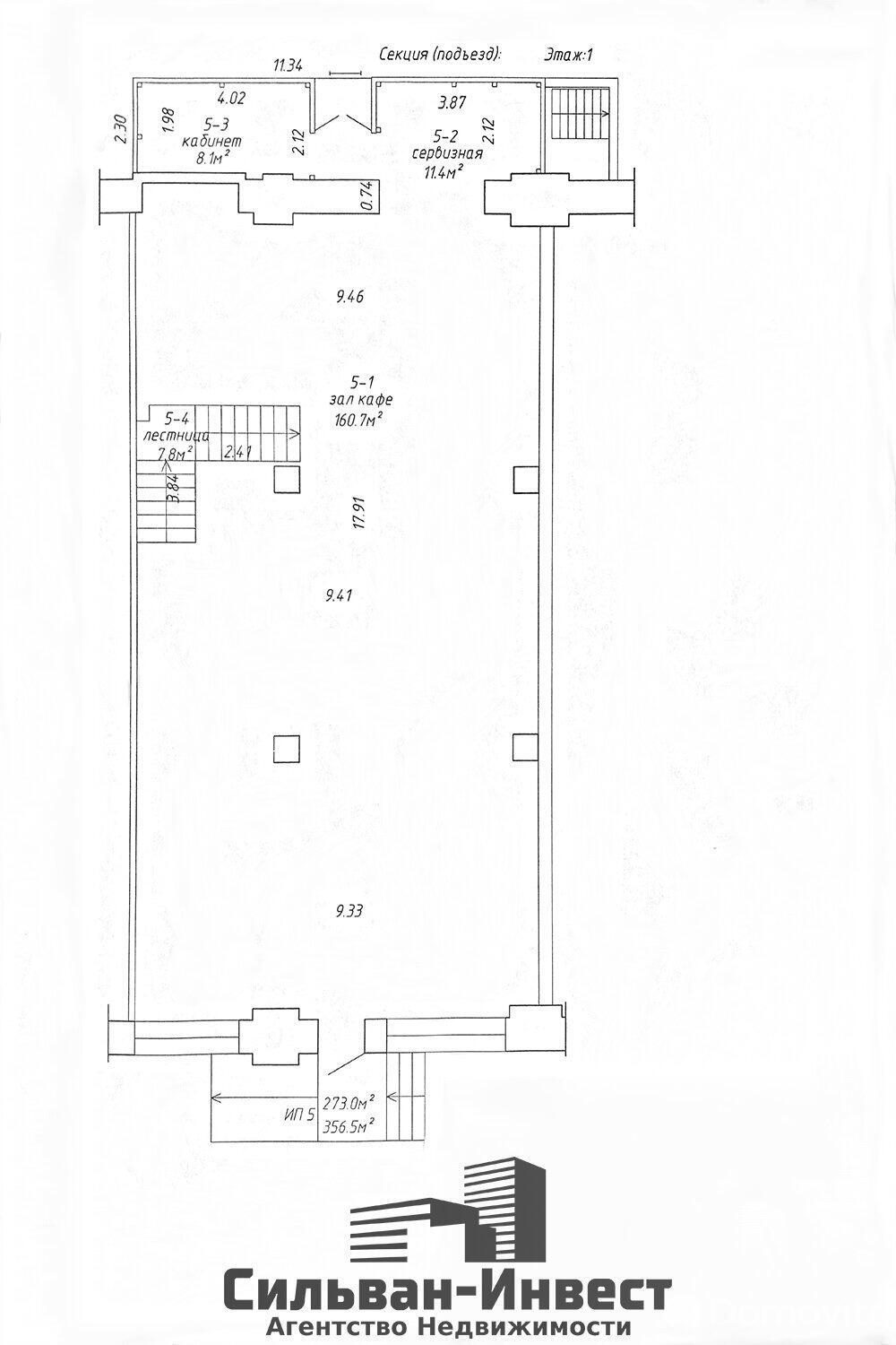
Продажа торгово - административного помещения.

Адрес: г. Минск, ул. Независимости, д. 58

Площадь: 365,5 м2

Продажа 2- этажного торгово - административного помещения, расположенного в подвальном и на 1 этажах четырехэтажного здания 1946 года постройки,

Подходит под торговлю, сферу услуг, общепит, офисы

Характеристики:

- Статусная локация

- Отдельный вход

- Электричество

- Водоснабжение

- Отопление

- Вентиляция

- Отличные подъездные пути

- Доступ 24/7

- Санузел

- Рампа

- Повышенный пешеходный и покупательский траффик

В пешей доступности находятся ст. метро Академия наук и Якуба Коласа, остановки общественного транспорта.

Покупатель не оплачивает услуги риэлтерской организации!

Ваш агент – Андрей Смолка

Присоединяйтесь к нам в соцсетях:

Instagram

Facebook

VK

OK

YouTube

Договор № 62/4 - с 20.03.2024 по 19.03.2026

ООО «Сильван-Инвест», УНП 192927433, лицензия №02240/383, Министерство юстиции РБ, 24.09.2019.

Код объекта: 3120 Договор с собственником: 62/4 от 2024-03-20 Опубликовано: 23.07.2024 Обновлено: 25.12.2025
0 / 0 / 12
Динамика цен за кв. метрДинамика цен
Похожие объекты
Адрес
Комнат
Площадь
Этаж
Цена за м2
Цена
105.2 м2
2 345 р. за м2

Вы просматривали

Сервис, 365.5 м2
Минск, пр-т Независимости, д. 58
3 058 230 р.
8 367 р. за м2
Андрей Смолка
Пожалуйста, скажите, что нашли этот объект на Domovita.by
+
Фильтр сохранен