Выберите валюту для сайта:
BYN
Подать БЕСПЛАТНО

Купить помещение под сферу услуг в Минске, пр-т Победителей, д. 115

215 м2 1 этаж из 20 Центральный район / Лебяжий
981 529 р.
799 245 р.
Сервис
Город Минск
Район Центральный район
Микрорайон Лебяжий
Адрес пр-т Победителей, д. 115
Год постройки 2021 г.
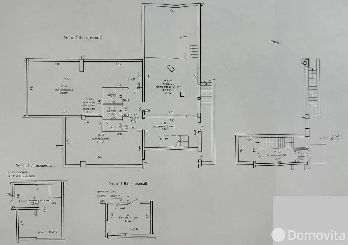
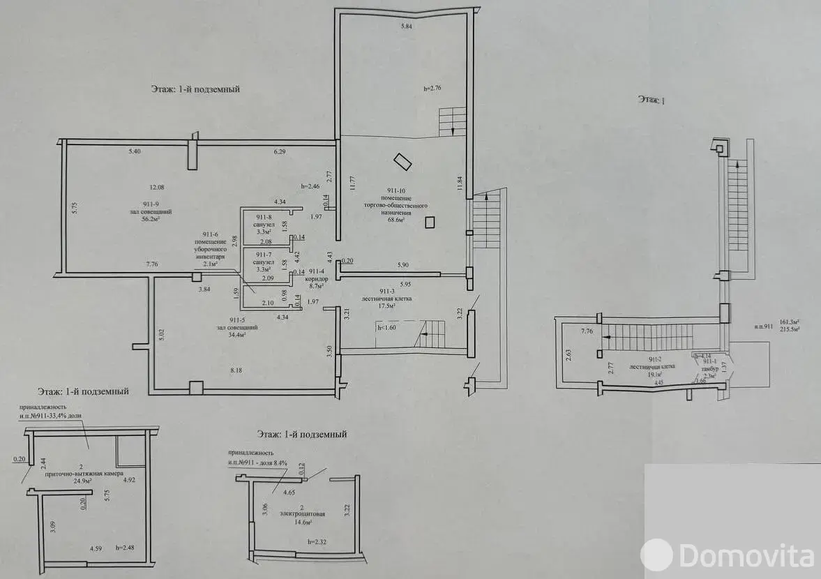
Площадь 215 м2
Этаж 1

Описание


Лучшее коммерческое помещение в Минске! 
Уникальное предложение  на проспекте Победителей!

 Продажа: срок окупаемости 8 лет! Возможна аренда!

Объект расположен в самом проходимом месте - это ворота в топовый ЖК "Лазурит" и огромный жилой комплекс  "Променад". Окружение популярных бизнесов: магазин "Соседи" и цветочный бутик!
Именно в этом помещении состоится наиболее динамичный рост вашего бизнеса!

 Преимущества помещения:
 Цокольный этаж с двумя отдельными входами.
 Возможность деления пространства.
 Высокий пешеходный и автомобильный трафик.
Престижный район с развитой инфраструктурой.
Идеально для бизнеса:
 Бьюти и спа-салоны, фитнес-центры, игровые клубы,  кафе и рестораны … и многое другое!
Гарантированный стабильный доход и перспективное развитие бизнеса!

Лучшее предложение по цене и месторасположению!

Код объекта: 2794 Договор с собственником: 2095/1 от 2025-10-01 Опубликовано: 11.01.2024 Обновлено: 29.01.2026
0 / 0 / 57
Динамика цен за кв. метрДинамика цен
Похожие объекты
Адрес
Комнат
Площадь
Этаж
Цена за м2
Цена
410.7 м2
1 из 5
5 723 р. за м2
679.2 м2
1 из 6
8 585 р. за м2
130 м2
1 из 7
12 877 р. за м2
422 м2
1 из 19
3 005 р. за м2
722.4 м2
1 из 19
2 146 р. за м2

Вы просматривали

799 245 р. 3 717 р. за м2
Центральный р-н
915 712 р. 8 779 р. за м2
Центральный р-н
2 546 824 р. 6 438 р. за м2
Центральный р-н
Сервис, 215 м2
Минск, пр-т Победителей, д. 115
799 245 р.
3 717 р. за м2
Ольга
Пожалуйста, скажите, что нашли этот объект на Domovita.by
+
Фильтр сохранен