Выберите валюту для сайта:
BYN
Подать БЕСПЛАТНО

Купить помещение под сферу услуг в Минске, ул. Бабушкина, д. 60/а

159.5 м2 1 этаж из 1
829 864 р.
543 704 р.
Сервис
Город Минск
Адрес ул. Бабушкина, д. 60/а
Год постройки 2008 г.
Площадь 159.5 м2
Этаж 1

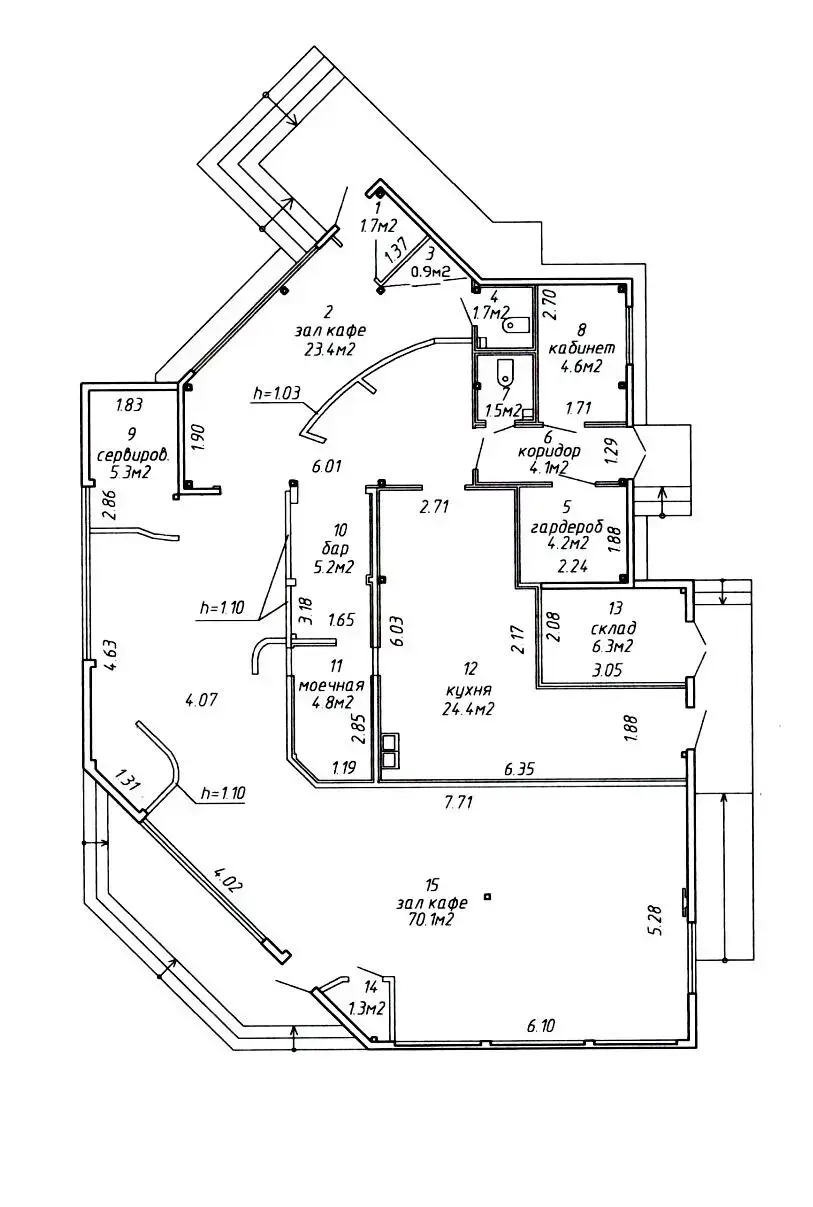
Описание

Параметры объекта:

Площадь участка - 0,0612 га (6 соток)

Площадь общая –  217 м2

Этаж / этажность - 1 /1

Год постройки – 2008

Материал наружных стен – сэндвич панели

Перегородки – газосиликатные блоки

Электроснабжение -  есть 

Электрическая мощность - 65 кВт

Принадлежность объекта – Частная

Земля в аренде (возможность изменить назначение земельного участка под иной вид деятельности (автомойку, сто, складское помещение и др.))

 

Здание одноэтажное.

- Фундамент – железобетонный;

- Наружные стены – сэндвич панели;

- стены внутри здания газосиликатные;

- перекрытие – железобетонное;

- подвала – нет;

- крыша – металлическая;

- полы –плиточные;

- Окна – ПВХ;

- Двери – ПВХ;

- внутренняя отделка – окраска, плитка;

- отопление – электрическое (обогреватели), скрытая проводка;

Вода, канализация, горячее водоснабжение, вентиляция, три холодильных камеры, складское помещение. Есть своя стоянка.

Лицензия: 02240/483 МЮ РБ, 18.05.2024

Код объекта: 4291 Договор с собственником: 410/1 от 2025-12-11 Опубликовано: 13.12.2025 Обновлено: 07.02.2026
0 / 2 / 8
Динамика цен за кв. метрДинамика цен
Похожие объекты
Адрес
Комнат
Площадь
Этаж
Цена за м2
Цена
159.5 м2
1 из 1
3 409 р. за м2
159.5 м2
3 388 р. за м2

Вы просматривали

Сервис, 159.5 м2
Минск, ул. Бабушкина, д. 60/а
543 704 р.
3 409 р. за м2
Евгений
Пожалуйста, скажите, что нашли этот объект на Domovita.by
+
Фильтр сохранен