Выберите валюту для сайта:
BYN
Подать БЕСПЛАТНО

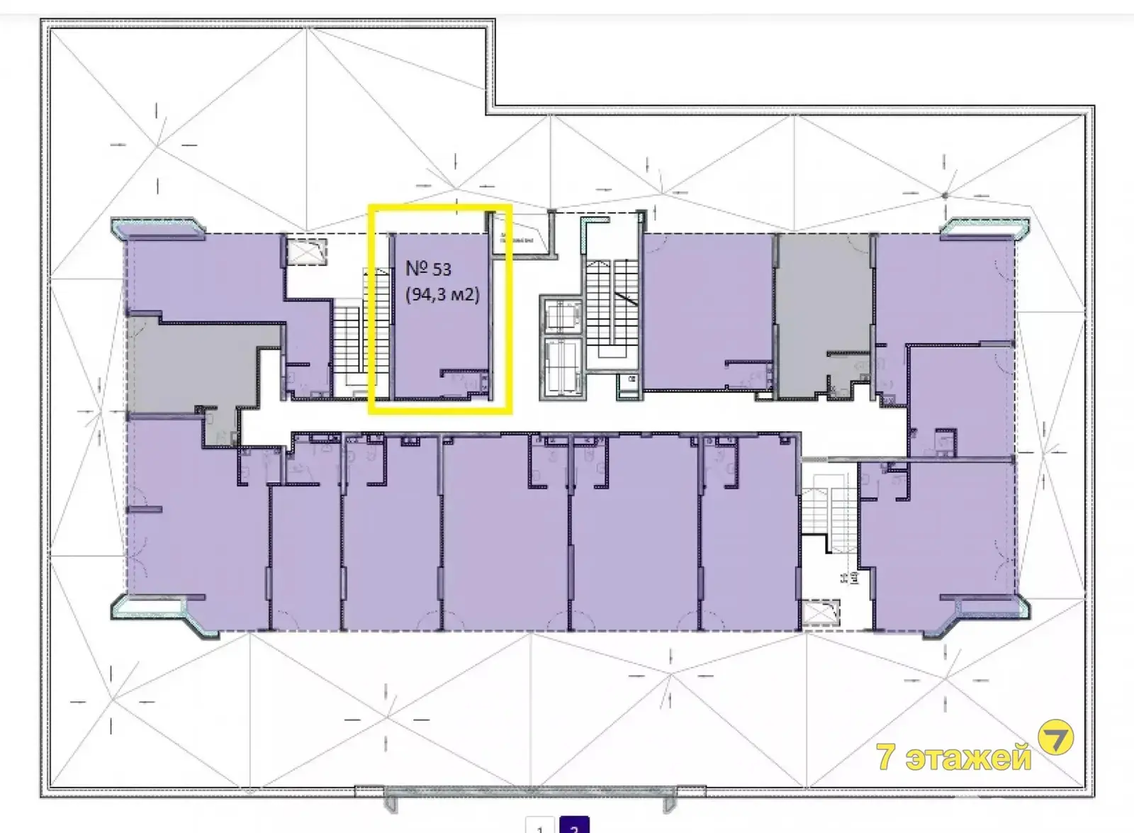
Купить помещение под сферу услуг в Минске, ул. Братская, д. 17

97.3 м2 Октябрьский район / Маяковского Аэродромная
379 497 р.
Сервис
Город Минск
Район Октябрьский район
Микрорайон Маяковского
Адрес ул. Братская, д. 17
Метро Аэродромная
Время до метро пешком 5 мин.
Время до метро на транспорте 3 мин.
Площадь 97.3 м2
Удобства
Телефон
Отдельный вход

Описание

Торговые помещения на 1 этаже имеют отдельный вход с улицы, каждое помещение имеет свои коммуникации. Высота потолков – 4,3 метра. Торгово-административные помещения на 2 этаже с открытыми террасами и эксплуатируемой кровлей. Высота потолков – 3,6 метра. ЛЮБЫЕ подробности по телефону! Поможем продать вашу квартиру для покупки этой. Проконсультируем по вопросом кредитования! Сопровождение на всех этапах! Цена и наличие актуальны на 20.08.2025
Код объекта: 2436 Договор с собственником: 357/3-10/17-53 от 22.02.2023 Опубликовано: 07.07.2023 Обновлено: 23.09.2025
0 / 0 / 10
Динамика цен за кв. метрДинамика цен
Похожие объекты
Адрес
Комнат
Площадь
Этаж
Цена за м2
Цена
115.1 м2
3 900 р. за м2

Вы просматривали

379 497 р. 3 900 р. за м2
Октябрьский р-н
Сервис, 97.3 м2
Минск, ул. Братская, д. 17
379 497 р.
3 900 р. за м2
Агент
Пожалуйста, скажите, что нашли этот объект на Domovita.by
+
Фильтр сохранен