Выберите валюту для сайта:
BYN
Подать БЕСПЛАТНО

Купить помещение под сферу услуг в Минске, ул. Долгобродская, д. 58

591.8 м2 3 этаж из 3 Заводской район / Кошевого Партизанская
3 764 410 р.
Сервис
Город Минск
Район Заводской район
Микрорайон Кошевого
Адрес ул. Долгобродская, д. 58
Метро Партизанская
Время до метро пешком 11 мин.
Время до метро на транспорте 6 мин.
Год постройки 2016 г.
Площадь 591.8 м2
Этаж 3

Описание

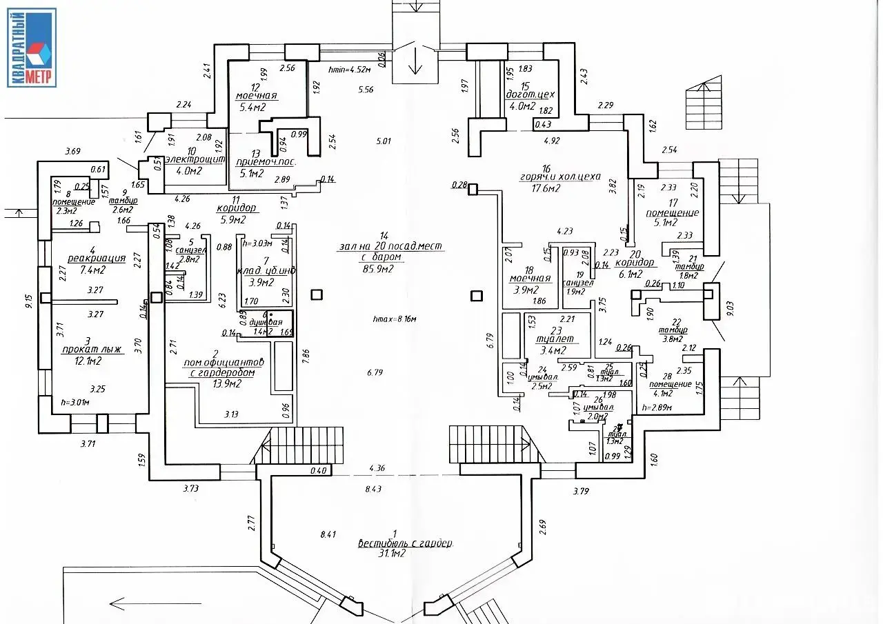
Объект недвижимости представлен зданием многофункциональным (кафе, пункт проката спортивного инвентаря). Общая площадь 591.8 м. кв. - кафе на 90 посадочных мест, предусмотрено устройство летних террас на 100 мест и пункт проката спортивного инвентаря с отдельным входом. Здание двухэтажное с устройством мансардного этажа и подвала. Фундамент из монолитного железобетона. Стены выполнены из кирпича с утеплителем. Кровля совмещенная, утепленная с вентилируемой прослойкой. Оконные блоки и витражи из алюминиевого профиля. Дверные блоки деревянные и металлические. Теплоснабжение здания осуществляется от собственной встроенной котельной на твёрдом топливе (пелетах). В здании установлена приточно-вытяжная вентиляция с механическии побуждением и рекуперацией тепла. К зданию проложена 6-метровая подьездная дорога от ул. Долгобродской с устройством шлагбаума на вьезде. Организована автостоянка на 8 машиномест. Согласно генплана, земельный участок расположен в г. Минске на территории парка культуры и отдыха.

Код объекта: 3405 Договор с собственником: 1/1 от 2025-01-10 Опубликовано: 20.02.2025 Обновлено: 28.11.2025
0 / 0 / 29
Динамика цен за кв. метрДинамика цен
Похожие объекты
Адрес
Комнат
Площадь
Этаж
Цена за м2
Цена
633.4 м2
1 из 2
8 229 р. за м2
281 м2
3 040 р. за м2
Сервис, 591.8 м2
Минск, ул. Долгобродская, д. 58
3 764 410 р.
6 371 р. за м2
.
Пожалуйста, скажите, что нашли этот объект на Domovita.by
+
Фильтр сохранен