Выберите валюту для сайта:
BYN
Подать БЕСПЛАТНО

Купить помещение под сферу услуг в Минске, ул. Харьковская, д. 3/А

215 м2 1 этаж из 10 Московский район / Люксембург Молодежная
87 232 р.
Сервис
Город Минск
Район Московский район
Микрорайон Люксембург
Адрес ул. Харьковская, д. 3/А
Метро Молодежная
Время до метро пешком 11 мин.
Время до метро на транспорте 6 мин.
Год постройки 1995 г.
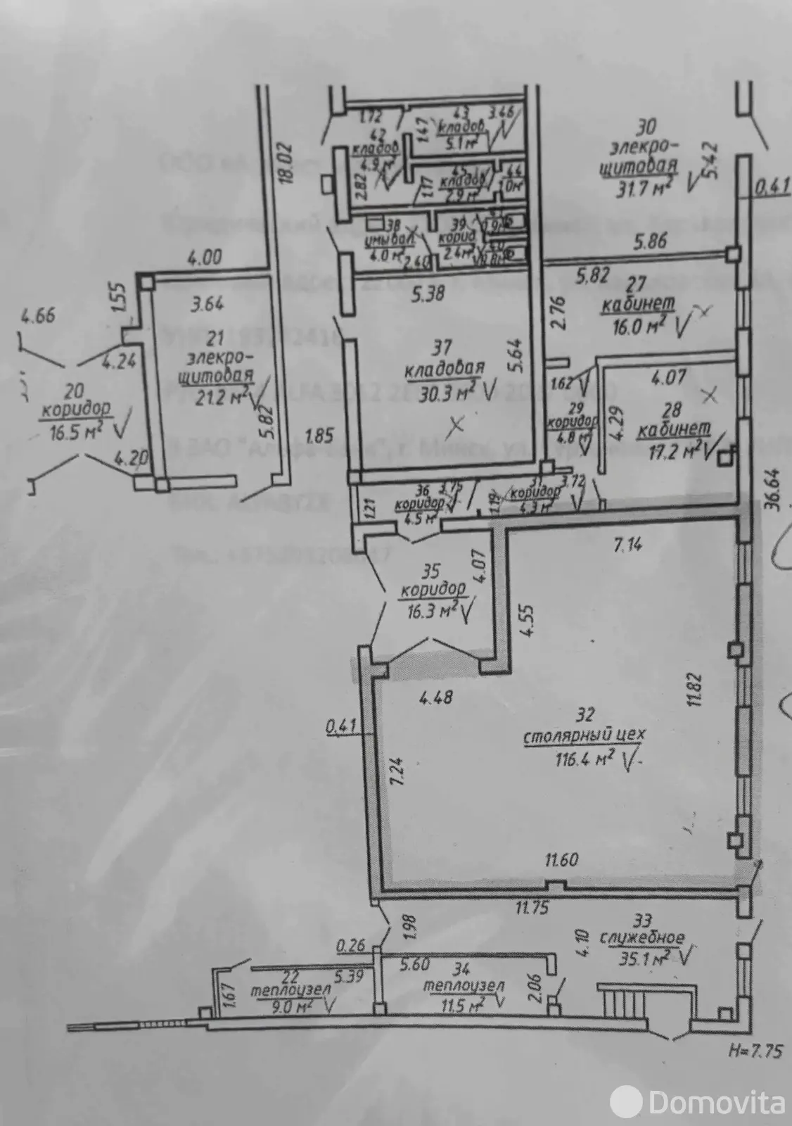
Площадь 215 м2
Этаж 1

Описание

Продается готовый бизнес по производству и реставрации мебели.

Производство продается как готовый бизнес (права аренды помещения, ремонт, мебель, оборудование, инструменты), который работает уже 10 лет и приносит доход, имеет постоянных клиентов.

Работает как собственное производство кухонь, а также корпусной мебели + реставрация и реконструкция.

Производство находится на территории завода, что обеспечивает удобные условия работы, не высокую арендную ставку и коммунальные платежи.

Рядом нет конкурентов.

Есть как столярные цеха, так и офисные помещения, санузел, кухня.

Покупатель не оплачивает услуги агентства.

Код объекта: 3728 Договор с собственником: 77/2а от 2025-03-17 Опубликовано: 30.04.2025 Обновлено: 04.12.2025
0 / 0 / 11
Динамика цен за кв. метрДинамика цен
Похожие объекты
Адрес
Комнат
Площадь
Этаж
Цена за м2
Цена
3-комнатная
215.1 м2
1 из 1
3 786 р. за м2

Вы просматривали

Сервис, 215 м2
Минск, ул. Харьковская, д. 3/А
87 232 р.
407 р. за м2
Кристина Богатова
Пожалуйста, скажите, что нашли этот объект на Domovita.by
+
Фильтр сохранен