Выберите валюту для сайта:
BYN
Подать БЕСПЛАТНО

Купить помещение под сферу услуг в Минске, ул. Кропоткина, д. 61

1431 м2 Центральный район / Каховская Немига
6 838 808 р.
Сервис
Город Минск
Район Центральный район
Микрорайон Каховская
Адрес ул. Кропоткина, д. 61
Метро Немига
Время до метро пешком 22 мин.
Время до метро на транспорте 12 мин.
Площадь 1431 м2

Описание

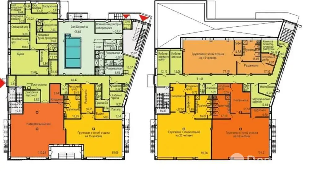
Продажа здания с бассейном в МК Фарфоровый, г.Минск, ул.Кропоткина. Коммерческая недвижимость.

  • Здание  специализированное под детское учреждение, с бассейном (здание проектировалось как детский сад).
  • Возможно перепрофилирование помещений здания с учетом запроса инвестора.
  • Общая площадь - 1431м2,
  • Здание имеет два этажа, пристроено к жилому дому по ул. Кропоткина, 61.
  •  Возможно приобретение по  этажам в отдельности.
  •  Кредитная поддержка банком-партнером юридических и физических лиц.
  • На первом этаже расположен бассейн 132м2.  Бассейн имеет отдельный вход с общественной территории и может функционировать изолированно.
  • Срок сдачи -2026г.
  • Удобная транспортная доступность - расположение  МК Фарфоровый в центре города.  В перспективе - завершающий этап строительства Зеленолужской линии метро, станции которой будут находится в шаговой доступности от жилого комплекса.
  • МК Фарфоровый - это комфортная коммерческая среда, ориентированная на развитие. 
  • Звоните прямо сейчас, чтобы проконсультироваться и сделать свой выбор.
Код объекта: 4107 Договор с собственником: 4/3 от 2025-09-16 Опубликовано: 25.09.2025 Обновлено: 09.12.2025
0 / 0 / 4
Динамика цен за кв. метрДинамика цен
Похожие объекты
Адрес
Комнат
Площадь
Этаж
Цена за м2
Цена
110 м2
1 из 3
1 520 р. за м2
71.6 м2
1 из 15
6 146 р. за м2
71.6 м2
1 из 15
6 351 р. за м2
80 м2
1 из 14
5 427 р. за м2
71.6 м2
1 из 15
6 269 р. за м2

Вы просматривали

6 838 808 р. 4 779 р. за м2
Центральный р-н
Сервис, 1431 м2
Минск, ул. Кропоткина, д. 61
6 838 808 р.
4 779 р. за м2
Валентина
Пожалуйста, скажите, что нашли этот объект на Domovita.by
+
Фильтр сохранен