Выберите валюту для сайта:
BYN
Подать БЕСПЛАТНО

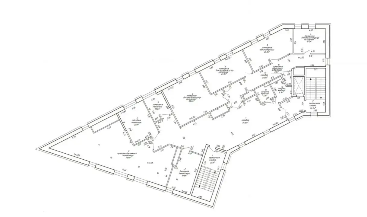
Купить помещение под сферу услуг в Минске, ул. Юрово-Завальная, д. 13

1960 м2 1 этаж из 3 Центральный район / Победителей Фрунзенская
12 361 975 р.
Сервис
Город Минск
Район Центральный район
Микрорайон Победителей
Адрес ул. Юрово-Завальная, д. 13
Метро Фрунзенская
Время до метро пешком 7 мин.
Время до метро на транспорте 4 мин.
Год постройки 2024 г.
Площадь 1960 м2
Этаж 1

Описание

Продается 3-х этажное многофункциональное общественное здание 1516,4м2 в центре города на оживленной улице Раковская, проектировали под кафе джаз-клуб.

 

Можно рассматривать под общепит, медицинский центр, офис, отель!

 

 

 

Высокий  пешеходным трафиком, рядом множество различных заведений формата общепит: ресторанов, баров, кофеен, пекарен, аптека и медицинский центр.

 

Проведены коммуникации:

 

Электроснабжение 180 кВт, вода, отопление, канализация К3, пожарная сигнализация, приточно-вытяжная вентиляция, система кондиционирования.

 

Арендатор не платит за услуги агентства

Код объекта: 3923 Договор с собственником: 846/2 от 2025-06-25 Опубликовано: 15.07.2025 Обновлено: 04.12.2025
0 / 0 / 2
Динамика цен за кв. метрДинамика цен
Похожие объекты
Адрес
Комнат
Площадь
Этаж
Цена за м2
Цена
1516.4 м2
1 из 3
8 150 р. за м2
1960 м2
1 из 3
6 306 р. за м2
1960 м2
1 из 3
6 307 р. за м2

Вы просматривали

Сервис, 1960 м2
Минск, ул. Юрово-Завальная, д. 13
12 361 975 р.
6 307 р. за м2
Елена
Пожалуйста, скажите, что нашли этот объект на Domovita.by
+
Фильтр сохранен