Выберите валюту для сайта:
BYN
Подать БЕСПЛАТНО

Купить помещение под сферу услуг в Минске, ул. Замковая, д. 33

327.3 м2 Центральный район / Победителей Немига
1 047 219 р.
Сервис
Город Минск
Район Центральный район
Микрорайон Победителей
Адрес ул. Замковая, д. 33
Метро Немига
Время до метро пешком 6 мин.
Время до метро на транспорте 3 мин.
Год постройки 1999 г.
Площадь 327.3 м2

Описание

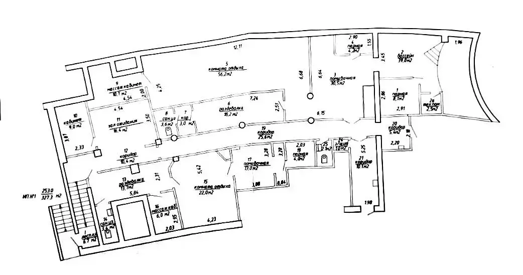
Готовый бизнес: сауна-люкс на Замковой. Продается объект недвижимости общей площадью 327.3 кв.м.

Ключевые характеристики объекта:

   Действующий бизнес с организованным комплексом из двух изолированных саун.

   Большая сауна: 160 кв.м, рассчитана на компанию до 10 человек. Включает финскую парную, хамам, бассейн с подсветкой, комнату отдыха, бильярд, комнату релаксации, 3 душа.

   Малая сауна: 70 кв.м, для компании до 6 человек. Оснащена финской парной, массажной комнатой, комнатой отдыха, 3 душами, обливным ведром и небольшим бассейном.

   Полная инфраструктура для отдыха: парковка, система развлечений (караоке, бильярд), возможность доставки еды.

   Адрес: ул. Замковая, 33, с удобной транспортной доступностью.

     Готовая клиентская база и отлаженные бизнес-процессы.

 

Уникальное предложение для инвестиций или продолжения успешного функционирования.

Лицензия: 02240/446 МЮ РБ, 11.07.2022

Код объекта: 4239 Договор с собственником: 897/1 от 2025-11-24 Опубликовано: 25.11.2025 Обновлено: 27.11.2025
1 / 1 / 1
Динамика цен за кв. метрДинамика цен
Похожие объекты
Адрес
Комнат
Площадь
Этаж
Цена за м2
Цена
117 м2
1 из 10
4 218 р. за м2
130 м2
1 из 7
13 089 р. за м2
70.6 м2
1 из 9
10 556 р. за м2
422 м2
1 из 19
3 054 р. за м2
470 м2
3 из 3
2 166 р. за м2

Вы просматривали

669 001 р. 7 272 р. за м2
Центральный р-н
145 435 р. 2 521 р. за м2
Советский р-н
1 104 579 р. 5 090 р. за м2
Советский р-н
1 104 433 р. 5 090 р. за м2
Советский р-н
612 863 р. 7 126 р. за м2
Московский р-н
11 634 800 р. 2 231 р. за м2
Партизанский р-н
1 047 219 р. 3 200 р. за м2
Центральный р-н
Сервис, 327.3 м2
Минск, ул. Замковая, д. 33
1 047 219 р.
3 200 р. за м2
Фаттория
Пожалуйста, скажите, что нашли этот объект на Domovita.by
+
Фильтр сохранен