Выберите валюту для сайта:
BYN
Подать БЕСПЛАТНО

Купить помещение под сферу услуг в Минске, ул. Зыбицкая, д. 9

248 м2 2 этаж из 4 Центральный район / Ленина Немига
1 824 270 р.
1 714 098 р.
Сервис
Город Минск
Район Центральный район
Микрорайон Ленина
Адрес ул. Зыбицкая, д. 9
Метро Немига
Время до метро пешком 5 мин.
Время до метро на транспорте 3 мин.
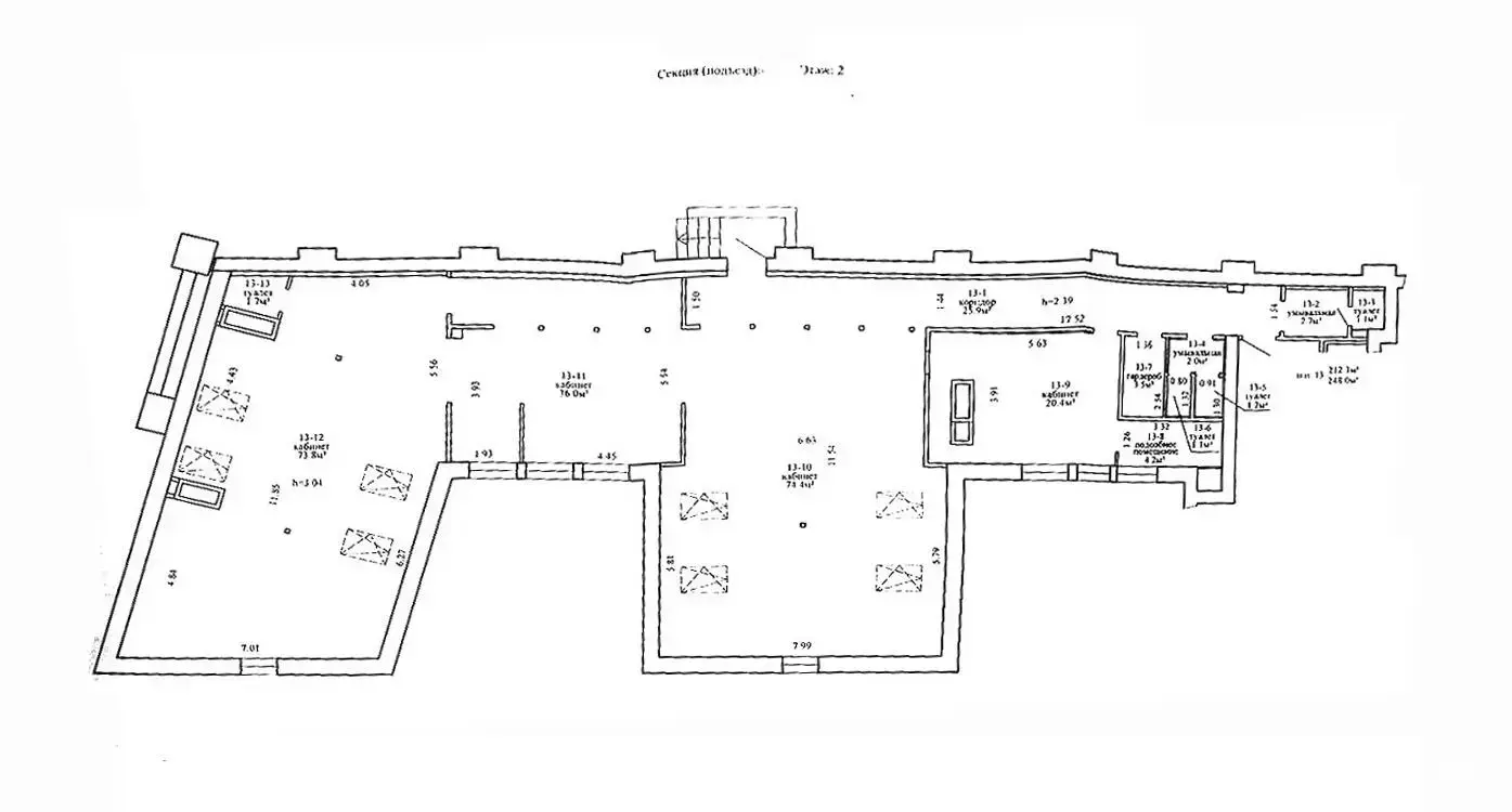
Площадь 248 м2
Этаж 2

Описание

Выгодное предложение: 2 в 1!

Продажа помещения плюс готовый бизнес!

На ул.Зыбицкой, 9 – топовой локации с высокой проходимостью – продается помещение общей площадью 248 м2.

Идеально подходит для собственного бизнеса в сфере общественного питания.

Помещение полностью готово к работе: оборудовано мощной вытяжкой и электрической системой, а также современной системой рекуперации.

Помещение имеет 3 барные зоны и зону караоке.

Также в помещении находится полностью оборудованная кухня, посуда.

В помещении выполнен авторский дизайн, оборудовано мебелью, профессиональной аппаратурой и техникой.

Есть узаконенная летка и собственный дворик с посадочными местами на 20 человек.

Почему стоит выбрать именно это место:

  • Готовый бизнес с минимальными вложениями.
  • Отличная локация и высокая проходимость.
  • Устоявшаяся клиентская база.
  • Большой потенциал для развития.

Помещение имеет отдельный вход и доступ 24/7.

Лицензия: №02240/362 МЮ РБ, 31.07.2018

Код объекта: 4078 Договор с собственником: 1338/1 от 2025-09-12 Опубликовано: 16.09.2025 Обновлено: 08.01.2026
0 / 0 / 1
Динамика цен за кв. метрДинамика цен
Похожие объекты
Адрес
Комнат
Площадь
Этаж
Цена за м2
Цена
205 м2
1 из 1
13 959 р. за м2
102.7 м2
2 из 4
6 968 р. за м2
829.1 м2
1 из
6 903 р. за м2

Вы просматривали

1 714 098 р. 6 912 р. за м2
Центральный р-н
Сервис, 248 м2
Минск, ул. Зыбицкая, д. 9
1 714 098 р.
6 912 р. за м2
Марина
Пожалуйста, скажите, что нашли этот объект на Domovita.by
+
Фильтр сохранен