Выберите валюту для сайта:
BYN
Подать БЕСПЛАТНО

Снять торговое помещение на пер. Загородный 1-й, д. 3А в Минске, 1100BYN, код 967233

22 м2 1 этаж из 1 Фрунзенский район / Харьковская Молодежная
1 100 р./мес.
Торговый объект
Город Минск
Микрорайон Харьковская
Адрес пер. Загородный 1-й, д. 3А
Метро Молодежная
Время до метро пешком 3 мин.
Время до метро на транспорте 2 мин.
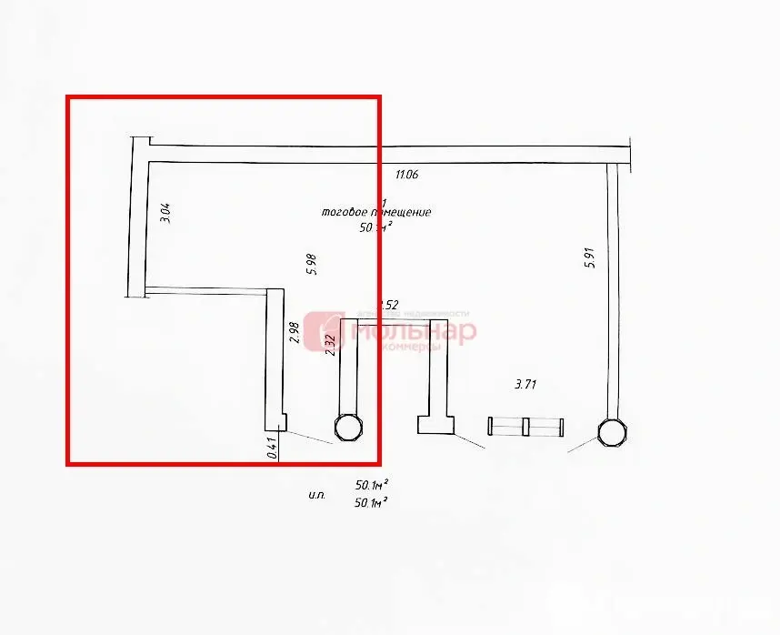
Площадь 22 м2
Этаж 1
Удобства
Отдельный вход

Описание

Аренда торгового помещения, площадью 22 м2, в переходе станции метро "Молодежная".

Помещение с хорошим трафиком, с ремонтом.

Подведены основные коммуникации: электричество, отопление, воды- нет.

Арендная ставка 50 руб./м2.

Помещение расположено на выходе из метро прямо к бассейну международного стандарта.

Вы не оплачиваете услуги риэлтерской организации.

Код объекта: 967233 Договор с собственником: 28/1А Опубликовано: 11.06.2025 Обновлено: 11.06.2025
0 / 0 / 28
Динамика цен за кв. метрДинамика цен
Похожие объекты
Адрес
Комнат
Площадь
Этаж
Цена за м2
Цена
114 м2
1 из 1
27 р. за м2
93.8 м2
1 из 1
25 р. за м2
50.5 м2
2 из 2
27 р. за м2
72 м2
2 из 2
34 р. за м2
120.2 м2
2 из 2
34 р. за м2

Вы просматривали

1 100 р./мес. 50 р. за м2
Фрунзенский р-н
Торговый объект, 22 м2
Минск, пер. Загородный 1-й, д. 3А
1 100 р./мес.
50 р. за м2
Александра
Пожалуйста, скажите, что нашли этот объект на Domovita.by
+
Фильтр сохранен