Выберите валюту для сайта:
BYN
Подать БЕСПЛАТНО

Снять торговую точку на пр-т Дзержинского, д. 22 в Минске, 2853USD, код 967898

129.7 м2 1 этаж из 1 Московский район / Люксембург Грушевка
8 261 р./мес.
Торговый объект
Город Минск
Микрорайон Люксембург
Адрес пр-т Дзержинского, д. 22
Метро Грушевка
Время до метро пешком 6 мин.
Время до метро на транспорте 3 мин.
Площадь 129.7 м2
Этаж 1
Удобства
Отдельный вход

Описание

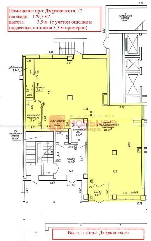
Аренда административно-торгового помещения по адресу пр. Дзержинского, дом 22, площадью 129.7 м².
Помещение многофункциональное, подойдет для: торговли, услуг, офиса.  Арендная ставка 22 дол/м2. Первый этаж, 2 отдельных входа. Ремонт, приборы учёта, телефон, оптоволокно, пожарная сигнализация, кондиционер, принудительная вентиляция, роллеты, свой санузел.
Помещение имеет хорошее расположение и пешеходный трафик, рядом станция метро Грушевка и остановки общественного транспорта.
Арендатор не оплачивает риэлтерские услуги.

Код объекта: 967898 Договор с собственником: 177/1А Опубликовано: 11.11.2025 Обновлено: 11.11.2025
0 / 0 / 2
Динамика цен за кв. метрДинамика цен
Похожие объекты
Адрес
Комнат
Площадь
Этаж
Цена за м2
Цена
91.3 м2
1 из 1
57 р. за м2

Вы просматривали

6 553 р./мес. 68 р. за м2
Советский р-н
8 261 р./мес. 64 р. за м2
Московский р-н
3 550 р./мес. 35 р. за м2
Партизанский р-н
Торговый объект, 129.7 м2
Минск, пр-т Дзержинского, д. 22
8 261 р./мес.
64 р. за м2
Александра
Пожалуйста, скажите, что нашли этот объект на Domovita.by
+
Фильтр сохранен