Выберите валюту для сайта:
BYN
Подать БЕСПЛАТНО

Аренда торгового помещения на пр-т Независимости, д. 168/2 в Минске, 1793EUR, код 967794

85.4 м2 1 этаж из 1 Первомайский район / Уручье Уручье
6 063 р./мес.
Торговый объект
Город Минск
Район Первомайский район
Микрорайон Уручье
Адрес пр-т Независимости, д. 168/2
Метро Уручье
Время до метро пешком 3 мин.
Время до метро на транспорте 2 мин.
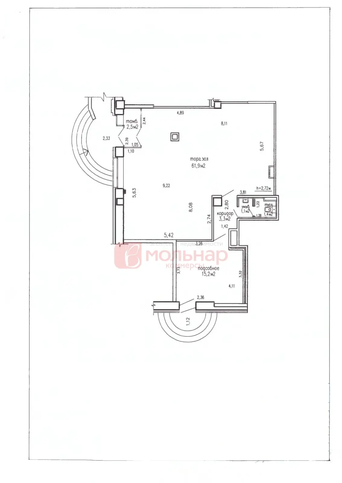
Площадь 85.4 м2
Этаж 1
Удобства
Отдельный вход

Описание

Сдается одно из самых проходных мест Минска, помещение площадью 85.4 м2. Выход из метро «Уручье», Независимости 168/2.

Огромный пешеходный трафик, приточно-вытяжная система вентиляции. Два отдельных входа, погрузка-разгрузка, 35 кВт входной нагрузки.

Ставка- 21 евро, НДС 0.

Код объекта: 967794 Договор с собственником: 102/1А Опубликовано: 20.10.2025 Обновлено: 20.10.2025
0 / 0 / 9
Динамика цен за кв. метрДинамика цен
Похожие объекты
Адрес
Комнат
Площадь
Этаж
Цена за м2
Цена
85.4 м2
1 из 12
68 р. за м2
85.4 м2
1 из 11
67 р. за м2
85.4 м2
12 из 12
67 р. за м2

Вы просматривали

Торговый объект, 85.4 м2
Минск, пр-т Независимости, д. 168/2
6 063 р./мес.
71 р. за м2
Александра
Пожалуйста, скажите, что нашли этот объект на Domovita.by
+
Фильтр сохранен