Выберите валюту для сайта:
BYN
Подать БЕСПЛАТНО

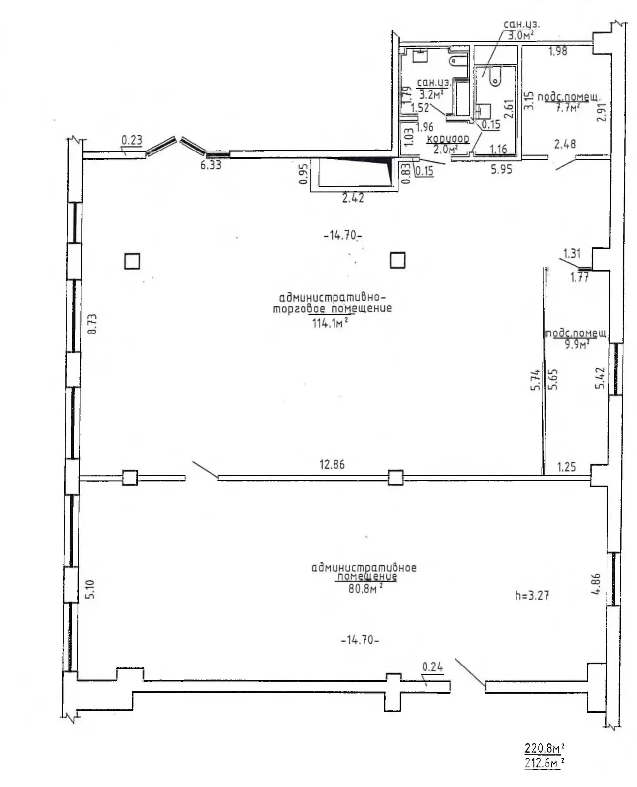
Снять торговое помещение на пр-т Партизанский, д. 149 в Минске, 1435EUR, код 966994

220.8 м2 3 этаж из 3 Заводской район / Ангарская Могилевская
4 838 р./мес.
Торговый объект
Город Минск
Район Заводской район
Микрорайон Ангарская
Адрес пр-т Партизанский, д. 149
Метро Могилевская
Время до метро пешком 3 мин.
Время до метро на транспорте 2 мин.
Год постройки 2013 г.
Площадь 220.8 м2
Этаж 3

Описание

Сдается в аренду изолированное торговое помещение в оживленном многофункциональном комплексе вблизи Партизанского проспекта. Отдельный вход, доступ к зданию 24/7, большая парковка.
Помещение подходит как для офиса, так и для организации пункта торговли.
В соседнем корпусе расположены БЦ S.Union, кофейня и кафе самообслуживания.
В непосредственной близости находится большое количество торговых и офисных помещений.

Код объекта: 966994 Договор с собственником: 142/2а от 2024-05-07 Опубликовано: 30.04.2025 Обновлено: 06.02.2026
0 / 0 / 26
Динамика цен за кв. метрДинамика цен
Похожие объекты
Адрес
Комнат
Площадь
Этаж
Цена за м2
Цена
177.5 м2
1 из 5
34 р. за м2
104 м2
1 из 7
84 р. за м2
241.5 м2
1 из
61 р. за м2
110.1 м2
1 из 9
61 р. за м2
102.1 м2
1 из 6
34 р. за м2

Вы просматривали

Торговый объект, 220.8 м2
Минск, пр-т Партизанский, д. 149
4 838 р./мес.
20 р. за м2
Наталья
Пожалуйста, скажите, что нашли этот объект на Domovita.by
+
Фильтр сохранен