Выберите валюту для сайта:
BYN
Подать БЕСПЛАТНО

Снять торговое помещение на пр-т Победителей, д. 129 в Минске, 11502BYN, код 967909

243.9 м2 2 этаж из 2 Центральный район / Лебяжий
11 502 р./мес.
Торговый объект
Город Минск
Район Центральный район
Микрорайон Лебяжий
Адрес пр-т Победителей, д. 129
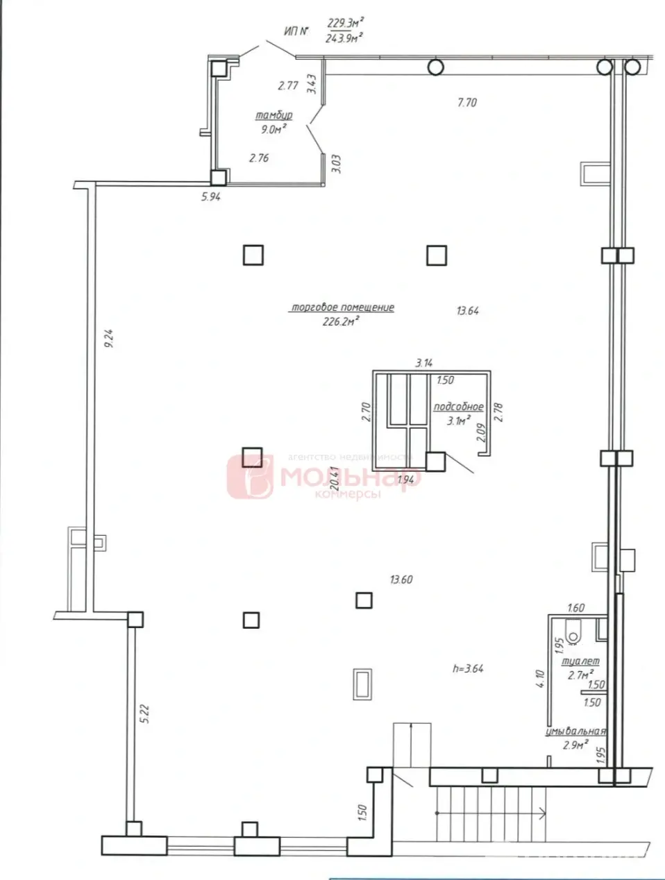
Площадь 243.9 м2
Этаж 2
Удобства
Отдельный вход

Описание

Арендатор не оплачивает услуги риэлтерской организации.

Аренда торгового помещения (офис, шоурум, услуги) общей площадью 243,9м2 по проспекту Победителей, дом 129. Второй этаж (стилобат) жилого дома, отдельный вход. Высокие потолки. С отделкой, санузел, вентиляция, интернет. Плотная жилая застройка. Парковка. Транспортная доступность. В шаговой доступности остановки общественного транспорта. Арендная ставка 47,16 руб.\м2, с НДС. 

Код объекта: 967909 Договор с собственником: 12/1А от 15.03.2023 Опубликовано: 13.11.2025 Обновлено: 13.11.2025
0 / 1 / 5
Динамика цен за кв. метрДинамика цен
Похожие объекты
Адрес
Комнат
Площадь
Этаж
Цена за м2
Цена
320 м2
1 из 1
22 р. за м2

Вы просматривали

11 502 р./мес. 47 р. за м2
Центральный р-н
Торговый объект, 243.9 м2
Минск, пр-т Победителей, д. 129
11 502 р./мес.
47 р. за м2
Александра
Пожалуйста, скажите, что нашли этот объект на Domovita.by
+
Фильтр сохранен