Выберите валюту для сайта:
BYN
Подать БЕСПЛАТНО

Аренда торговой точки на ул. Чюрлениса, д. 26 в Минске, 1605BYN, код 967198

58.8 м2 1 этаж из 1 Московский район / Брилевичи Малиновка
1 605 р./мес.
Торговый объект
Город Минск
Микрорайон Брилевичи
Адрес ул. Чюрлениса, д. 26
Метро Малиновка
Время до метро пешком 10 мин.
Время до метро на транспорте 6 мин.
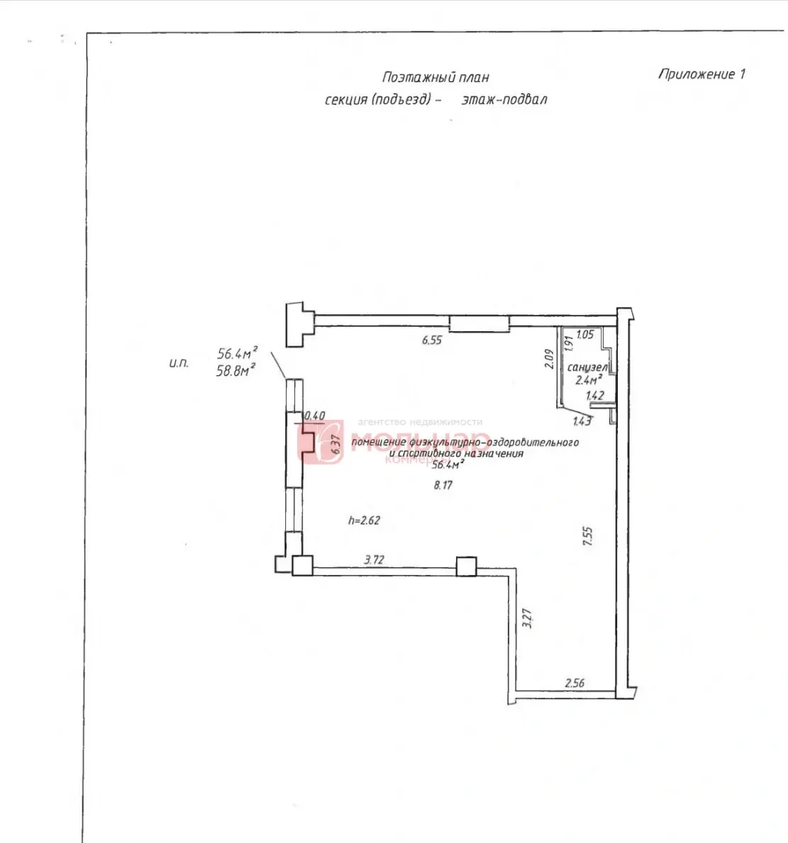
Площадь 58.8 м2
Этаж 1
Удобства
Отдельный вход

Описание

Арендатор не оплачивает услуги риэлтерской организации.

Аренда торгового помещения (офис, шоурум, услуги) общей площадью 58,8м2 по улице Чюрлениса, дом 26. Цокольный этаж жилого дома, отдельный вход. С отделкой, санузел, вентиляция, интернет. Плотная жилая застройка. Парковка. Транспортная доступность. В шаговой доступности ст.м. Малиновка и остановки общественного транспорта. Арендная ставка 27,3 руб.\м2, без НДС. 

Код объекта: 967198 Договор с собственником: 12/1А от 15.03.2023 Опубликовано: 03.06.2025 Обновлено: 03.06.2025
0 / 0 / 31
Динамика цен за кв. метрДинамика цен
Похожие объекты
Адрес
Комнат
Площадь
Этаж
Цена за м2
Цена
68.5 м2
1 из 19
41 р. за м2
68.5 м2
1 из 19
41 р. за м2
68.5 м2
1 из 19
41 р. за м2
68.5 м2
1 из 1
41 р. за м2

Вы просматривали

Торговый объект, 58.8 м2
Минск, ул. Чюрлениса, д. 26
1 605 р./мес.
27 р. за м2
Александра
Пожалуйста, скажите, что нашли этот объект на Domovita.by
+
Фильтр сохранен