Выберите валюту для сайта:
BYN
Подать БЕСПЛАТНО

Аренда торговой точки на ул. Городецкая, д. 22 в Минске, 610EUR, код 967639

43.6 м2 1 этаж из 1 Первомайский район / Уручье Уручье
2 063 р./мес.
Торговый объект
Город Минск
Район Первомайский район
Микрорайон Уручье
Адрес ул. Городецкая, д. 22
Метро Уручье
Время до метро пешком 7 мин.
Время до метро на транспорте 4 мин.
Площадь 43.6 м2
Этаж 1
Удобства
Отдельный вход

Описание

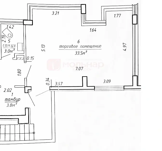
Сдается в аренду торговое помещение по ул. Городецкая 22.

Площадь помещения 43.6 м2.

Цокольный этаж, есть санузел, подсобное помещение.

Вход в помещение "смотрит" прямо на перекресток Ложинской и Городецкой.

Арендная ставка 14 евро за м2 с НДС.

Станция метро "Уручье" в пешей доступности.

Вы не оплачиваете услуги риэлтерской организации.

Код объекта: 967639 Договор с собственником: 152/1А Опубликовано: 19.09.2025 Обновлено: 19.09.2025
0 / 0 / 7
Динамика цен за кв. метрДинамика цен
Похожие объекты
Адрес
Комнат
Площадь
Этаж
Цена за м2
Цена
27.3 м2
2 из 3
40 р. за м2
32 м2
2 из 3
40 р. за м2
59.3 м2
2 из 3
34 р. за м2
400 м2
2 из 3
35 р. за м2
300 м2
1 из 2
30 р. за м2

Вы просматривали

26 262 р./мес. 42 р. за м2
Московский р-н
2 063 р./мес. 47 р. за м2
Первомайский р-н
4 205 р./мес. 84 р. за м2
Ленинский р-н
Торговый объект, 43.6 м2
Минск, ул. Городецкая, д. 22
2 063 р./мес.
47 р. за м2
Александра
Пожалуйста, скажите, что нашли этот объект на Domovita.by
+
Фильтр сохранен