Выберите валюту для сайта:
BYN
Подать БЕСПЛАТНО

Снять торговое помещение на ул. Игоря Лученка, д. 29 в Минске, 1381USD, код 967783

72.8 м2 1 этаж из 25 Октябрьский район / Маяковского Аэродромная
4 017 р./мес.
Торговый объект
Город Минск
Район Октябрьский район
Микрорайон Маяковского
Адрес ул. Игоря Лученка, д. 29
Метро Аэродромная
Время до метро пешком 10 мин.
Время до метро на транспорте 6 мин.
Год постройки 2023 г.
Площадь 72.8 м2
Помещений 4
Этаж 1

Описание

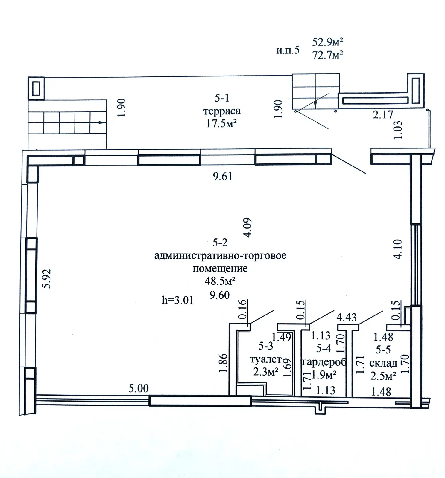
Сдаётся в аренду торговое помещение на ул. И. Лученка 29 (дом «Гавана»), общей площадью 72,7 кв.м. Дом расположен в быстроразвивающимся и плотно населенном районе «Minsk World». Торговое помещение расположено на первом этаже 25-этажного жилого дома, с отельным входом, что обеспечивает ежедневный доступ 24/7. Помещение удобно расположено, угловое: окна выходят на улицу Ж. Алфёрова и на улицу И. Лученка 27. Высокие потолки, панорамные окна. Чистовая отделка. В помещении обустроена: 1) приточно-вытяжная вентиляция; 2) установлена пожарная сигнализация; 3) установлен кондиционер. Есть летняя веранда для обустройства столиков при использовании помещения под кафе. В шаговой доступности остановки общественного транспорта, большой пешеходный и автомобильный трафик, в 2024 году открылась станция метро «Аэродромная». В помещение заведено электричество (мощность 10 КВТ), отопление, водоснабжение, оборудован санузел,. Есть возможность адаптировать помещение под свой бизнес. Предлагаемая площадь подойдет под различные сферы услуг: магазины, аптеки, кофейни, услуги и другие виды бизнеса. Арендатор не оплачивает услуги агентства.
Код объекта: 967783 Договор с собственником: #19/2А от 17.04.2025 Опубликовано: 16.10.2025 Обновлено: 07.11.2025
0 / 0 / 4
Динамика цен за кв. метрДинамика цен
Похожие объекты
Адрес
Комнат
Площадь
Этаж
Цена за м2
Цена
66.1 м2
1 из 1
68 р. за м2
74.6 м2
1 из 1
44 р. за м2
53.1 м2
1 из 1
41 р. за м2
84.3 м2
1 из 1
41 р. за м2
84.1 м2
1 из 1
41 р. за м2

Вы просматривали

4 499 р./мес. 47 р. за м2
Московский р-н
7 740 р./мес. 34 р. за м2
Первомайский р-н
4 017 р./мес. 55 р. за м2
Октябрьский р-н
22 804 р./мес. 41 р. за м2
Заводской р-н
Торговый объект, 72.8 м2
Минск, ул. Игоря Лученка, д. 29
4 017 р./мес.
55 р. за м2
Геннадий
Пожалуйста, скажите, что нашли этот объект на Domovita.by
+
Фильтр сохранен