Аренда торгового помещения на ул. Леонида Щемелёва, д. 18 в Минске, 1104USD, код 968175

73.6 м2 1 этаж из 25 Октябрьский район / Маяковского Аэродромная
3 037 р./мес.
≈ 1 104 $
15 $/м2
Торговый объект
Город Минск
Район Октябрьский район
Микрорайон Маяковского
Адрес ул. Леонида Щемелёва, д. 18
Метро Аэродромная
Время до метро пешком 13 мин.
Время до метро на транспорте 7 мин.
Год постройки 2024 г.
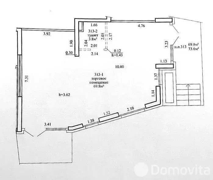
Площадь 73.6 м2
Этаж 1

Описание

Аренда коммерческого помещения: локация, которая работает на ваш бизнес 24/7 на ул. Леонида Щемелёва, 18.   

 

Ищете помещение, где всё продумано до мелочей? Представляем вам идеальный вариант для старта или расширения бизнеса — светлое, современное пространство в престижном районе Минск-Мира рядом с метро «Аэродромная».

 

Ключевые преимущества:

- Готовый к работе интерьер: выполнен качественный ремонт, помещение без мебели — Вы сможете обустроить пространство под свои нужды.

  - Простор и комфорт: высота потолков — 3,62 м, площадь помещения — 73,6 м2, первый этаж.

  - Собственная терраса — уникальное преимущество, открывающее дополнительные возможности для вашего бизнеса.

- Полная инженерная оснащённость: электричество 220В (трёхфазный ввод)  и 11,2 кВт; центральное отопление; вентиляция; раздельный санузел с горячей и холодной водой; вывод под кондиционер; проведён кабель для интернета и телефона.

- Безопасность и контроль: установлена пожарная сигнализация, отдельный счётчик (даёт возможность контролировать температуру в помещении).

- Свободный доступ к помещению: 24/7.

  - Удобство для клиентов и сотрудников: собственный санузел с горячей и холодной водой),  2 отдельных входа (первый вход с центральной стороны, второй сбоку дома, также предусмотрена терраса); несколько парковок рядом со зданием.

 

Локация с высоким потенциалом: развитая городская инфраструктура; рядом — остановки общественного транспорта (лёгкая доступность для клиентов и персонала), также  в шаговой доступности метро «Аэродромная»)

 

Для кого подойдёт: офис, торговый пункт, салон красоты, общепит, кофейня, кондитерская, учебный или консультационный центр, любое другое коммерческое использование.

 

Не упустите шанс разместить свой бизнес в удобном и функциональном пространстве!

 

Арендатор не оплачивает услуги агентства.

Звоните прямо сейчас — отвечу на все вопросы и организуем показ в удобное для Вас время!

Больше объявлений тут: www.instagram.com/garant.arenda

Напишите нам в удобный для Вас мессенджер:

Viber | Telegram | WhatsApp

Ответим на Ваши вопросы, предоставим всю необходимую дополнительную информацию.

ООО «Артель Недвижимость»

УНП 193820882

Лицензия Министерства Юстиции №48250000081913 06.03.2025 г.

Договор №76/2а от 29.01.2026

Код объекта: 968175 Договор с собственником: 76/2а от 2026-01-29 Опубликовано: 30.04.2026 Обновлено: 25.05.2026
0 / 4 / 4
Похожие объекты
Адрес
Комнат
Площадь
Этаж
Цена за м2
Цена
4-комнатная
66.7 м2
1 из 19
49 р. за м2
1-комнатная
29.5 м2
1 из 25
50 р. за м2
44 м2
1 из
41 р. за м2
52.1 м2
1 из
48 р. за м2
41.6 м2
1 из
41 р. за м2

Вы просматривали

1 944 р./мес. 20 р. за м2
Фрунзенский р-н
Торговый объект, 73.6 м2
Минск, ул. Леонида Щемелёва, д. 18
3 037 р./мес.
41 р. за м2
Гарант Недвижимость
Пожалуйста, скажите, что нашли этот объект на Domovita.by
+
Фильтр сохранен