Выберите валюту для сайта:
BYN
Подать БЕСПЛАТНО

Аренда торговой точки на ул. Максима Богдановича, д. 124 в Минске, 3315USD, код 966062

255 м2 1 этаж из 22 Советский район / Беды Академия наук
10 226 р./мес.
9 495 р./мес.
Торговый объект
Город Минск
Район Советский район
Микрорайон Беды
Адрес ул. Максима Богдановича, д. 124
Метро Академия наук
Время до метро пешком 25 мин.
Время до метро на транспорте 14 мин.
Год постройки 2006 г.
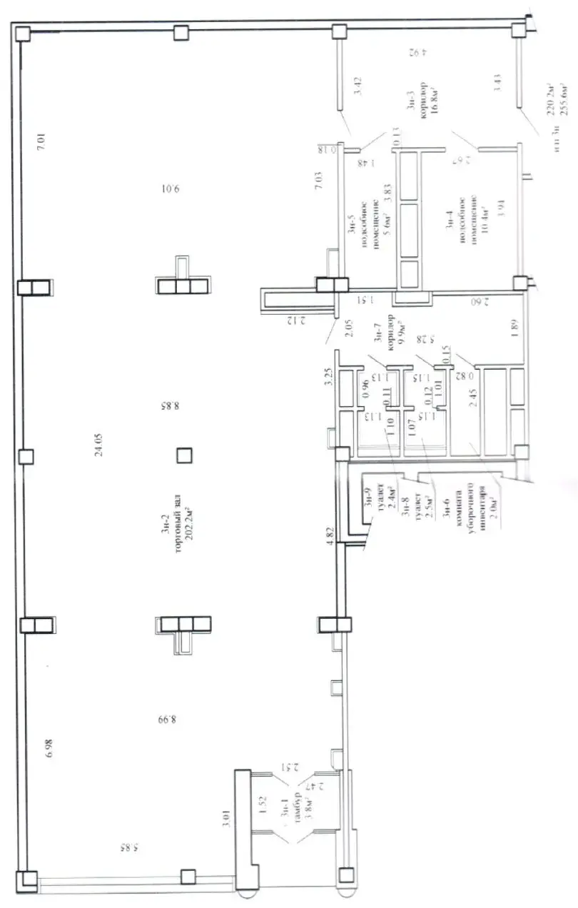
Площадь 255 м2
Этаж 1

Описание

Предлогаю в аренду ликвидное помещение в проходном месте. Подходит под магазин так и под ресторан. Большой трафик жильцов многоэтажных домов, дорожная развязка, в будущем открытие метро.

 Самое важное, что есть 50 кВт, отапливаемое, есть второй выход для разгрузки и погрузки, разведены кондиционеры, приточновытяжная система, пожарная и охрана.

Множество мест для парковки, богатое соседство!

Код объекта: 966062 Договор с собственником: 48/2А от 2024-10-25 Опубликовано: 05.12.2024 Обновлено: 31.01.2026
0 / 0 / 18
Динамика цен за кв. метрДинамика цен
Похожие объекты
Адрес
Комнат
Площадь
Этаж
Цена за м2
Цена
3000 м2
2 из 2
20 р. за м2
53.2 м2
1 из 2
99 р. за м2
323 м2
1 из 12
32 р. за м2
119.45 м2
2 из 2
41 р. за м2
201.55 м2
2 из 2
27 р. за м2

Вы просматривали

Торговый объект, 255 м2
Минск, ул. Максима Богдановича, д. 124
9 495 р./мес.
37 р. за м2
Пожалуйста, скажите, что нашли этот объект на Domovita.by
+
Фильтр сохранен