Выберите валюту для сайта:
BYN
Подать БЕСПЛАТНО

Снять торговое помещение на ул. Немига, д. 12/А в Минске, 10410USD, код 967475

547.9 м2 3 этаж из 3 Центральный район / Победителей Немига
36 489 р./мес.
30 144 р./мес.
Торговый объект
Город Минск
Район Центральный район
Микрорайон Победителей
Адрес ул. Немига, д. 12/А
Метро Немига
Время до метро пешком 6 мин.
Время до метро на транспорте 4 мин.
Год постройки 1999 г.
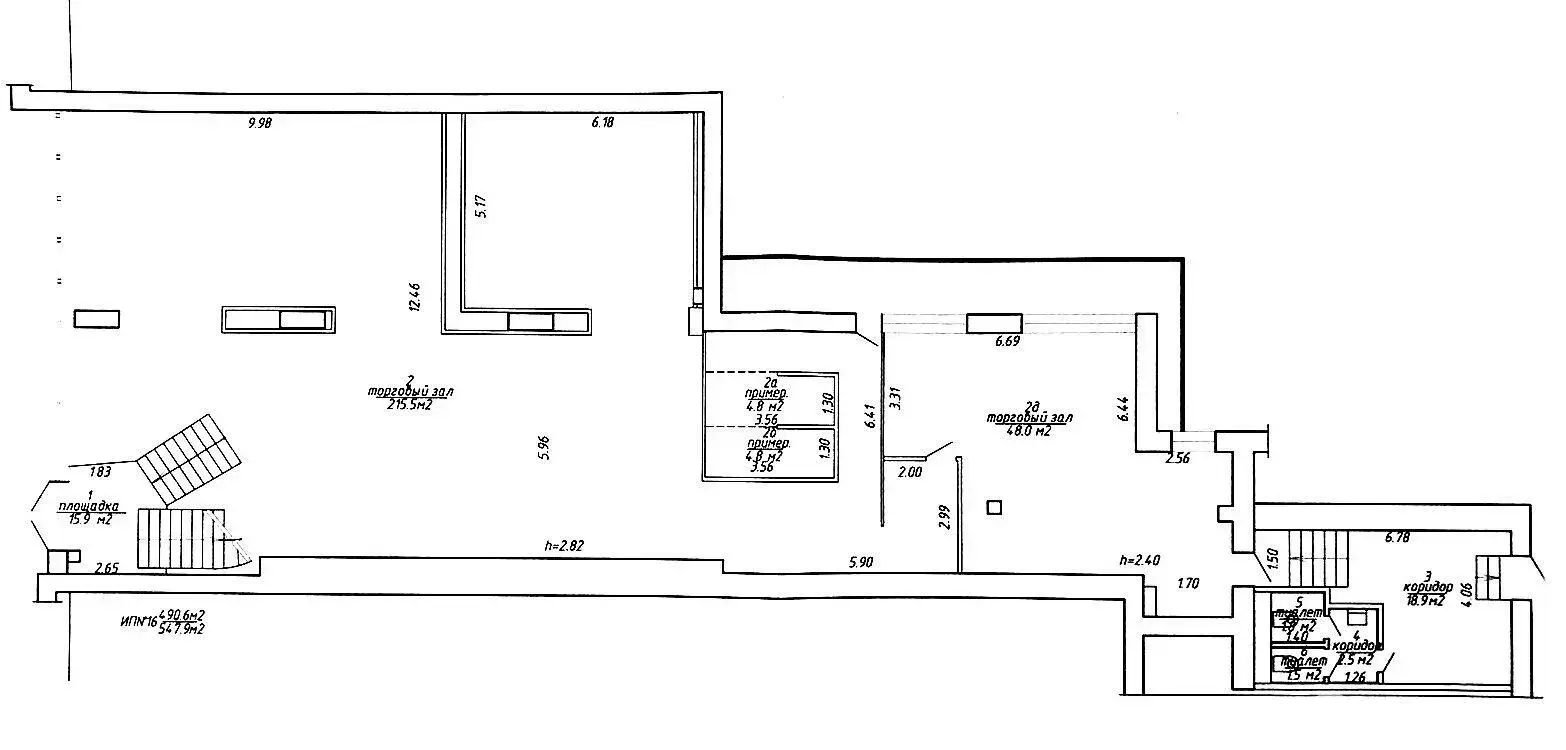
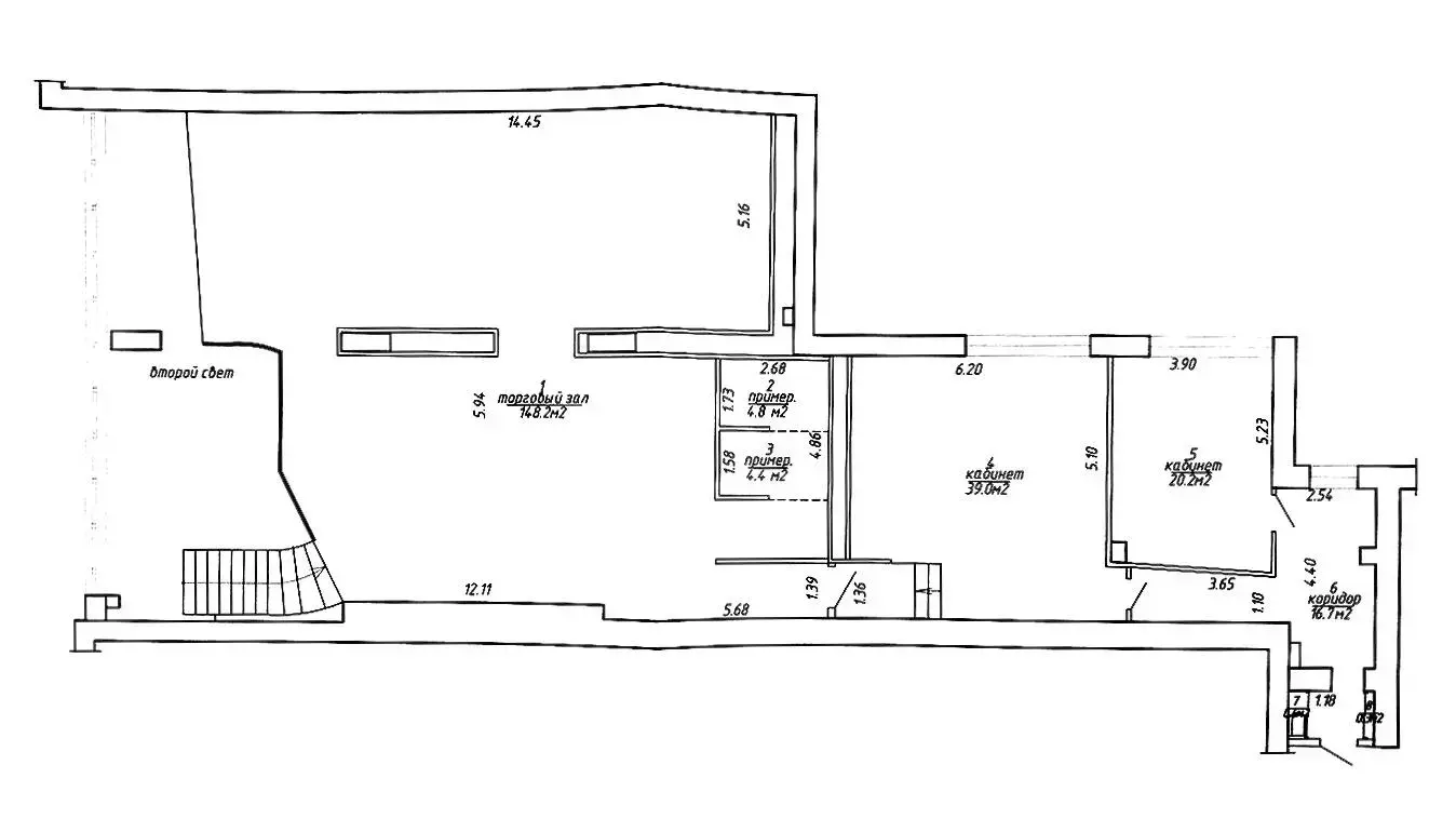
Площадь 547.9 м2
Этаж 3

Описание

Престижное коммерческое помещение в центре Минска

Идеальное место для вашего бизнеса!

Расположено в самом сердце Минска, в историческом центре города, в шаговой доступности от станции метро Немига. Это престижное помещение предлагает уникальные возможности для вашего бизнеса благодаря отличному местоположению и высокой проходимости.

Основные характеристики:

Местоположение:

  • Исторический центр Минска
  • В шаговой доступности от станции метро Немига
  • Близость к основным транспортным узлам и достопримечательностям города
  • Высокий уровень пешеходного потока

Инфраструктура:

  • Интернет: Белтелеком
  • Электричество: существующие мощности 20 Квт, возможность увеличения до 50 Квт и выше
  • Санузел
  • Дизайнерский ремонт

Планировка:

  • Общая площадь: 547.9 кв.м
  • Два уровня с примерно одинаковой площадью
  • Два полноценных торговых зала
  • Дополнительные помещения для офиса и хранения
  • Отличная видимость с улицы

Преимущества:

  • Престижное расположение в историческом центре города
  • Высокий уровень проходимости
  • Готовое к использованию помещение с дизайнерским ремонтом
  • Возможность увеличения мощностей по электричеству
  • Идеально подходит для различных видов бизнеса

Возможное использование:

  • Медицинские центры и клиники
  • Торговые точки и магазины
  • Офисы различных компаний
  • Шоу румы и выставочные залы
  • Рестораны и кафе
  • Фитнес-клубы и спортивные центры
  • Образовательные центры и школы

Условия аренды:

  • Гибкие условия аренды
  • Возможность оформления долгосрочного договора

Лицензия: 02240/446 МЮ РБ, 11.07.2022

Код объекта: 967475 Договор с собственником: 27/1А от 2025-08-12 Опубликовано: 12.08.2025 Обновлено: 23.11.2025
0 / 0 / 4
Динамика цен за кв. метрДинамика цен
Похожие объекты
Адрес
Комнат
Площадь
Этаж
Цена за м2
Цена
190.5 м2
1 из 3
74 р. за м2
558.9 м2
2 из 3
41 р. за м2
547.9 м2
2 из 3
55 р. за м2
75.43 м2
2 из 3
44 р. за м2
39 м2
2 из 3
44 р. за м2

Вы просматривали

2 783 р./мес. 44 р. за м2
Центральный р-н
5 609 р./мес. 43 р. за м2
Фрунзенский р-н
5 814 р./мес. 45 р. за м2
Фрунзенский р-н
30 144 р./мес. 55 р. за м2
Центральный р-н
Торговый объект, 547.9 м2
Минск, ул. Немига, д. 12/А
30 144 р./мес.
55 р. за м2
Фаттория
Пожалуйста, скажите, что нашли этот объект на Domovita.by
+
Фильтр сохранен