Выберите валюту для сайта:
BYN
Подать БЕСПЛАТНО

Аренда торгового помещения на ул. Рудобельская, д. 3 в Минске, 1710EUR, код 967010

142.5 м2 1 этаж из 1 Заводской район / Крупской Автозаводская
5 793 р./мес.
Торговый объект
Город Минск
Район Заводской район
Микрорайон Крупской
Адрес ул. Рудобельская, д. 3
Метро Автозаводская
Время до метро пешком 18 мин.
Время до метро на транспорте 10 мин.
Год постройки 2022 г.
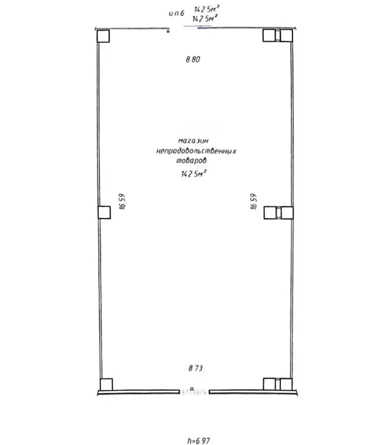
Площадь 142.5 м2
Этаж 1

Описание

Сдается в аренду торговое помещение площадью 142,5 м2 в новом ТЦ «GreenTime».

 

ТЦ расположен в 7 минутах ходьбы от Партизанского проспекта и станции метро «Автозаводская».

 

В помещении сделан ремонт, есть приточно-вытяжная вентиляция. Большие витрины. Установлен счетчик на электроэнергию. Проведен скоростной интернет.

 

Коммерческое помещение отлично подойдёт под бутик, шоурум, сферу услуг, и другие сферы бизнеса.

 

 

  • Имеется две парковки: возле ТЦ и на втором уровне.
  • Густонаселенный район, активный автомобильный трафик, рядом остановка общественного транспорта.
  • Удобный выезд на МКАД.

 

Арендатор не оплачивает услуги агентства!

Код объекта: 967010 Договор с собственником: 329/2а от 2024-09-26 Опубликовано: 30.04.2025 Обновлено: 04.12.2025
0 / 0 / 9
Динамика цен за кв. метрДинамика цен
Похожие объекты
Адрес
Комнат
Площадь
Этаж
Цена за м2
Цена
560 м2
1 из
41 р. за м2
15 м2
136 р. за м2
126.9 м2
1 из 1
35 р. за м2
115.9 м2
1 из 1
35 р. за м2
54.36 м2
1 из 1
49 р. за м2

Вы просматривали

4 499 р./мес. 47 р. за м2
Московский р-н
11 145 р./мес. 119 р. за м2
Октябрьский р-н
7 740 р./мес. 34 р. за м2
Первомайский р-н
10 655 р./мес. 41 р. за м2
Центральный р-н
4 017 р./мес. 55 р. за м2
Октябрьский р-н
4 885 р./мес. 47 р. за м2
Советский р-н
22 804 р./мес. 41 р. за м2
Заводской р-н
5 793 р./мес. 41 р. за м2
Заводской р-н
23 272 р./мес. 508 р. за м2
Советский р-н
Торговый объект, 142.5 м2
Минск, ул. Рудобельская, д. 3
5 793 р./мес.
41 р. за м2
Кристина Богатова
Пожалуйста, скажите, что нашли этот объект на Domovita.by
+
Фильтр сохранен