Выберите валюту для сайта:
BYN
Подать БЕСПЛАТНО

Аренда торговой точки на ул. Сурганова, д. 29 в Минске, 11720BYN, код 964553

234.4 м2 1 этаж из 4 Первомайский район / Гикало Академия наук
11 627 р./мес.
11 720 р./мес.
Торговый объект
Город Минск
Район Первомайский район
Микрорайон Гикало
Адрес ул. Сурганова, д. 29
Метро Академия наук
Время до метро пешком 6 мин.
Время до метро на транспорте 3 мин.
Год постройки 2004 г.
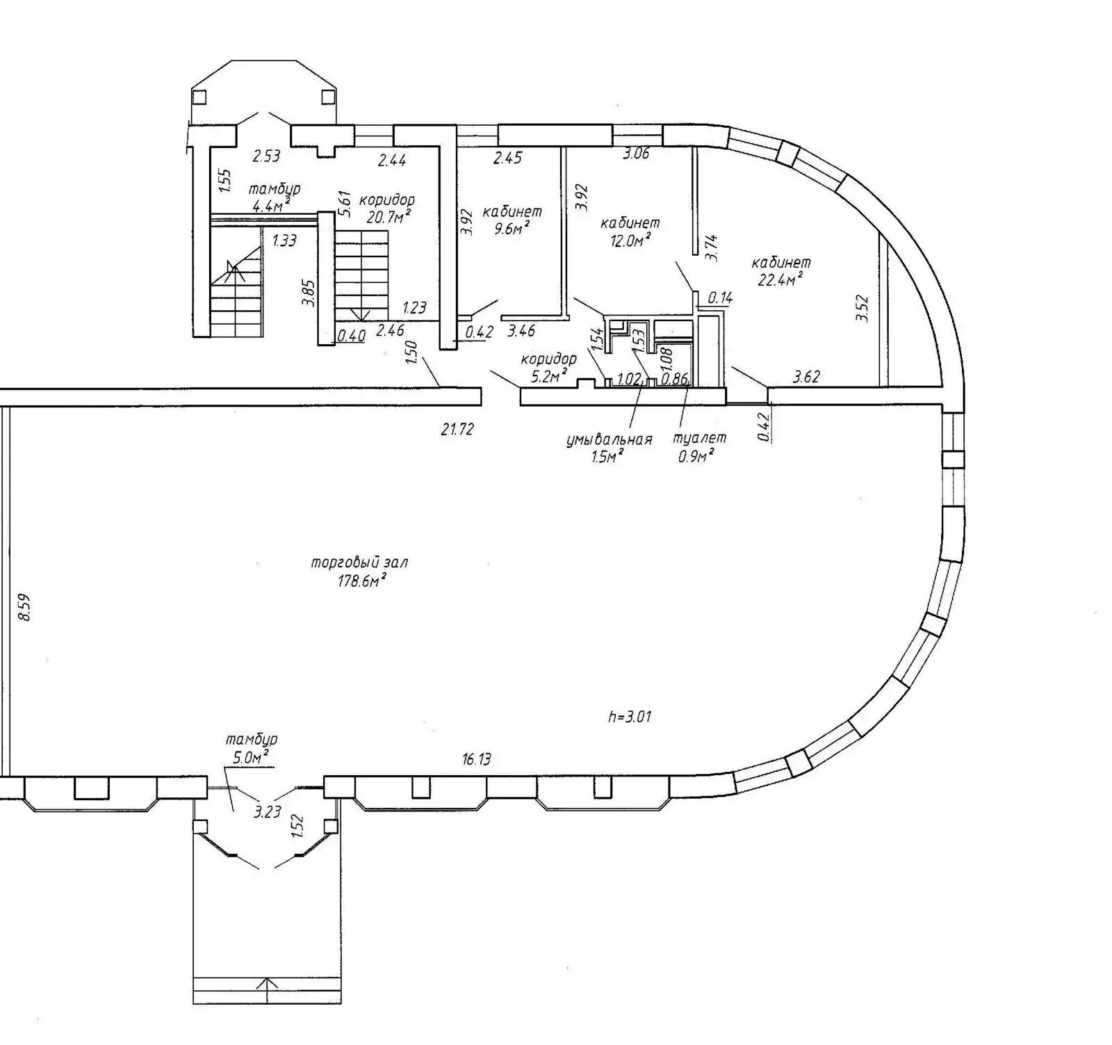
Площадь 234.4 м2
Этаж 1
Удобства
Телефон
Отдельный вход
Кондиционер
Парковка

Описание

Аренда просторного торгового помещения 234,4 м.кв. с отдельным входом в центре города на Сурганова 29.

Вентиляция, пожарно-охранная сигнализация, центральное отопление, оптоволокно, телефон.

Система кондиционирования.

Собственный санузел.

Кабинеты для бухгалтерии, руководителя. 

Хороший ремонт.

Доступ в помещение круглосуточный.

Парковка с обратной стороны здания.

Отлично подойдёт под непродуктовый магазин, услуги, офис, шоу-рум.

Удобный район с развитой инфраструктурой: продуктовые магазины, общепит, торговые центры.

Непосредственная близость к центру города.

Рядом остановки общественного транспорта.

5 минут пешком до ст. метро "Академия наук".

Затраты на коммунальные услуги, включая электроэнергию, 5...7 р./м.кв.

Аренда без НДС (0%).

Звоните!

---

ООО «ЭТАЖИ юнайтед»
УНП: 193673318
Договор № 28/1а от 18.01.2024
Лицензия на оказание риэлтерских услуг №02240/460 МЮ РБ от 03.04.2023

Код объекта: 964553 Договор с собственником: № 28/1а от 2024-01-18 Опубликовано: 21.01.2024 Обновлено: 02.02.2026
0 / 0 / 2
Динамика цен за кв. метрДинамика цен
Похожие объекты
Адрес
Комнат
Площадь
Этаж
Цена за м2
Цена
187.4 м2
1 из 4
50 р. за м2
187.4 м2
1 из 4
50 р. за м2
187.2 м2
1 из 4
50 р. за м2
187.4 м2
50 р. за м2

Вы просматривали

14 468 р./мес. 20 р. за м2
Центральный р-н
3 005 р./мес. 43 р. за м2
Центральный р-н
11 720 р./мес. 50 р. за м2
Первомайский р-н
Торговый объект, 234.4 м2
Минск, ул. Сурганова, д. 29
11 720 р./мес.
50 р. за м2
Петр
Пожалуйста, скажите, что нашли этот объект на Domovita.by
+
Фильтр сохранен