Выберите валюту для сайта:
BYN
Подать БЕСПЛАТНО

Продажа торговой точки на ул. Алибегова, д. 15 в Минске, 3904460USD, код 996646

2788.9 м2 Московский район / Юго-Запад Петровщина
11 306 145 р.
Торговый объект
Город Минск
Район Московский район
Микрорайон Юго-Запад
Адрес ул. Алибегова, д. 15
Метро Петровщина
Время до метро пешком 15 мин.
Время до метро на транспорте 8 мин.
Год постройки 2011 г.
Площадь 2788.9 м2
Удобства
Лифт
Парковка

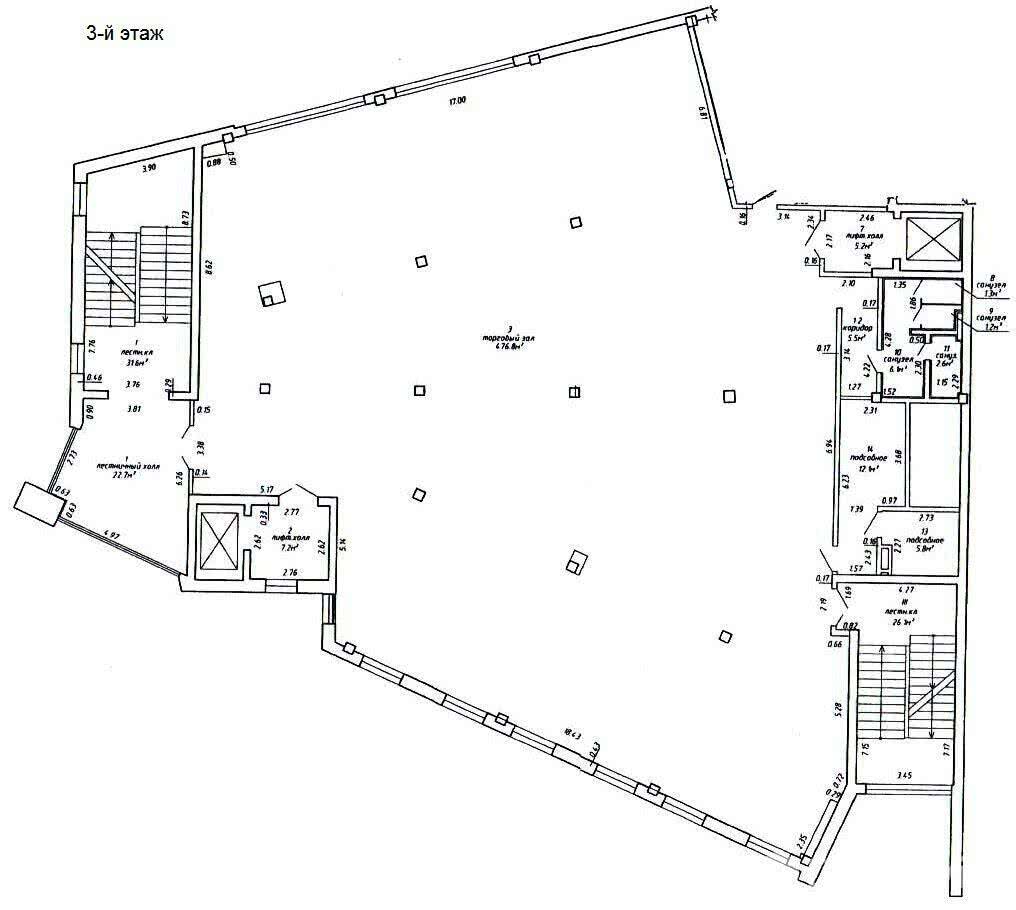
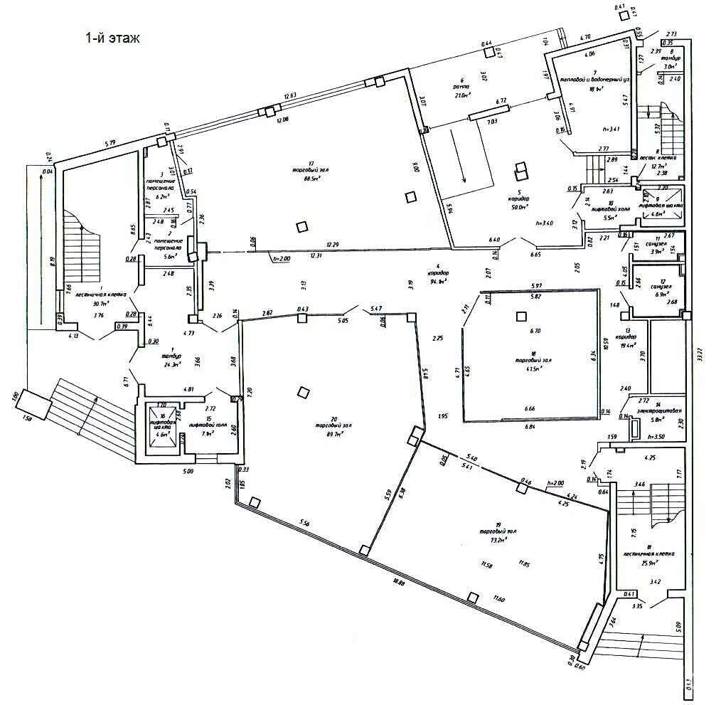
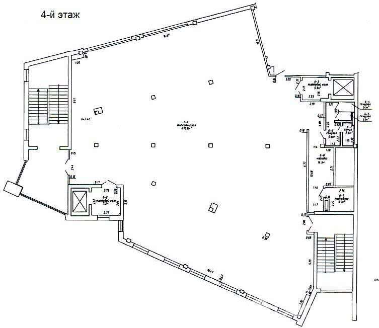
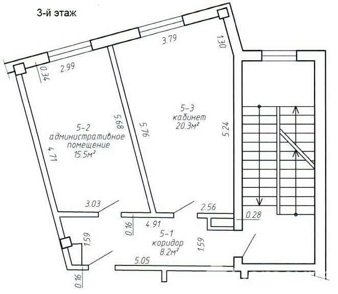
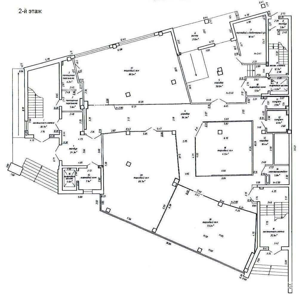
Описание

Здание специализированное розничной торговли

г. Минск, ул. Алибегова, 15

Общая площадь: 2 788.9 м2

Покупатель не оплачивает услуги риэлтерской организации!

Арендный бизнес (доходность 10%)

4-этажный торговый комплекс расположен на земельном участке площадью 0,3113 га (право аренды):

• приточно-вытяжная вентиляция;

• наличие подсобных помещений, санузлов, душевых;

• хороший уровень естественного освещения;

• пассажирский и грузопассажирский лифты (грузопод. 1 000 кг.);

• в здании предусмотрена рампа для упрощения разгрузочно-погрузочных работ;

• большая парковка рядом;

• удобное место расположения с оживленным пешеходным трафиком.

Ваш агент - Андрей Смолка

Код объекта: 996646 Договор с собственником: 26/3 от 2024-07-23 Опубликовано: 29.07.2024 Обновлено: 27.11.2025
0 / 0 / 11
Динамика цен за кв. метрДинамика цен
Похожие объекты
Адрес
Комнат
Площадь
Этаж
Цена за м2
Цена
125.8 м2
1 из 1
3 185 р. за м2
86 м2
1 из 18
7 094 р. за м2
86 м2
1 из 1
7 094 р. за м2

Вы просматривали

11 306 145 р. 4 054 р. за м2
Московский р-н
560 467 р. 8 623 р. за м2
Октябрьский р-н
491 256 р. 4 199 р. за м2
Центральный р-н
882 465 р. 3 620 р. за м2
Фрунзенский р-н
Торговый объект, 2788.9 м2
Минск, ул. Алибегова, д. 15
11 306 145 р.
4 054 р. за м2
Смолка Андрей
Пожалуйста, скажите, что нашли этот объект на Domovita.by
+
Фильтр сохранен