Выберите валюту для сайта:
BYN
Подать БЕСПЛАТНО

Купить торговую точку на ул. Азгура, д. 1 в Минске, 176400USD, код 998237

84 м2 Партизанский район / Захарова Пролетарская
510 801 р.
Торговый объект
Город Минск
Район Партизанский район
Микрорайон Захарова
Адрес ул. Азгура, д. 1
Метро Пролетарская
Время до метро пешком 17 мин.
Время до метро на транспорте 9 мин.
Год постройки 2001 г.
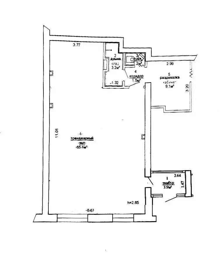
Площадь 84 м2

Описание

Предлагается на продажу современное коммерческое помещение - офис, идеально подходящее для реализации различных бизнес-проектов, в самом центре Минска - Площадь Победы. 

Помещение расположено на первом этаже жилого дома с независимым входом, предусмотрела небольшая автопарковка. Помещение оборудовано кондиционерами. Наличие отдельных зон позволяет организовать работу с разной клиентской базой, обеспечивая высокий уровень сервиса. Благодаря удобному расположению (две станции метро - пл.Победы и Пролетарская в шаговой доступности 5 мин., рядом трамвайная линия, остановки городского общественного транспорта) и продуманной планировке, данное помещение обладает высоким потенциалом для привлечения постоянных клиентов и стабильного дохода.

В настоящее время в помещение располагается организация, готовая арендовать помещение на долгий срок. Это отличная инвестиция для предпринимателей, желающих расширить или открыть новый бизнес в перспективной сфере.

Возможна покупка в рассрочку или при помощи кредита, гибкие условия сотрудничества.

Звоните сейчас, чтобы получить дополнительную информацию и договориться о просмотре.

Лицензия: 02240/483 МЮ РБ, 18.05.2024

Код объекта: 998237 Договор с собственником: 363/1,364/1 от 2025-10-23 Опубликовано: 06.11.2025 Обновлено: 27.11.2025
0 / 0 / 2
Динамика цен за кв. метрДинамика цен
Похожие объекты
Адрес
Комнат
Площадь
Этаж
Цена за м2
Цена
73 м2
1 из 1
7 529 р. за м2
264 м2
1 из 14
6 081 р. за м2
140.4 м2
1 из 14
6 081 р. за м2

Вы просматривали

510 801 р. 6 081 р. за м2
Партизанский р-н
365 780 р. 4 091 р. за м2
Октябрьский р-н
1 099 497 р. 5 067 р. за м2
Советский р-н
335 000 р. 12 934 р. за м2
Фрунзенский р-н
205 160 р. 3 764 р. за м2
Фрунзенский р-н
Торговый объект, 84 м2
Минск, ул. Азгура, д. 1
510 801 р.
6 081 р. за м2
Татьяна
Пожалуйста, скажите, что нашли этот объект на Domovita.by
+
Фильтр сохранен