Выберите валюту для сайта:
BYN
Подать БЕСПЛАТНО

Купить торговую точку на ул. Бирюзова, д. 10/А в Минске, 301000USD, код 998220

422.8 м2 3 этаж из 7 Фрунзенский район / Ольшевского Молодежная
919 149 р.
875 519 р.
Торговый объект
Город Минск
Район Фрунзенский район
Микрорайон Ольшевского
Адрес ул. Бирюзова, д. 10/А
Метро Молодежная
Время до метро пешком 12 мин.
Время до метро на транспорте 7 мин.
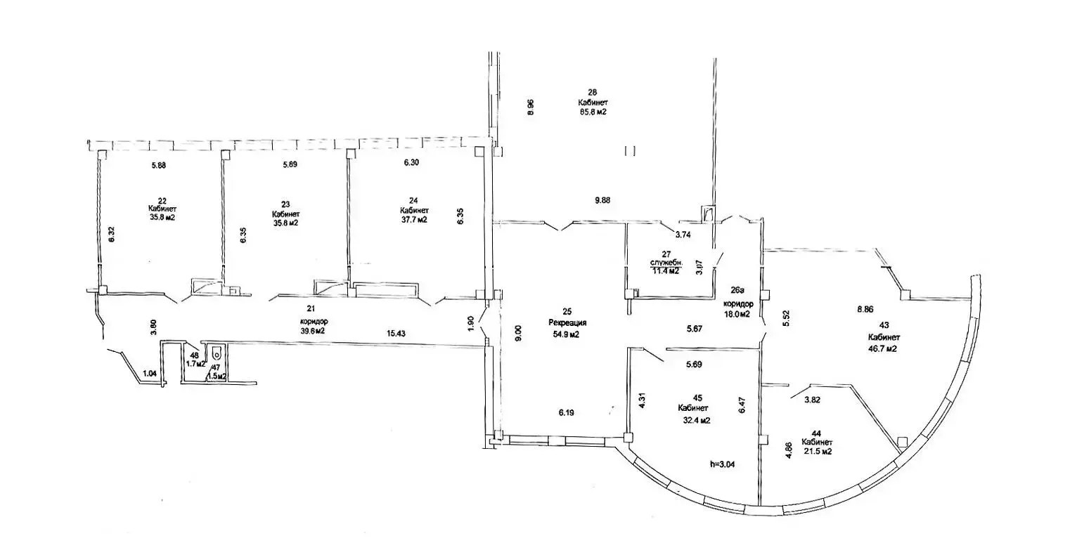
Площадь 422.8 м2
Этаж 3

Описание

Продается офис на третьем этаже в БЦ Green Plaza площадью 422,8 м2.

  • До станции метро Молодёжная – 1 км (12минут пешком).
  • Просторный светлый офис кабинетного типа с хорошим ремонтом.
  • Возле здания находится большое количество парковочных мест.
  • Режим работы объекта 24/7.

Коммуникации-интернет, кондиционер, сан/узлы,отопление.

Удобное место размещения для вашего бизнеса.

Лицензия: 02240/446 МЮ РБ, 11.07.2022

Код объекта: 998220 Договор с собственником: 772/1 от 2025-10-10 Опубликовано: 31.10.2025 Обновлено: 29.11.2025
0 / 0 / 1
Динамика цен за кв. метрДинамика цен
Похожие объекты
Адрес
Комнат
Площадь
Этаж
Цена за м2
Цена
190.9 м2
3 540 р. за м2

Вы просматривали

401 401 р. 3 490 р. за м2
Ленинский р-н
349 044 р. 1 609 р. за м2
Ленинский р-н
218 153 р. 3 346 р. за м2
Ленинский р-н
875 519 р. 2 071 р. за м2
Фрунзенский р-н
285 053 р. 3 237 р. за м2
Железнодорожный р-н
Торговый объект, 422.8 м2
Минск, ул. Бирюзова, д. 10/А
875 519 р.
2 071 р. за м2
Дмитрий
Пожалуйста, скажите, что нашли этот объект на Domovita.by
+
Фильтр сохранен