Выберите валюту для сайта:
BYN
Подать БЕСПЛАТНО

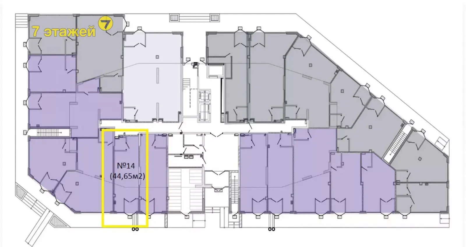
Купить торговое помещение на ул. Жореса Алфёрова, д. 14 в Минске, 86330EUR, код 995076

44.65 м2 Октябрьский район / Маяковского Аэродромная
293 772 р.
Торговый объект
Город Минск
Район Октябрьский район
Микрорайон Маяковского
Адрес ул. Жореса Алфёрова, д. 14
Метро Аэродромная
Время до метро пешком 8 мин.
Время до метро на транспорте 4 мин.
Площадь 44.65 м2
Удобства
Отдельный вход

Описание

Открывать свой бизнес на первом этаже жилого дома – очень выгодный вариант, ведь не нужно возводить отдельное здание и можно легко получить постоянных клиентов, в виде жильцов этой новостройки. В доме "Аруба" Вы можете купить не только квартиры с панорамными окнами и свободной планировкой. На первом этаже запроектирована коммерческая недвижимость. Ее можно сдавать в аренду или использовать для развития собственного бизнеса. Торговые помещения на 1 этаже имеют отдельный вход с улицы, каждое помещение имеет свои коммуникации. Высота потолков – 3,6 метра Цена и наличие актуальны на 20.08.2025
Код объекта: 995076 Договор с собственником: 357/3-10/10.8-14 от 22.02.2023 Опубликовано: 18.07.2023 Обновлено: 08.09.2025
0 / 0 / 6
Динамика цен за кв. метрДинамика цен
Похожие объекты
Адрес
Комнат
Площадь
Этаж
Цена за м2
Цена
79.5 м2
6 261 р. за м2
74.47 м2
6 272 р. за м2
81 м2
1 из 25
6 080 р. за м2
81 м2
1 из 25
6 602 р. за м2
81 м2
1 из 25
6 602 р. за м2

Вы просматривали

Торговый объект, 44.65 м2
Минск, ул. Жореса Алфёрова, д. 14
293 772 р.
6 579 р. за м2
Агент
Пожалуйста, скажите, что нашли этот объект на Domovita.by
+
Фильтр сохранен