Выберите валюту для сайта:
BYN
Подать БЕСПЛАТНО

Купить торговую точку на ул. Гикало, д. 1 в Минске, 379750USD, код 997924

217 м2 1 этаж из 1 Советский район / Гикало Площадь Якуба Коласа
1 131 060 р.
1 099 642 р.
Торговый объект
Город Минск
Район Советский район
Микрорайон Гикало
Адрес ул. Гикало, д. 1
Метро Площадь Якуба Коласа
Время до метро пешком 3 мин.
Время до метро на транспорте 2 мин.
Площадь 217 м2
Этаж 1

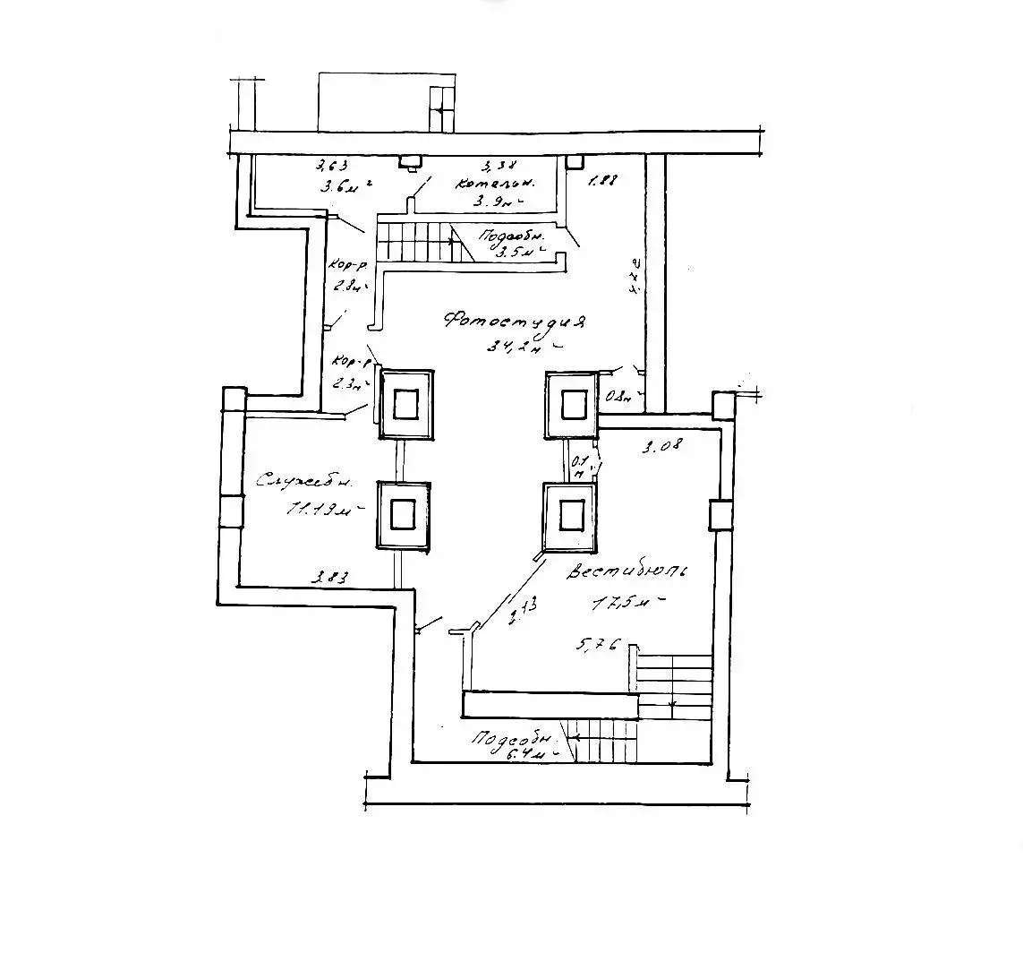
Описание

Продается изолированное помещение с тремя входами и выходами.

Состоит из верхнего первого этажа и цоколя.

Есть канализация, вода, электрообогрев.

Есть кондиционеры.

Мощность до 50кВТ с приточно-вытяжной вентиляцией.

Помещение рядом с универмагом “ЦУМ” с высоким трафиком покупателей.

Развитая инфраструктура.

На период с 7 по 19 августа связываться по мессенджерам whatsp, telegram, viber.

Лицензия: 02240/446 от 11.07.2022, Министерство юстиции РБ

 

Код объекта: 997924 Договор с собственником: 449/1 от 2025-07-08 Опубликовано: 09.07.2025 Обновлено: 27.11.2025
0 / 0 / 3
Динамика цен за кв. метрДинамика цен
Похожие объекты
Адрес
Комнат
Площадь
Этаж
Цена за м2
Цена
217 м2
1 из 4
5 067 р. за м2

Вы просматривали

365 780 р. 4 091 р. за м2
Октябрьский р-н
240 343 р. 6 478 р. за м2
Первомайский р-н
1 099 642 р. 5 067 р. за м2
Советский р-н
173 452 р. 2 736 р. за м2
Октябрьский р-н
257 717 р. 5 083 р. за м2
Фрунзенский р-н
Торговый объект, 217 м2
Минск, ул. Гикало, д. 1
1 099 642 р.
5 067 р. за м2
Фаттория
Пожалуйста, скажите, что нашли этот объект на Domovita.by
+
Фильтр сохранен